BILOCALE RISTRUTTURATO VIALE SAN GIOVANNI BOSCO VENDITA

Viale San Giovanni Bosco - Roma, Zona Cinecittà
€ 249.000
  • Bilocale
  • 65 mq
  • 1 bagno

Appartamento in Vendita a Roma

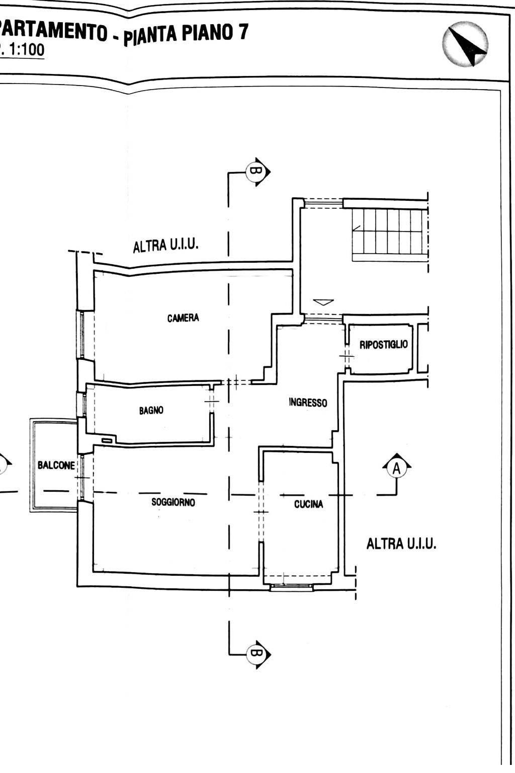
NUOVE VISITE SOSPESE Tuscolana - Viale San Giovanni Bosco, a poca distanza dalla stazione Lucio Sestio della Metro A e da ogni servizio di prima necessità, proponiamo in vendita un elegante appartamento, posto all'ultimo piano all'interno di un complesso immobiliare degli anni sessanta in ottimo stato manutentivo, con ampi giardini condominiali e servizio di portineria.
L'immobile è stato oggetto di una recente e profonda ristrutturazione, sia degli impianti che dei serramenti, con aggiunta di serrande elettriche, zanzariere, tenda motorizzata e soffitto coibentato ed è composto da ingresso, soggiorno, cucina, camera da letto, servizio, ripostiglio e balcone con vista aperta verso il tramonto, ideale per piacevoli momenti di relax. La doppia esposizione ad angolo, sud e ovest, e l'essere all'ultimo piano rendono la zona giorno luminosa e arieggiata durante tutto l'anno.
La proprietà è completata da un'ampia cantina al piano seminterrato e dalla possibilità di usufruire del posto auto non assegnato all'interno di un'area condominiale delimitata.
La vicinanza alla metropolitana, alla ciclabile, ad ogni servizio di prima necessità, nonché al meraviglioso Parco degli Acquedotti rende l'appartamento facilmente raggiungibile con ogni mezzo di trasposto, ideale sia per single e coppie, sia per investitori che vogliano metterlo a reddito.

LEGGI TUTTO

CONDIVIDI SUI SOCIAL

DATI PRINCIPALI

Riferimento
632166
Contratto
Vendita
Tipologia
Appartamento
Superficie
65 mq
Locali
2
Camere da letto
1
Cucina
Abitabile
Bagni
1
Piano
7
Totale piani
7
Box/Posto auto
Singolo

CARATTERISTICHE

Ascensore

COSTI

Prezzo
€ 249.000,00
Spese condominiali
€ 50,00 / mese

EFFICIENZA ENERGETICA

Stato
Ristrutturato
Anno costruzione
1958
Riscaldamento
Centralizzato
Climatizzazione
Si
Classe energetica
F
IPE
175,00 kWh/m²a

A+

A

B

C

D

E

175,00 kWh/m²a | Classe energetica F

F

G

MAPPA

ANNUNCI SIMILI

VENDITA 19
€ 315.000
Appartamento in Vendita a Roma, Zona Cinecittà
  • Trilocale
  • 90 mq
  • 1 bagno
VENDITA 20
€ 230.000
Appartamento in Vendita a Roma, Zona Cinecittà
  • Trilocale
  • 77 mq
  • 1 bagno
VENDITA 16
€ 275.000
Appartamento in Vendita a Roma, Zona Cinecittà
  • Trilocale
  • 109 mq
  • 1 bagno
VENDITA 20
€ 315.000
Appartamento in Vendita a Roma, Zona Cinecittà
  • Trilocale
  • 111 mq
  • 2 bagni