Bilocale Ottimo uso investimento Ad. Ospedale San Pietro VENDITA

Via Carlo Pirzio Biroli 52 - Roma, Zona Tomba Di Nerone
€ 70.000
  • Bilocale
  • 50 mq
  • 1 bagno

Appartamento in Vendita a Roma

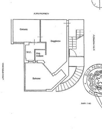
Nella parte iniziale di Via Cassia, all’altezza dell’Ospedale San Pietro, e precisamente in Via Carlo Pirzio Biroli n. 52, Dimora Immobiliare propone in vendita un interessante appartamento situato al primo piano.
L’immobile è composto da ingresso, soggiorno con angolo cottura, camera da letto, bagno e un ampio terrazzo.
L’appartamento si presenta in discrete condizioni manutentive ed è attualmente locato con regolare contratto di affitto 4+4, con prima scadenza fissata al 09/01/2028.
Garantisce un reddito annuo di €6.600, oltre oneri condominiali.
L’immobile è perfettamente in regola con le normative urbanistiche vigenti, mentre il fabbricato è dotato di certificato di agibilità.

Soluzione ideale per chi è alla ricerca di un investimento sicuro e già a reddito in una zona ben collegata e servita.

LEGGI TUTTO

CONDIVIDI SUI SOCIAL

DATI PRINCIPALI

Riferimento
641534
Contratto
Vendita
Tipologia
Appartamento
Superficie
50 mq
Locali
2
Camere da letto
1
Cucina
Angolo cottura
Bagni
1
Piano
1 °
Totale piani
3

CARATTERISTICHE

Ascensore

COSTI

Prezzo
€ 70.000,00
Spese condominiali
€ 60,00 / mese

EFFICIENZA ENERGETICA

Stato
Abitabile
Anno costruzione
1970
Riscaldamento
Autonomo
Classe energetica
G
IPE
175,00 kWh/m²a

A+

A

B

C

D

E

F

175,00 kWh/m²a | Classe energetica G

G

MAPPA

ANNUNCI SIMILI

VENDITA 20
€ 299.000
Appartamento in Vendita a Roma (Roma)
  • Quadrilocale
  • 134 mq
  • 2 bagni
VENDITA 20
€ 390.000
Appartamento in Vendita a Roma, Zona Tomba Di Nerone
  • Più di 5 locali
  • 172 mq
  • 2 bagni
VENDITA 17
€ 125.000
Appartamento in Vendita a Roma, Zona Tomba Di Nerone
  • Trilocale
  • 60 mq
  • 1 bagno