BALDUINA RESIDENZIALE - VIA FESTO AVIENO ANGOLO VIA MASSIMI VENDITA

Via Festo Avieno 246 - Roma, Zona Balduina
€ 310.000
  • Bilocale
  • 51 mq
  • 1 bagno

Appartamento in Vendita a Roma

ROMA – BALDUINA | VIA FESTO AVIENO – ANGOLO VIA MASSIMI

Appartamento Rifinito – Luminoso Terzo Piano

In uno dei contesti più residenziali e tranquilli della Balduina, proponiamo in vendita un delizioso appartamento al terzo piano di una palazzina signorile.

L’immobile gode di ottima luminosità grazie alla presenza di ampie finestre e di un'esposizione favorevole, che lo rendono particolarmente arioso e accogliente. La recente ristrutturazione ha valorizzato ogni dettaglio, con finiture di pregio e pavimentazione in parquet in tutti gli ambienti, ad eccezione del servizio.

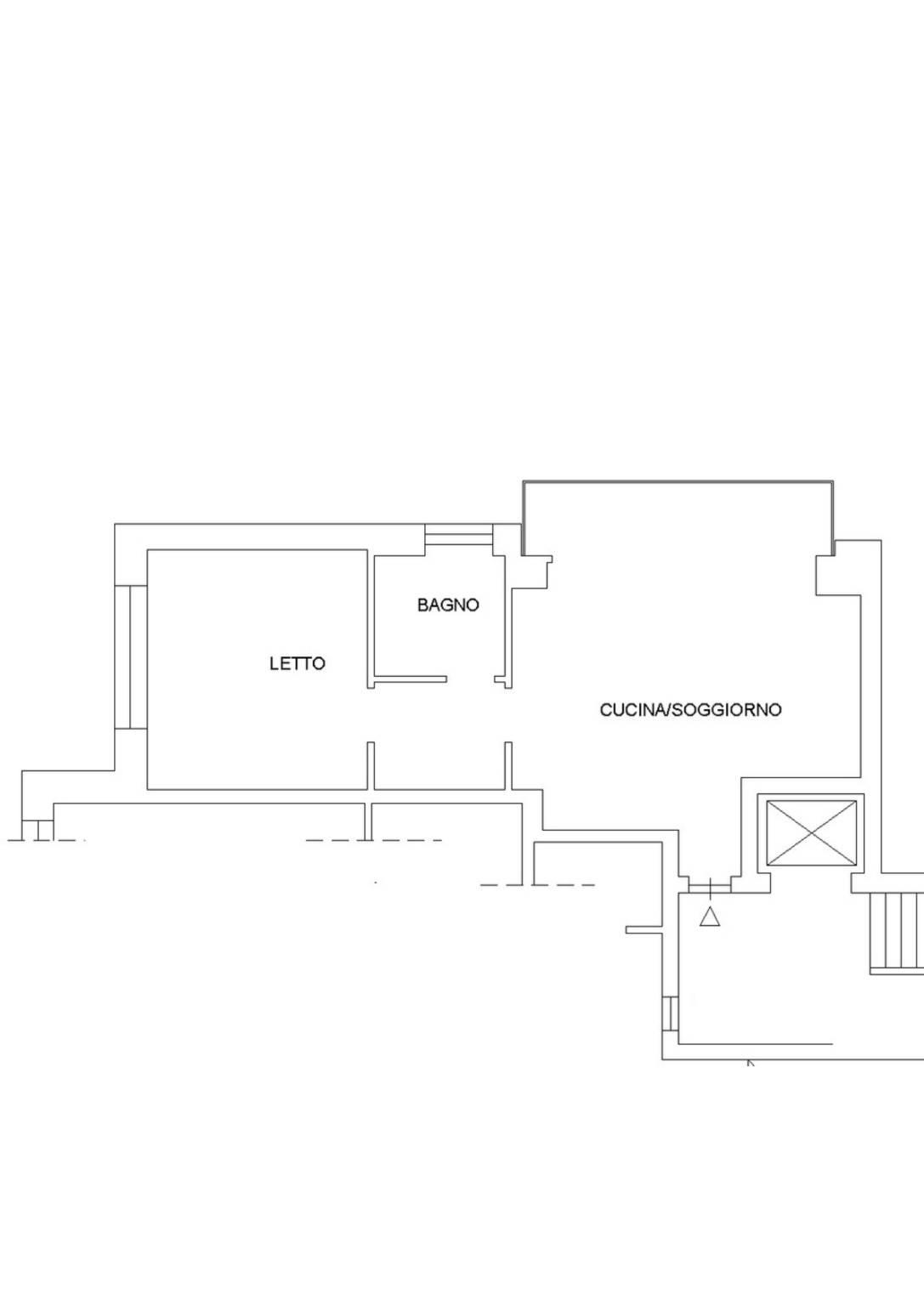
Composizione interna:

Ingresso

Zona living con angolo cottura

Disimpegno

Ampia camera da letto

Bagno con rifiniture moderne

Prezzo di richiesta Euro 310.000,00

Soluzione ideale per single, giovani coppie o come investimento. Contesto tranquillo e ben collegato, vicino a tutti i servizi principali, scuole, università e trasporti pubblici.
Le presenti informazioni e planimetrie sono meramente indicative e non costituiscono elementi contrattuali. Per pianificare un appuntamento o per ricevere maggiori informazioni potete contattare direttamente il nostro ufficio al numero 06.32090611 o mandare un messaggio whatsapp al 324.5822271 dalle 9.00 alle 13.00 o dalle 15.00 alle 19.00 Oikos Real Estate è parte del Gruppo Oikos nasce dal contributo di professionisti esperti e appassionati, derivanti da segmenti diversi del settore immobiliare con la voglia di fare rete, scambiare esperienze e competenze. Non si limita alla mediazione sulle transazioni immobiliari, ma ha l’ambizione di offrire prestazioni che vanno dalla consulenza alla progettazione degli interni, dall’home staging, all’assistenza legale fino a quella tecnica.

LEGGI TUTTO

CONDIVIDI SUI SOCIAL

DATI PRINCIPALI

Riferimento
629562
Contratto
Vendita
Tipologia
Appartamento
Superficie
51 mq
Locali
2
Camere da letto
1
Cucina
Angolo cottura
Bagni
1
Piano
3 °
Totale piani
5

CARATTERISTICHE

Ascensore

COSTI

Prezzo
€ 310.000,00
Spese condominiali
€ 70,00 / mese

EFFICIENZA ENERGETICA

Stato
Ristrutturato
Riscaldamento
Autonomo
Climatizzazione
Si
Classe energetica
G
IPE
175,00 kWh/m²a

A+

A

B

C

D

E

F

175,00 kWh/m²a | Classe energetica G

G

MAPPA

ANNUNCI SIMILI

VENDITA 20
€ 670.000
Appartamento in Vendita a Roma, Zona Balduina
  • Quadrilocale
  • 114 mq
  • 2 bagni
VENDITA 20
€ 530.000
Appartamento in Vendita a Roma, Zona Balduina
  • Più di 5 locali
  • 150 mq
  • 2 bagni
VENDITA 20
€ 620.000
Appartamento in Vendita a Roma, Zona Balduina
  • Quadrilocale
  • 160 mq
  • 2 bagni