Attico Piazza Navona adiacente Via dei Coronari AFFITTO

Via dei Coronari - Roma (Roma)
€ 5.500 mensili
  • Più di 5 locali
  • 110 mq
  • 3 bagni

Appartamento in Affitto a Roma

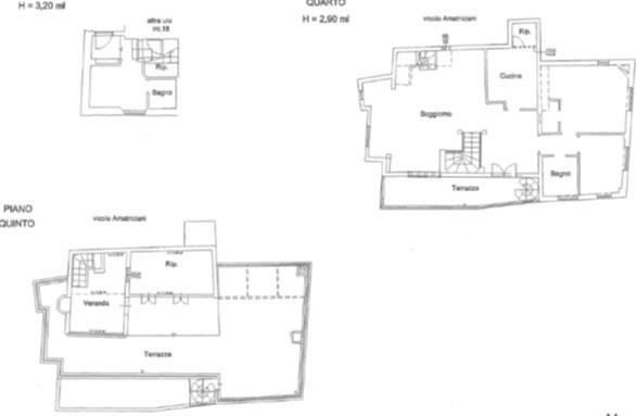
Proponiamo in affitto in un immobile di rappresentanza, completamente ristrutturato, un attico e superattico per un totale di 110 mq, oltre 50 mq di terrazza con bellissima vista panoramica. L'appartamento si compone di un piccolo ingresso, dal quale si accede ad una cameretta/studio con bagno, tramite una rampa di scale si giunge al livello superiore dove abbiamo un open space con zona soggiorno/pranzo e accesso al balcone di circa 10 mq, due piccole camere da letto, di cui una matrimoniale ed una singola, due bagni (uno con vasca ed uno con doccia), cucina arredata, ripostiglio. Dalla zona soggiorno, tramite una rampa di scale, si arriva al livello del superattico, dove si trova un piccolo studio con caminetto ed un terrazzo spazioso con una veranda e con un ripostiglio sotto-tetto. Aria condizionata ed aria calda autonome. Luminoso e silenzioso. Completamente ristrutturato con ottimi materiali, parquet, marmo. Porta blindata. Servizio di portineria e ascensore. L'appartamento è disponibile da subito, con possibilità anche di contratto a società. Il canone è di 6.500 euro, oltre oneri condominiali. No uso recettivo. TELEFONARE SOLO A ISABELLA 337/554053

LEGGI TUTTO

CONDIVIDI SUI SOCIAL

DATI PRINCIPALI

Riferimento
636549
Contratto
Affitto
Tipologia
Appartamento
Superficie
110 mq
Locali
5
Camere da letto
2
Cucina
Abitabile
Bagni
3
Piano
4 °
Totale piani
4
Box/Posto auto
Singolo

CARATTERISTICHE

Ascensore

COSTI

Canone
Affitto € 5.500,00 al mese
Tipo locazione
Libero
Spese condominiali
€ 192,00 / mese, non incluse nel canone

EFFICIENZA ENERGETICA

Stato
Ristrutturato
Anno costruzione
1940
Riscaldamento
Autonomo
Climatizzazione
Si
Classe energetica
G
IPE
175,00 kWh/m²a

A+

A

B

C

D

E

F

175,00 kWh/m²a | Classe energetica G

G

MAPPA

ANNUNCI SIMILI

AFFITTO 6
€ 7.000 mensili
Appartamento in Affitto a Roma (Roma)
  • Più di 5 locali
  • 350 mq
  • 3 bagni
AFFITTO 11
€ 5.500 mensili
Appartamento in Affitto a Roma (Roma)
  • Più di 5 locali
  • 215 mq
  • 3 bagni
AFFITTO 20
€ 4.000 mensili
Appartamento in Affitto a Roma (Roma)
  • Più di 5 locali
  • 165 mq
  • 2 bagni
AFFITTO 20
€ 6.600 mensili
Appartamento in Affitto a Roma (Roma)
  • Più di 5 locali
  • 211 mq
  • 4 bagni
AFFITTO 20
€ 4.500 mensili
Appartamento in Affitto a Roma (Roma)
  • Più di 5 locali
  • 185 mq
  • 4 bagni
AFFITTO 20
€ 8.500 mensili
Appartamento in Affitto a Roma (Roma)
  • Più di 5 locali
  • 260 mq
  • 4 bagni
AFFITTO 12
€ 4.500 mensili
Appartamento in Affitto a Roma (Roma)
  • Più di 5 locali
  • 207 mq
  • 2 bagni
AFFITTO 12
€ 3.900 mensili
Appartamento in Affitto a Roma (Roma)
  • Più di 5 locali
  • 200 mq
  • 1 bagno