Via Giulia, appartamento di ampia metratura in affitto AFFITTO

Largo dei Fiorentini - Roma (Roma)
€ 4.200 mensili
  • Più di 5 locali
  • 212 mq
  • 2 bagni

Appartamento in Affitto a Roma

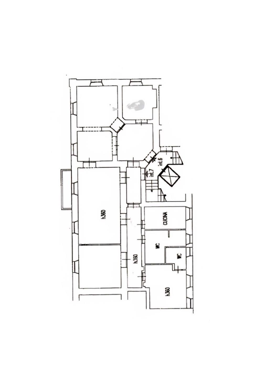
Centro storico, Largo dei Fiorentini, proponiamo in locazione un bell'appartamento di 211 mq con tripla esposizione e doppio ingresso posto al 2° piano con ascensore di uno stabile appena ristrutturato e con servizio di portineria tutto il giorno. L'immobile è composto da un ampio ingresso, grande salone doppio con due luminosi affacci e balcone, sala da pranzo, studio (o quarta camera da letto), tre camere da letto e due bagni, entrambi con finestra, cucina arredata e disimpegni. Disponibile dal mese di marzo 2026, NON per usi ricettivi. Possibilità box auto privato. L'immobile necessita di una generale ristrutturazione per adeguarlo alle esigenze del nuovo conduttore, con possibilità di scontare integralmente il costo dei lavori dal canone di affitto. Canone richiesto 4.200 €/mese, oltre condominio 348 €/mese e spese di riscaldamento 1.710 €/anno.
Per informazioni e visite potete contattare Ciacci Studio Immobiliare al +39 335490384.
Le informazioni e planimetrie contenute nel presente annuncio sono meramente indicative e non costituiscono in nessun modo elementi
contrattuali.

LEGGI TUTTO

CONDIVIDI SUI SOCIAL

DATI PRINCIPALI

Riferimento
634853
Contratto
Affitto
Tipologia
Appartamento
Superficie
212 mq
Locali
Più di 5
Camere da letto
3
Cucina
Abitabile
Bagni
2
Piano
2 °
Totale piani
4

CARATTERISTICHE

Ascensore

COSTI

Canone
Affitto € 4.200,00 al mese
Tipo locazione
Libero
Spese condominiali
€ 348,00 / mese, non incluse nel canone

EFFICIENZA ENERGETICA

Stato
Ristrutturato
Anno costruzione
1937
Riscaldamento
Centralizzato
Classe energetica
G
IPE
422,00 kWh/m²a

A+

A

B

C

D

E

F

422,00 kWh/m²a | Classe energetica G

G

MAPPA

ANNUNCI SIMILI

AFFITTO 20
€ 8.500 mensili
Appartamento in Affitto a Roma (Roma)
  • Più di 5 locali
  • 260 mq
  • 4 bagni
AFFITTO 6
€ 7.000 mensili
Appartamento in Affitto a Roma (Roma)
  • Più di 5 locali
  • 350 mq
  • 3 bagni
AFFITTO 20
€ 4.500 mensili
Appartamento in Affitto a Roma (Roma)
  • Più di 5 locali
  • 185 mq
  • 4 bagni
AFFITTO 11
€ 5.500 mensili
Appartamento in Affitto a Roma (Roma)
  • Più di 5 locali
  • 215 mq
  • 3 bagni
AFFITTO 20
€ 6.600 mensili
Appartamento in Affitto a Roma (Roma)
  • Più di 5 locali
  • 211 mq
  • 4 bagni
AFFITTO 13
€ 3.000 mensili
Appartamento in Affitto a Roma, Zona Prati
  • Più di 5 locali
  • 160 mq
  • 2 bagni
AFFITTO 12
€ 4.500 mensili
Appartamento in Affitto a Roma (Roma)
  • Più di 5 locali
  • 207 mq
  • 2 bagni
AFFITTO 20
€ 12.500 mensili
Appartamento in Affitto a Roma, Zona Prati
  • Più di 5 locali
  • 286 mq
  • 4 bagni
AFFITTO 20
€ 6.600 mensili
Appartamento in Affitto a Roma (Roma)
  • Più di 5 locali
  • 325 mq
  • 4 bagni