Appartamento VENDITA

Via Bibbona, 5 - Roma (Roma)
€ 419.000
  • Quadrilocale
  • 220 mq
  • 2 bagni

Appartamento in Vendita a Roma


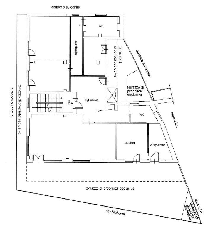
L’agenzia immobiliare GABETTI ROMA BRAVETTA è lieta di presentare in vendita una prestigiosa opportunità abitativa in Via Bibbona, nel cuore della zona Trullo. L'appartamento, di circa 180 mq, si trova al primo piano di una signorile palazzina in cortina sprovvista di ascensore.
Nonostante la necessità di interventi di ammodernamento, l'immobile si presenta in ottimo stato di manutenzione, offrendo una base solida e versatile per una personalizzazione totale.
Distribuzione degli Spazi:
La metratura generosa permette una perfetta divisione tra zona giorno e zona notte:
* Zona Giorno: Un accogliente ingresso introduce a un salone triplo di rappresentanza, cuore pulsante della casa, con accesso diretto a un terrazzo di circa 120 mq. Completano l'area una cucina abitabile, un pratico cucinotto (ideale come zona lavanderia) e un primo bagno finestrato con vasca. Un secondo terrazzo di 25 mq serve l'ingresso.
* Zona Notte: Un corridoio conduce alle tre camere: una cameretta/studio e due ampie camere matrimoniali (di cui una di ben 22 mq), entrambe con accesso al balcone privato. È presente un secondo bagno finestrato, anch'esso con vasca.
Pertinenze e Plus
La proprietà include accessori di alto valore, ideali per chi cerca spazio e comodità:
* Area Garage: Due posti auto coperti in area comune in comproprietà.
* Spazi di Servizio: Una cantina di proprietà esclusiva all'interno del palazzo, oltre a una seconda cantina e un locale caldaia in comproprietà.
*L'immobile non ha spese con amministratore.
Potenziale di Investimento: Grazie alla pianta regolare e alla superficie estesa, la soluzione si presta facilmente al frazionamento in due unità indipendenti (trilocali), rendendola perfetta anche per operazioni immobiliari.
Posizione Strategica:
Situato in una zona ricca di servizi, l'immobile gode della vicinanza a scuole, farmacie, ristoranti e attività commerciali di ogni genere. L'area è ottimamente collegata grazie a diverse linee di autobus che facilitano gli spostamenti verso il resto della città.
Contattateci oggi stesso per scoprire le potenzialità di questa residenza unica.
Per info e appuntamenti:
06.27.53.829
392.08.76.185
Le presenti informazioni sono meramente indicative e non costituiscono elementi contrattuali.

LEGGI TUTTO

CONDIVIDI SUI SOCIAL

DATI PRINCIPALI

Riferimento
635714
Contratto
Vendita
Tipologia
Appartamento
Superficie
220 mq
Locali
4
Camere da letto
3
Cucina
Abitabile
Bagni
2
Piano
1 °
Totale piani
3
Box/Posto auto
Singolo

CARATTERISTICHE

Ascensore

COSTI

Prezzo
€ 419.000,00

EFFICIENZA ENERGETICA

Stato
Da ristrutturare
Anno costruzione
1963
Riscaldamento
Autonomo
Classe energetica
F
IPE
123,00 kWh/m²a

A+

A

B

C

D

E

123,00 kWh/m²a | Classe energetica F

F

G

MAPPA

ANNUNCI SIMILI

VENDITA 20
€ 285.000
Appartamento in Vendita a Roma (Roma)
  • Più di 5 locali
  • 138 mq
  • 2 bagni
VENDITA 20
€ 280.000
Appartamento in Vendita a Roma (Roma)
  • Quadrilocale
  • 105 mq
  • 1 bagno
VENDITA 20
€ 219.000
Appartamento in Vendita a Roma (Roma)
  • Quadrilocale
  • 70 mq
  • 1 bagno
VENDITA 20
€ 395.000
Appartamento in Vendita a Roma (Roma)
  • Quadrilocale
  • 128 mq
  • 2 bagni
VENDITA 17
€ 440.000
Appartamento in Vendita a Roma (Roma)
  • Quadrilocale
  • 165 mq
  • 2 bagni
VENDITA 20
€ 225.000
Appartamento in Vendita a Roma (Roma)
  • Quadrilocale
  • 130 mq
  • 2 bagni
VENDITA 20
€ 699.000
Appartamento in Vendita a Roma (Roma)
  • Più di 5 locali
  • 210 mq
  • 3 bagni
VENDITA 20
€ 269.000
Appartamento in Vendita a Roma (Roma)
  • Quadrilocale
  • 110 mq
  • 2 bagni
VENDITA 20
€ 560.000
Appartamento in Vendita a Roma (Roma)
  • Quadrilocale
  • 135 mq
  • 2 bagni