€ 385.000
  • Più di 5 locali
  • 126 mq
  • 2 bagni

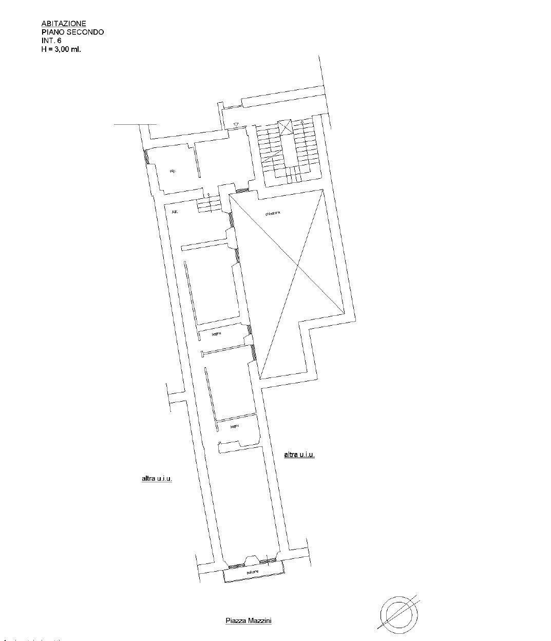
Appartamento in Vendita a Frascati

Nel centro storico di Frascati, in posizione strategica e comodamente servita da ascensore, si trova questo incantevole appartamento situato al secondo piano di un palazzo d’epoca. L'immobile è stato recentemente ristrutturato con materiali di pregio. L’ingresso ampio accoglie con un comodo armadio a muro guardaroba, perfetto per mantenere ordine e praticità. Da qui si accede a uno studiolo riservato e tranquillo, ideale come angolo lettura o spazio di lavoro. Scendendo tre gradini si apre una cucina abitabile dal concept aperto, pensata per vivere la convivialità quotidiana con gusto e funzionalità. La zona notte si sviluppa, con due camere da letto ben proporzionate, accompagnate da doppi servizi moderni, entrambi arredati con attenzione al dettaglio e finiture contemporanee. Il salone, si affaccia su un balcone da cui si gode una splendida vista panoramica su Roma. L’appartamento è stato oggetto non solo di una ristrutturazione integrale, ma anche di un intervento strutturale importante con il completo rifacimento dei solai, che garantisce una maggiore sicurezza, durabilità e valore nel tempo. Grazie alla sua configurazione e posizione, l'immobile si presta perfettamente ad essere adibito a studio professionale.

LEGGI TUTTO

CONDIVIDI SUI SOCIAL

DATI PRINCIPALI

Riferimento
633728
Contratto
Vendita
Tipologia
Appartamento
Superficie
126 mq
Locali
Più di 5
Cucina
Abitabile
Bagni
2
Piano
2 °
Totale piani
4

CARATTERISTICHE

Ascensore

COSTI

Prezzo
€ 385.000,00

EFFICIENZA ENERGETICA

Stato
Ristrutturato
Riscaldamento
Autonomo
Classe energetica
D
IPE
3,00 kWh/m²a

A+

A

B

C

3,00 kWh/m²a | Classe energetica D

D

E

F

G

MAPPA

ANNUNCI SIMILI

VENDITA 20
€ 385.000
Appartamento in Vendita a Frascati (Roma)
  • Più di 5 locali
  • 126 mq
  • 2 bagni
VENDITA 20
€ 360.000
Appartamento in Vendita a Frascati (Roma)
  • Più di 5 locali
  • 157 mq
  • 2 bagni
VENDITA 20
€ 670.000
Appartamento in Vendita a Frascati (Roma)
  • Più di 5 locali
  • 360 mq
  • 2 bagni
VENDITA 20
€ 670.000
Appartamento in Vendita a Frascati (Roma)
  • Più di 5 locali
  • 360 mq
  • 2 bagni
VENDITA 20
€ 520.000
Appartamento in Vendita a Frascati (Roma)
  • Più di 5 locali
  • 264 mq
  • 2 bagni
VENDITA 20
€ 549.000
Appartamento in Vendita a Frascati (Roma)
  • Più di 5 locali
  • 260 mq
  • 2 bagni
VENDITA 10
€ 835.000
Appartamento in Vendita a Grottaferrata (Roma)
  • Più di 5 locali
  • 300 mq
  • 4 bagni