Appartamento indipendente in vendita a Montelibretti VENDITA

via dei Girasoli 7 - Montelibretti (Roma)
€ 135.000
  • Quadrilocale
  • 114 mq
  • 1 bagno

Appartamento in Vendita a Montelibretti

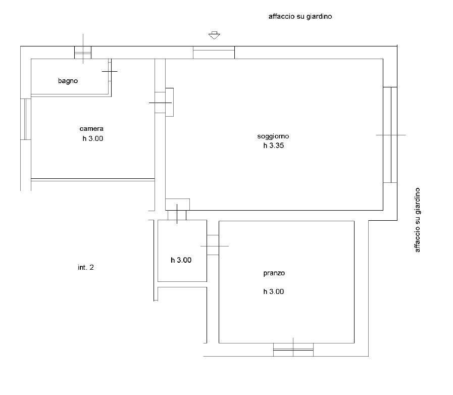
Montelibretti - Via dei Girasoli, appartamento da ristrutturare all'interno di un casale di campagna con 255 mq di giardino e corte esterna.
A pochi minuti dai principali collegamenti ferroviari, all'interno di un casale di campagna composto da sole due unità immobiliari, è disponibile un appartamento di 114 mq su unico livello, completamente da ristrutturare. L'immobile si trova al piano terra e offre la possibilità di realizzare un ampio quadrilocale con luminosa zona living, tre camere da letto e due bagni, oltre a un giardino privato di circa 255 mq che valorizza ulteriormente la proprietà.
La corte esterna comune consente di parcheggiare comodamente fino a tre auto, rendendo l'abitazione pratica anche per nuclei familiari con più mezzi. È già presente la fossa biologica per lo smaltimento delle acque scure, un dettaglio importante per chi cerca una soluzione indipendente in contesto rurale.
La posizione è particolarmente strategica: la stazione di Pianabella si raggiunge in due minuti di macchina, mentre Monterotondo Scalo dista circa sette minuti. A pochi passi si trova anche la fermata dell'autobus, e la zona è servita dal pulmino scolastico, rendendo gli spostamenti quotidiani semplici e ben organizzati.
Questa proprietà rappresenta un'opportunità ideale per chi desidera personalizzare la propria casa in un ambiente tranquillo, immerso nel verde ma vicino ai servizi e alle principali vie di collegamento. APE "G"

LEGGI TUTTO

CONDIVIDI SUI SOCIAL

DATI PRINCIPALI

Riferimento
640830
Contratto
Vendita
Tipologia
Appartamento
Superficie
114 mq
Locali
4
Camere da letto
3
Cucina
Abitabile
Bagni
1
Piano
Piano terra
Totale piani
2
Box/Posto auto
Doppio

CARATTERISTICHE

Ascensore

COSTI

Prezzo
€ 135.000,00

EFFICIENZA ENERGETICA

Stato
Da ristrutturare
Anno costruzione
1960
Classe energetica
G
IPE
225,00 kWh/m²a

A+

A

B

C

D

E

F

225,00 kWh/m²a | Classe energetica G

G

MAPPA

ANNUNCI SIMILI

VENDITA 19
€ 165.000
Appartamento in Vendita a Castelnuovo di Porto (Roma)
  • Quadrilocale
  • 140 mq
  • 2 bagni
VENDITA 16
€ 145.000
Appartamento in Vendita a Fiano Romano (Roma)
  • Quadrilocale
  • 125 mq
  • 2 bagni
VENDITA 20
€ 359.000
Appartamento in Vendita a Monterotondo (Roma)
  • Quadrilocale
  • 120 mq
  • 1 bagno