APPARTAMENTO IN VILLA SU DUE LIVELLI CON GIARDINO E TERRAZZO VENDITA

Vicolo del Laghetto 23 - Castel Gandolfo (Roma)
€ 349.000
  • Più di 5 locali
  • 300 mq
  • 3 bagni

Appartamento in Vendita a Castel Gandolfo

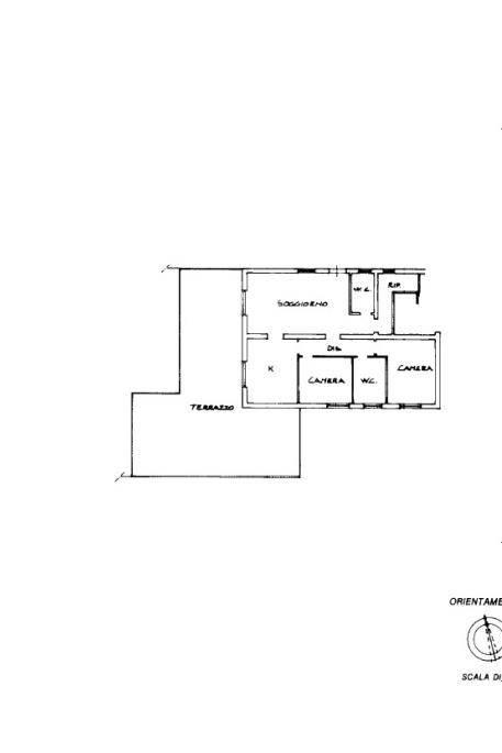
Gruppoh24 propone in vendita esclusivo Appartamento in villa su due livelli per un totale di 300 mq, con lotto di proprietà per parcheggio di più autovetture di circa 700 mq, offrendo ulteriori spazi verdi e alberi da frutto di ulteriori 600 mq. Al piano terra rialzato troviamo un comodo trilocale composto di: ampio salone molto luminoso con accesso a un terrazzo di circa 100 mq, cucina abitabile, disimpegno, due camere da letto, due bagni e un comodo ripostiglio. Al piano terra/sala hobby troviamo un bilocale indipendente con giardino di proprietà di circa 80 mq, arricchito da un portico perfetto per godersi le serate estive in tranquillità. Attraverso un ampio ingresso sbancato arriviamo ad un salone doppio, una cucina abitabile, una camera matrimoniale con cabina armadio e lavanderia annessa, una cameretta e un bagno finestrato. L'immobile è in ottimo stato interno e si distingue per la sua luminosità. Con due ingressi separati, risulta ideale per due famiglie che desiderano vivere vicine ma con la propria indipendenza. Il parcheggio privato e gli spazi esterni completano questa proposta, rendendola particolarmente interessante per chi cerca confort e privacy. Classe energetica D.
I nostri uffici sono aperti dal Lunedì al Venerdì dalle 9 alle 13 e dalle 15 alle 19.00; il Sabato dalle 9 alle 13! Potete contattarci ai numeri 0693548128 - 349 063 4485 (WhatsApp), oppure scriverci una mail all’indirizzo segreteria@gruppoh24.it Vi ricordiamo che sul nostro sito potrete trovare tutti le nostre offerte e tutti i nostri servizi, mentre se vorrete rimanere aggiornati sulle ultime news del mondo immobiliare seguiteci sui nostri canali Social.

LEGGI TUTTO

CONDIVIDI SUI SOCIAL

DATI PRINCIPALI

Riferimento
642569
Contratto
Vendita
Tipologia
Appartamento
Superficie
300 mq
Locali
Più di 5
Camere da letto
4
Cucina
Abitabile
Bagni
3
Piano
Piano rialzato
Totale piani
2
Box/Posto auto
Doppio

CARATTERISTICHE

Ascensore

COSTI

Prezzo
€ 349.000,00
Spese condominiali
€ 20,00 / mese

EFFICIENZA ENERGETICA

Stato
Abitabile
Anno costruzione
1980
Riscaldamento
Autonomo
Classe energetica
D
IPE
175,00 kWh/m²a

A+

A

B

C

175,00 kWh/m²a | Classe energetica D

D

E

F

G

MAPPA

ANNUNCI SIMILI

VENDITA 11
Trattativa Riservata
Appartamento in Vendita a Albano Laziale (Roma)
  • Più di 5 locali
  • 92 mq
  • 2 bagni
VENDITA 20
€ 135.000
Appartamento in Vendita a Genzano di Roma (Roma)
  • Più di 5 locali
  • 140 mq
  • 2 bagni