Appartamento in vendita a Roma, Garbatella VENDITA

Via Giovanni Battista Licata 12 - Roma, Zona Garbatella
€ 349.000
  • Trilocale
  • 84 mq
  • 1 bagno

Appartamento in Vendita a Roma

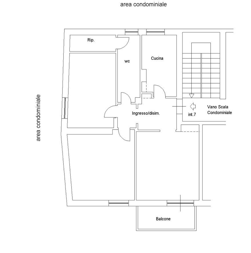
Nel caratteristico quartiere della Garbatella, precisamente in Via Giovanni Battista Licata, proponiamo in vendita un appartamento posto al terzo piano di uno stabile senza ascensore.

L'appartamento si contraddistingue per l' ottima luminosità grazie alla tripla esposizione (est, sud e ovest) che garantisce luce naturale durante tutta la giornata e presenta una distribuzione degli ambienti pratica e funzionale, con spazi ben organizzati che rendono la casa accogliente e facilmente vivibile.

L’appartamento è composto da:

•⁠ ⁠Ingresso
•⁠ ⁠Soggiorno luminoso con accesso al balcone
•⁠ Cucina
•⁠ ⁠Due camere da letto
•⁠ ⁠Servizio finestrato
•⁠ ⁠Ripostiglio

La posizione rappresenta uno dei principali punti di forza dell’immobile.
Via Licata si trova in una zona residenziale tranquilla ma allo stesso tempo ricca di servizi, inserita nel contesto autentico e molto apprezzato del quartiere.

La zona offre numerose comodità, tra cui:

•⁠ ⁠Negozi di quartiere, supermercati e attività commerciali
•⁠ ⁠Bar, ristoranti e locali tipici della zona
•⁠ ⁠Scuole, uffici e servizi pubblici
•⁠ ⁠Aree verdi e spazi per il tempo libero
•⁠ ⁠Ottimi collegamenti con il resto della città

A breve distanza si trova inoltre la fermata della metropolitana Linea B Garbatella, che consente di raggiungere rapidamente diverse zone della città.

L’immobile rappresenta una soluzione abitativa interessante per chi desidera vivere in un contesto autentico, ben servito e ben collegato.

LEGGI TUTTO

CONDIVIDI SUI SOCIAL

DATI PRINCIPALI

Riferimento
633890
Contratto
Vendita
Tipologia
Appartamento
Superficie
84 mq
Locali
3
Camere da letto
2
Cucina
Abitabile
Bagni
1
Piano
3 °
Totale piani
3

CARATTERISTICHE

Ascensore

COSTI

Prezzo
€ 349.000,00
Spese condominiali
€ 75,00 / mese

EFFICIENZA ENERGETICA

Stato
Da ristrutturare
Riscaldamento
Centralizzato
Climatizzazione
Si
Classe energetica
G
IPE
175,00 kWh/m²a

A+

A

B

C

D

E

F

175,00 kWh/m²a | Classe energetica G

G

MAPPA

ANNUNCI SIMILI

VENDITA 12
€ 360.000
Appartamento in Vendita a Roma, Zona Garbatella
  • Trilocale
  • 96 mq
  • 1 bagno
VENDITA 12
€ 245.000
Appartamento in Vendita a Roma, Zona Garbatella
  • Trilocale
  • 80 mq
  • 1 bagno
VENDITA 20
€ 370.000
Appartamento in Vendita a Roma, Zona Garbatella
  • Trilocale
  • 100 mq
  • 1 bagno