Appartamento in vendita a Monterotondo, Monterotondo Paese VENDITA

Via dello Stadio 38 - Monterotondo (Roma)
€ 239.000
  • Quadrilocale
  • 110 mq
  • 2 bagni

Appartamento in Vendita a Monterotondo

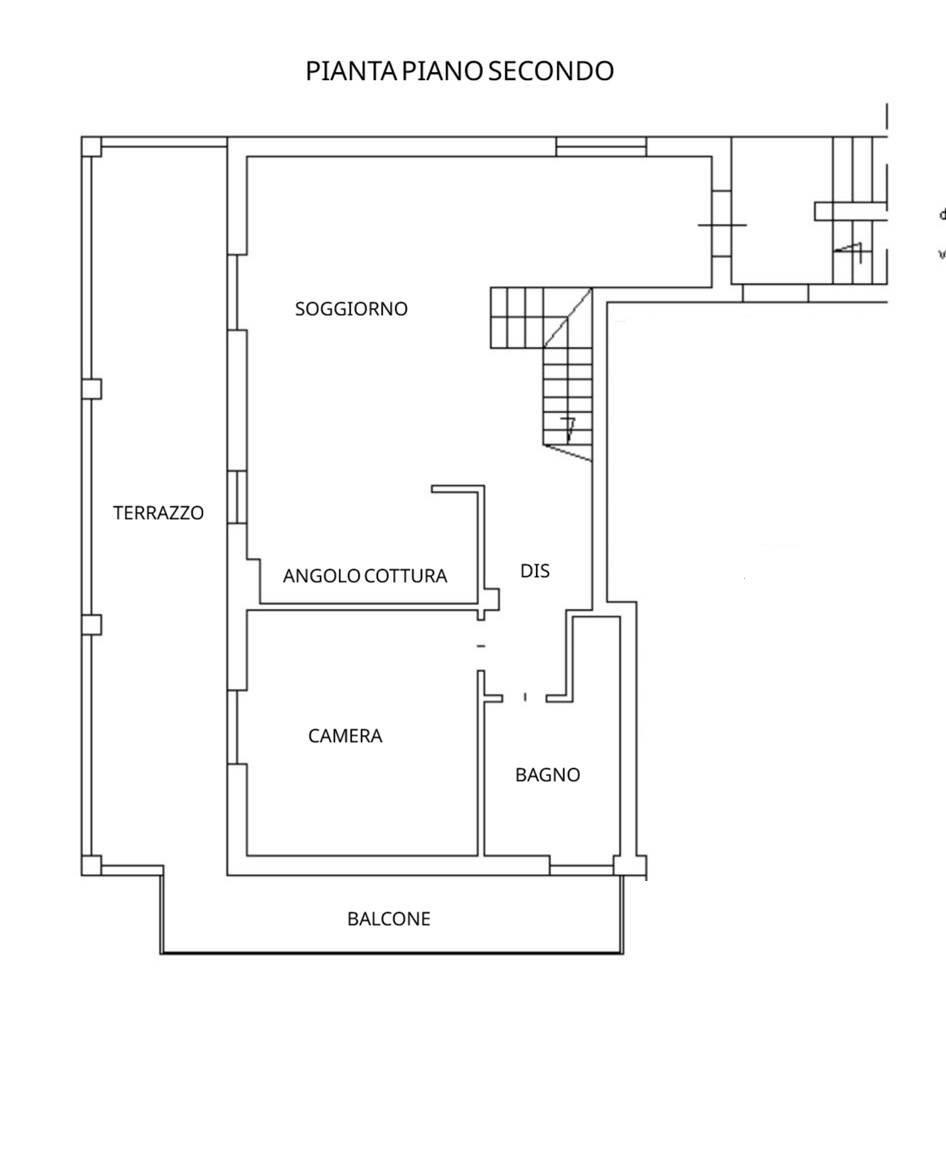
Monterotondo Centro - Via dello Stadio, proponiamo in vendita un appartamento di 110 mq disposto su due livelli con terrazzo abitabile e posto auto.
L'appartamento al primo livello è composto da un ingresso, un ampio salone con camino e cucina a vista, facilmente ripristinabile in cucina abitabile. Sullo stesso piano si trovano una camera matrimoniale e un bagno finestrato. Tutti gli ambienti affacciano direttamente su un terrazzo vivibile, ideale per pranzi e cene all'aperto. Una scala interna collega il piano principale al livello superiore, piano servizi, dove sono presenti una seconda camera matrimoniale con accesso a un balcone, una cameretta e un secondo bagno, anch'esso dotato di finestra. La proprietà comprende inoltre un posto auto, elemento particolarmente prezioso data la centralità della zona.
L'immobile occupa il secondo e terzo piano di un piccolo stabile in cortina del 2006, privo di ascensore e composto da sole cinque unità abitative. Si presenta in buono stato di manutenzione.
La posizione, estremamente centrale, consente di raggiungere comodamente a piedi ogni servizio essenziale. Nelle immediate vicinanze sono presenti scuole di ogni ordine e grado, fermate dei mezzi pubblici, palestre, supermercati e numerose attività commerciali, rendendo la soluzione ideale per chi desidera muoversi senza auto o garantire autonomia ai propri figli adolescenti. APE "E"

LEGGI TUTTO

CONDIVIDI SUI SOCIAL

DATI PRINCIPALI

Riferimento
640832
Contratto
Vendita
Tipologia
Appartamento
Superficie
110 mq
Locali
4
Camere da letto
3
Cucina
A vista
Bagni
2
Piano
Su più livelli
Totale piani
3
Box/Posto auto
Singolo

CARATTERISTICHE

Ascensore

COSTI

Prezzo
€ 239.000,00
Spese condominiali
€ 20,00 / mese

EFFICIENZA ENERGETICA

Stato
Abitabile
Anno costruzione
2006
Riscaldamento
Autonomo
Climatizzazione
Si
Classe energetica
F
IPE
145,00 kWh/m²a

A+

A

B

C

D

E

145,00 kWh/m²a | Classe energetica F

F

G

MAPPA

ANNUNCI SIMILI

VENDITA 20
€ 310.000
Appartamento in Vendita a Monterotondo (Roma)
  • Quadrilocale
  • 120 mq
  • 2 bagni
VENDITA 20
€ 359.000
Appartamento in Vendita a Monterotondo (Roma)
  • Quadrilocale
  • 120 mq
  • 1 bagno