Appartamento da ristrutturare in via Milano VENDITA

Via Milano - Roma (Roma)
€ 497.000
  • Più di 5 locali
  • 240 mq
  • 1 bagno

Appartamento in Vendita a Roma

! IN TRATTATIVA !

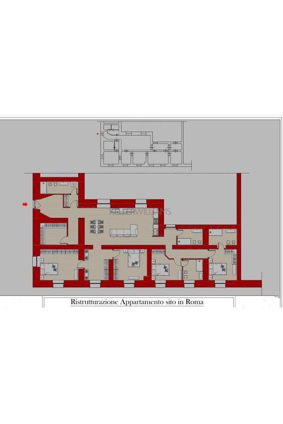
A 500 metri da Fontana di Trevi, a pochi passi dal Quirinale e da Rione Monti e più precisamente in via Milano, Keller Williams Home propone in vendita in esclusiva un appartamento di circa 240 mq posto al piano seminterrato, completamente da ristrutturare con ingresso indipendente direttamente da strada ed un eventuale secondo ingresso dal condominio.
L'immobile, che nasce suddiviso in due appartamenti, negli ultimi anni è stato utilizzato come ristorante di lusso; infatti, risulta attualmente accatastato C1 ma sono state già avviate le pratiche per il ripristino in A2.

La planimetria permetterebbe la creazione di un unico grande appartamento che consentirebbe la realizzazione di un doppio soggiorno, un’ampia cucina, cinque camere e servizi o, la realizzazione di due singoli appartamenti, come da progetti realizzati, visibili nella sezione planimetria.

A differenza della maggior parte dei seminterrati, grazie alla presenza di finestre molto ampie e il confinare con l’interno dello stabile e non direttamente con la strada, l’immobile non presenta particolari problemi di umidità e di luminosità.

La posizione strategica, a metà strada tra il caratteristico Rione Monti e Fontana di Trevi rende l'appartamento perfetto per chi volesse metterlo a reddito come struttura ricettiva o per chi volesse una residenza di pregio in pieno centro. Contattaci per maggiori informazioni. Rif. KWH 939 MAGRAN

*Le presenti informazioni e planimetrie sono meramente indicative e non costituiscono elementi contrattuali.

LEGGI TUTTO

CONDIVIDI SUI SOCIAL

DATI PRINCIPALI

Riferimento
635233
Contratto
Vendita
Tipologia
Appartamento
Superficie
240 mq
Locali
5
Camere da letto
4
Cucina
Abitabile
Bagni
1
Piano
Seminterrato
Totale piani
5

CARATTERISTICHE

Ascensore

COSTI

Prezzo
€ 497.000,00
Spese condominiali
€ 40,00 / mese

EFFICIENZA ENERGETICA

Stato
Da ristrutturare
Anno costruzione
1960
Riscaldamento
Centralizzato
Classe energetica
G
IPE
175,00 kWh/m²a

A+

A

B

C

D

E

F

175,00 kWh/m²a | Classe energetica G

G

MAPPA

ANNUNCI SIMILI

VENDITA 20
€ 890.000
Appartamento in Vendita a Roma (Roma)
  • Più di 5 locali
  • 180 mq
  • 2 bagni
VENDITA 20
€ 735.000
Appartamento in Vendita a Roma (Roma)
  • Più di 5 locali
  • 138 mq
  • 1 bagno
VENDITA 17
€ 1.390.000
Appartamento in Vendita a Roma (Roma)
  • Più di 5 locali
  • 160 mq
  • 2 bagni
VENDITA 18
€ 3.500.000
Appartamento in Vendita a Roma (Roma)
  • Più di 5 locali
  • 285 mq
  • 2 bagni
VENDITA 20
€ 1.175.000
Appartamento in Vendita a Roma (Roma)
  • Più di 5 locali
  • 316 mq
  • 4 bagni
VENDITA 20
€ 1.175.000
Appartamento in Vendita a Roma (Roma)
  • Più di 5 locali
  • 316 mq
  • 4 bagni
VENDITA 20
€ 860.000
Appartamento in Vendita a Roma (Roma)
  • Più di 5 locali
  • 130 mq
  • 2 bagni