APPARTAMENTO CON TERRAZZO,GIARDINO, CANTINA E BOX AUTO VENDITA

Via Vincenzo Ussani - Roma (Roma)
€ 890.000
  • Più di 5 locali
  • 243 mq
  • 3 bagni

Appartamento in Vendita a Roma

Via Vincenzo Ussani Esclusivo appartamento con terrazzo, giardino di 600 mq, cantina e box auto

In una delle vie più eleganti e riservate della zona, Via Vincenzo Ussani, immersa nella quiete e caratterizzata da contesti residenziali di alto livello, proponiamo in vendita una prestigiosa residenza situata al primo piano di un condominio signorile.

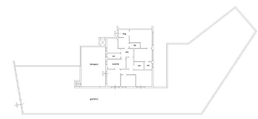
L'appartamento, di grande rappresentanza, si sviluppa su ambienti ampi e luminosi:
Ingresso
Salone doppio
Cucina abitabile con tinello,
Tre camere da letto
Tre bagni
Terrazzi
Giardino

La proprietà gode di un doppio ingresso, sia indipendente che condominiale, con ulteriore accesso da Via Gino Funaioli, elemento che garantisce massima privacy e funzionalità.

Superfici:
Appartamento: 160 mq
Terrazzi: 40 mq
Giardino privato: 600 mq
Box auto: 20 mq
Cantina: 4 mq

Elemento distintivo della proprietà è l'esclusivo giardino privato di 600 mq, perfetto per momenti di relax e convivialità, oltre ai terrazzi vivibili che ampliano gli spazi esterni.
Le finiture interne esprimono eleganza e qualità, con pavimentazione in parquet e marmo e infissi in legno Douglas. L'immobile è inoltre dotato di porta blindata e videocitofono.
Riscaldamento centralizzato con contabilizzatori di calore e produzione di acqua calda tramite scaldabagno elettrico.
Una soluzione di prestigio, ideale per chi desidera vivere in un contesto esclusivo, con ampi spazi interni ed esterni, doppio accesso e un elevato livello di privacy e tranquillità.

"La documentazione fotografica allegata comprende sia immagini dello stato di fatto attuale, sia elaborazioni grafiche tridimensionali (rendering). Queste ultime sono finalizzate esclusivamente a illustrare una possibile ipotesi di ristrutturazione e ridistribuzione degli spazi interni, non costituendo vincolo contrattuale."

LEGGI TUTTO

CONDIVIDI SUI SOCIAL

DATI PRINCIPALI

Riferimento
638987
Contratto
Vendita
Tipologia
Appartamento
Superficie
243 mq
Locali
5
Camere da letto
3
Cucina
Abitabile
Bagni
3
Piano
1 °
Totale piani
4
Box/Posto auto
Singolo

CARATTERISTICHE

Ascensore

COSTI

Prezzo
€ 890.000,00
Spese condominiali
€ 200,00 / mese

EFFICIENZA ENERGETICA

Stato
Abitabile
Anno costruzione
1970
Riscaldamento
Centralizzato
Climatizzazione
Si
Classe energetica
G
IPE
180,00 kWh/m²a

A+

A

B

C

D

E

F

180,00 kWh/m²a | Classe energetica G

G

MAPPA

ANNUNCI SIMILI

VENDITA 20
€ 848.000
Appartamento in Vendita a Roma (Roma)
  • Più di 5 locali
  • 180 mq
  • 3 bagni
VENDITA 20
€ 849.000
Appartamento in Vendita a Roma (Roma)
  • Più di 5 locali
  • 160 mq
  • 3 bagni
VENDITA 20
€ 505.000
Appartamento in Vendita a Roma (Roma)
  • Più di 5 locali
  • 150 mq
  • 2 bagni
VENDITA 20
€ 645.000
Appartamento in Vendita a Roma (Roma)
  • Più di 5 locali
  • 160 mq
  • 2 bagni
VENDITA 20
€ 549.000
Appartamento in Vendita a Roma (Roma)
  • Più di 5 locali
  • 145 mq
  • 2 bagni
VENDITA 20
€ 630.000
Appartamento in Vendita a Roma (Roma)
  • Più di 5 locali
  • 157 mq
  • 2 bagni