APPARTAMENTO CON AMPIO GIARDINO E SALA HOBBY VENDITA

Via Monte Rosa - Guidonia Montecelio (Roma)
€ 179.000
  • Quadrilocale
  • 132 mq
  • 2 bagni

Appartamento in Vendita a Guidonia Montecelio

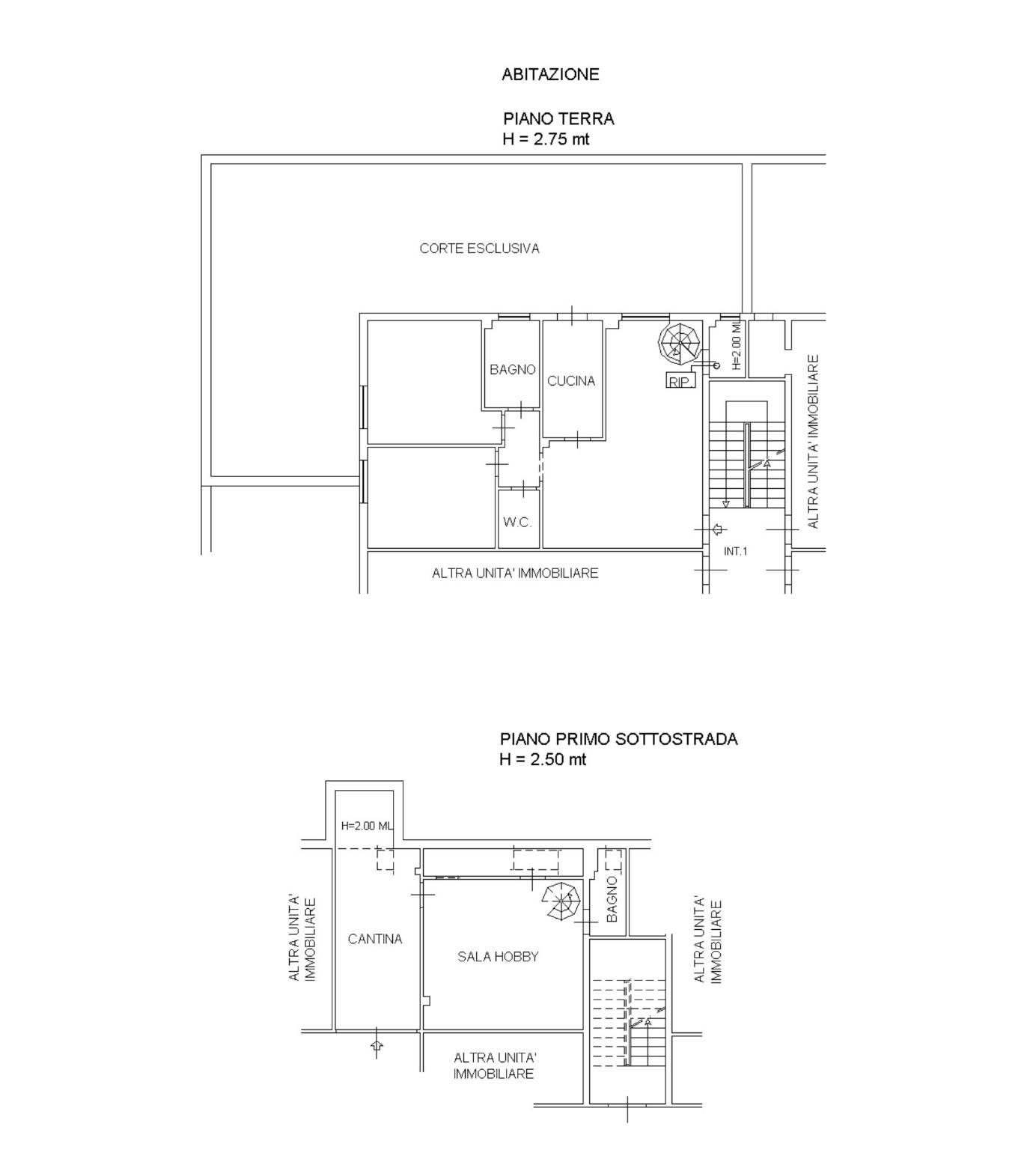
In una delle zone residenziali più apprezzate di Colleverde di Guidonia vicino ai principali servizi, proponiamo in vendita un appartamento al piano terra, situato in una palazzina in cortina, perfetto per chi desidera vivere in un contesto tranquillo e riservato senza rinunciare alla comodità degli spazi.

L’abitazione si sviluppa su una superficie di circa 80 mq ed è composta da un ampio soggiorno, una cucina abitabile, due camere matrimoniali e due bagni. Gli ambienti risultano ben distribuiti e particolarmente luminosi, con accesso diretto al giardino da entrambe le zone principali della casa.

Una scala interna conduce al piano seminterrato, dove troviamo una spaziosa sala hobby con camino, ideale come zona relax, studio, area giochi o per attività ricreative, accompagnata da un terzo bagno di servizio.

Elemento distintivo dell’immobile è il curato giardino privato di 135 mq, accessibile sia dal soggiorno che dalla cucina, uno spazio esterno prezioso da vivere in ogni stagione.

La proprietà si completa con un comodo box auto di 17 mq.

Una soluzione abitativa completa e versatile, ideale per famiglie o per chi è alla ricerca di ambienti funzionali e accoglienti in un contesto ben collegato ma immerso nel verde.

Per maggiori informazioni o per fissare un appuntamento, non esitate a contattarci.

LEGGI TUTTO

CONDIVIDI SUI SOCIAL

DATI PRINCIPALI

Riferimento
631589
Contratto
Vendita
Tipologia
Appartamento
Superficie
132 mq
Locali
4
Camere da letto
2
Cucina
Abitabile
Bagni
2
Piano
Piano terra
Totale piani
4
Box/Posto auto
Singolo

CARATTERISTICHE

Ascensore

COSTI

Prezzo
€ 179.000,00
Spese condominiali
€ 50,00 / mese

EFFICIENZA ENERGETICA

Stato
Da ristrutturare
Anno costruzione
1980
Riscaldamento
Autonomo
Classe energetica
G
IPE
175,00 kWh/m²a

A+

A

B

C

D

E

F

175,00 kWh/m²a | Classe energetica G

G

MAPPA

ANNUNCI SIMILI

VENDITA 20
€ 275.000
Appartamento in Vendita a Guidonia Montecelio (Roma)
  • Quadrilocale
  • 130 mq
  • 2 bagni
VENDITA 20
€ 215.000
Appartamento in Vendita a Guidonia Montecelio (Roma)
  • Più di 5 locali
  • 130 mq
  • 2 bagni