Quadrilocale ristrutturato con terrazzo di 50 mq VENDITA

Via Giovanni Pascoli 38 - Guidonia Montecelio (Roma)
€ 199.000
  • Quadrilocale
  • 137 mq
  • 1 bagno

Appartamento in Vendita a Guidonia Montecelio

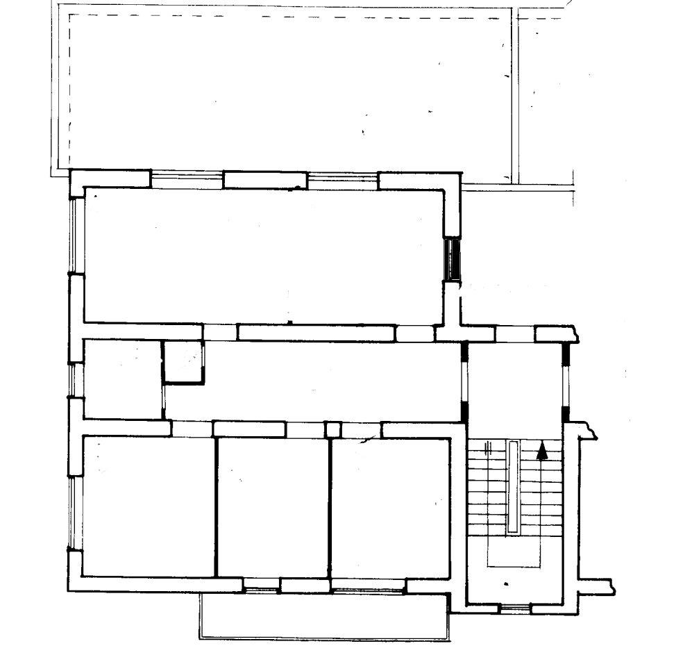
Proponiamo in vendita un ampio quadrilocale di 120 mq interni, completamente ristrutturato, con un ampio terrazzo ed un balcone, situato a Setteville di Guidonia, in una zona centrale e ben servita a pochi passi dai principali servizi raggiungibili a piedi.
L’immobile si trova al quarto piano di un piccolo stabile in buone condizioni e si sviluppa su una superficie generosa cosi suddivisa:

un luminoso doppio soggiorno con cucina americana a vista di circa 50 mq, due camere da letto matrimoniali di cui una con uno spazio dedicato a cabina armadio, una cameretta, un bagno finestrato con box doccia e un comodo disimpegno che separa in modo funzionale la zona giorno dalla zona notte.

Gli spazi esterni includono un terrazzo di circa 50 mq con accesso diretto dalla zona giorno, completamente pavimentato, e un balcone a servizio di due delle camere da letto, che garantisce ulteriore luminosità e sfogo esterno.

L’intero immobile è stato ristrutturato recentemente, con rifacimento degli impianti elettrici e idraulici, nuovi rivestimenti e pavimentazione. La disposizione interna, realizzata con pareti non portanti, consente una facile personalizzazione degli spazi, con la possibilità di ricavare una terza camera da letto o ampliare ulteriormente la zona living.

Soluzione ideale per famiglie o per chi è alla ricerca di spazi ampi e versatili, sia interni che esterni, in un contesto residenziale comodo e ben collegato.

PREZZO RICHIESTO: € 199.000

LEGGI TUTTO

CONDIVIDI SUI SOCIAL

DATI PRINCIPALI

Riferimento
631576
Contratto
Vendita
Tipologia
Appartamento
Superficie
137 mq
Locali
4
Camere da letto
3
Cucina
A vista
Bagni
1
Piano
4 °
Totale piani
4

CARATTERISTICHE

Ascensore

COSTI

Prezzo
€ 199.000,00
Spese condominiali
€ 85,00 / mese

EFFICIENZA ENERGETICA

Stato
Ristrutturato
Anno costruzione
1985
Riscaldamento
Centralizzato
Climatizzazione
Si
Classe energetica
G
IPE
175,00 kWh/m²a

A+

A

B

C

D

E

F

175,00 kWh/m²a | Classe energetica G

G

MAPPA

ANNUNCI SIMILI

VENDITA 20
€ 215.000
Appartamento in Vendita a Guidonia Montecelio (Roma)
  • Più di 5 locali
  • 130 mq
  • 2 bagni
VENDITA 20
€ 275.000
Appartamento in Vendita a Guidonia Montecelio (Roma)
  • Quadrilocale
  • 130 mq
  • 2 bagni
VENDITA 20
€ 160.000
Appartamento in Vendita a Guidonia Montecelio (Roma)
  • Quadrilocale
  • 110 mq
  • 2 bagni
VENDITA 20
€ 279.000
Appartamento in Vendita a Guidonia Montecelio (Roma)
  • Più di 5 locali
  • 220 mq
  • 3 bagni