Appartamento ad torevecchia vicino gemelli VENDITA

Via Fanny Tacchinardi - Roma (Roma)
€ 325.000
  • Trilocale
  • 102 mq
  • 1 bagno

Appartamento in Vendita a Roma

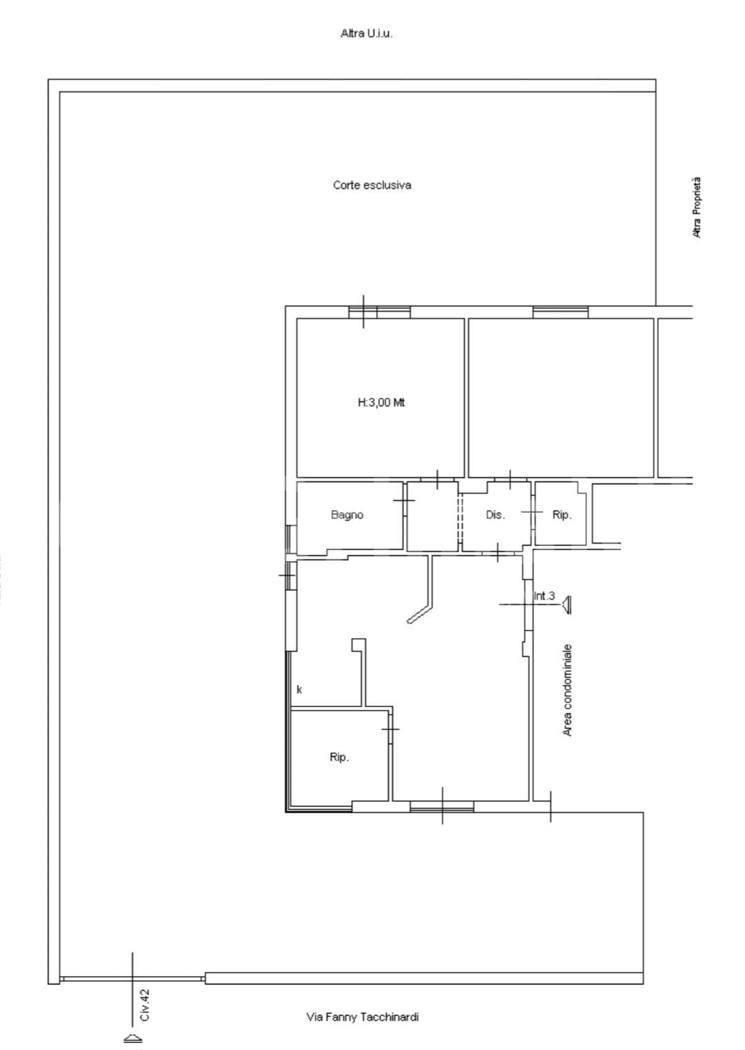
Situato nel cuore storico di Torrevecchia, l’immobile si trova tra Via Fanny Tacchinardi dedicata alla celebre soprano ottocentesca e la rinomata Via Pietro Maffi, arteria pulsante e commerciale del quartiere. L'area rappresenta il mix ideale tra la Roma autentica degli anni '50 e la modernità: una zona ricca di identità, oggi diventata un punto strategico servitissimo, a pochi passi da Via della Pineta Sacchetti e dal Policlinico Gemelli.
​L’unità immobiliare, con una superficie di 102 mq posta al piano terra, è caratterizzata da ambienti ampi e regolari che garantiscono un'ottima vivibilità. La distribuzione interna prevede un salone a vista, due camere da letto matrimoniali, una cucina abitabile, un servizio e due pratici ripostigli, fondamentali per un'efficiente organizzazione degli spazi domestici.
​Elemento di assoluto prestigio è il vasto giardino perimetrale di circa 230 mq, una rarità urbana che abbraccia l'intera proprietà: tutti i vani dell'appartamento godono infatti di un affaccio diretto sulla corte esterna, garantendo un senso di continuità tra interni ed esterni. Questo ampio spazio all'aperto, oltre a offrire una cornice di assoluta riservatezza, è dotato di un passo carrabile che consente il parcheggio interno di uno o più veicoli. L’immobile, da ristrutturare, rappresenta una soluzione ideale per chi desidera una dimora su misura con un'importante pertinenza verde, in un contesto cittadino consolidato e ottimamente collegato.
Il prezzo richiesto e' di € 325.000

Si informa che le presenti informazioni e immagini non costituiscono elemento contrattuale ma hanno esclusivo carattere illustrativo.

LEGGI TUTTO

CONDIVIDI SUI SOCIAL

DATI PRINCIPALI

Riferimento
641576
Contratto
Vendita
Tipologia
Appartamento
Superficie
102 mq
Locali
3
Camere da letto
2
Cucina
Abitabile
Bagni
1
Piano
Piano terra
Totale piani
4
Box/Posto auto
Singolo

CARATTERISTICHE

Ascensore

COSTI

Prezzo
€ 325.000,00
Spese condominiali
€ 70,00 / mese

EFFICIENZA ENERGETICA

Stato
Da ristrutturare
Anno costruzione
1960
Riscaldamento
Autonomo
Climatizzazione
Si
Classe energetica
G
IPE
176,00 kWh/m²a

A+

A

B

C

D

E

F

176,00 kWh/m²a | Classe energetica G

G

MAPPA

ANNUNCI SIMILI

VENDITA 13
€ 279.000
Appartamento in Vendita a Roma (Roma)
  • Trilocale
  • 90 mq
  • 1 bagno