APPARTAMENTO 80 MQ CON TERRAZZO VENDITA

Via del Fosso dell'Osa - Roma, Zona Castelverde
€ 129.000
  • Trilocale
  • 80 mq
  • 1 bagno

Appartamento in Vendita a Roma

Mediazionecasa propone in vendita
Codice Unico: RM12891

???? APPARTAMENTO 80 MQ CON TERRAZZO

???? Indirizzo: Via Cupello, Villaggio Prenestino
???? Piano: 3° ed ultimo piano
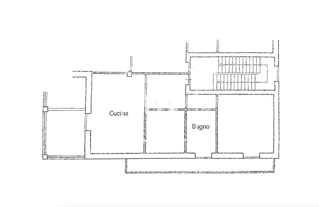
???? Superficie interna: 80 mq
???? Terrazzo: 15 mq

???? Composizione interna:
Ampio salone con angolo cottura ????????
Camera matrimoniale ????
Cameretta ????
Bagno finestrato ????
Terrazzo vivibile di 15 mq, ideale per pranzi all’aperto e momenti di relax ????☀

✨ Caratteristiche dell’immobile:
✅ Palazzina in tinta, costruzione anni ‘80 ????
✅ Buona distribuzione degli spazi per un’ottima vivibilità ????
✅ Zona servita e ben collegata, con negozi, scuole e servizi nelle vicinanze ????????

LIBERO SUBITO.

???? Prezzo: 129.000 €

???? Per maggiori informazioni o per fissare un appuntamento, contattaci!

LEGGI TUTTO

CONDIVIDI SUI SOCIAL

DATI PRINCIPALI

Riferimento
637292
Contratto
Vendita
Tipologia
Appartamento
Superficie
80 mq
Locali
3
Camere da letto
2
Cucina
Angolo cottura
Bagni
1
Piano
3 °
Totale piani
3

CARATTERISTICHE

Ascensore

COSTI

Prezzo
€ 129.000,00
Spese condominiali
€ 30,00 / mese

EFFICIENZA ENERGETICA

Stato
Abitabile
Anno costruzione
1985
Riscaldamento
Autonomo
Classe energetica
G
IPE
175,00 kWh/m²a

A+

A

B

C

D

E

F

175,00 kWh/m²a | Classe energetica G

G

MAPPA

ANNUNCI SIMILI

VENDITA 16
€ 170.000
Appartamento in Vendita a Roma, Zona Castelverde
  • Trilocale
  • 100 mq
  • 1 bagno
VENDITA 20
€ 159.000
Appartamento in Vendita a Roma, Zona Castelverde
  • Trilocale
  • 100 mq
  • 1 bagno
VENDITA 20
€ 169.000
Appartamento in Vendita a Roma, Zona Castelverde
  • Trilocale
  • 80 mq
  • 2 bagni