APPARTAMENTO 80 MQ CON TERRAZZO VENDITA

Via del Fosso dell'Osa - Roma, Zona Castelverde
€ 129.000
  • Trilocale
  • 80 mq
  • 1 bagno

Appartamento in Vendita a Roma

APPARTAMENTO 80 MQ CON TERRAZZO
_________ RM12891 _________
APPARTAMENTO 80 MQ CON TERRAZZO
Indirizzo: Via Cupello, Villaggio Prenestino
Piano: 3° ed ultimo piano
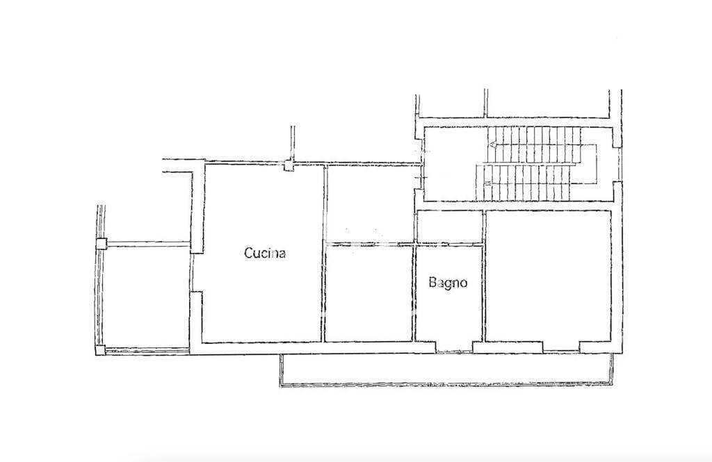
Superficie interna: 80 mq
Terrazzo: 15 mq

???? Composizione interna:
Ampio salone con angolo cottura
Camera matrimoniale
Cameretta
Bagno finestrato
Terrazzo vivibile di 15 mq, ideale per pranzi all’aperto e momenti di relax

Caratteristiche dell’immobile:
Palazzina in tinta, costruzione anni ‘80
Buona distribuzione degli spazi per un’ottima vivibilità
Zona servita e ben collegata, con negozi, scuole e servizi nelle vicinanze

LIBERO SUBITO.
Per maggiori informazioni o per fissare un appuntamento, contattaci!

LEGGI TUTTO

CONDIVIDI SUI SOCIAL

DATI PRINCIPALI

Riferimento
635095
Contratto
Vendita
Tipologia
Appartamento
Superficie
80 mq
Locali
3
Camere da letto
2
Cucina
Angolo cottura
Bagni
1
Piano
3 °
Totale piani
3

CARATTERISTICHE

Ascensore

COSTI

Prezzo
€ 129.000,00

EFFICIENZA ENERGETICA

Stato
Abitabile
Anno costruzione
1990
Riscaldamento
Autonomo
Climatizzazione
Si
Classe energetica
G
IPE
175,00 kWh/m²a

A+

A

B

C

D

E

F

175,00 kWh/m²a | Classe energetica G

G

MAPPA

ANNUNCI SIMILI

VENDITA 16
€ 170.000
Appartamento in Vendita a Roma, Zona Castelverde
  • Trilocale
  • 100 mq
  • 1 bagno
VENDITA 20
€ 159.000
Appartamento in Vendita a Roma, Zona Castelverde
  • Trilocale
  • 100 mq
  • 1 bagno
VENDITA 20
€ 169.000
Appartamento in Vendita a Roma, Zona Castelverde
  • Trilocale
  • 80 mq
  • 2 bagni