Ad. Piazza Zama IV° piano ristrutturato VENDITA

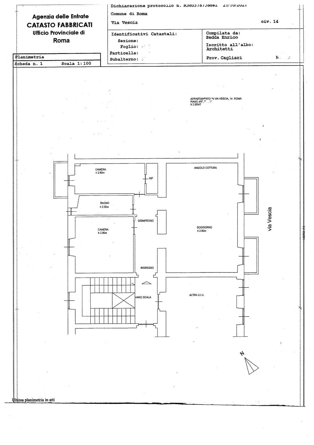
Via Vescia 14 - Roma, Zona San Giovanni
€ 390.000
  • Trilocale
  • 90 mq
  • 1 bagno

Appartamento in Vendita a Roma

Ad. Piazza Zama più precisamente in Via Vescia nelle immediate vicinanze della stazione metropolitana A di San Giovanni, in palazzina restaurata, proponiamo appartamento luminosissimo al 4° piano di mq 90. L’immobile si compone di ingresso, soggiorno doppio con cucina a vista, camera matrimoniale, camera singola, bagno, ripostiglio e tre balconi. L’appartamento è stato oggetto di recenti lavori di ristrutturazione che includono infissi in alluminio insonorizzati con isolamento termico di ultima generazione, porte a scrigno, pavimentazione in gres porcellanato, impianti idraulico ed elettrico nuovi, tende da sole e boiler nuovo. La posizione di questo immobile è ottimale per la presenza di negozi e servizi nelle vicinanze, inoltre, la vicinanza del capolinea di numerosi autobus a Piazza Zama e la stazione della metropolitana A Re di Roma rendono questo appartamento perfettamente collegato con il resto della città, rendendo interessante questa porzione immobiliare sia come abitazione personale sia come investimento per una futura locazione. Presente un'area giochi per bambini.

LEGGI TUTTO

CONDIVIDI SUI SOCIAL

DATI PRINCIPALI

Riferimento
627540
Contratto
Vendita
Tipologia
Appartamento
Superficie
90 mq
Locali
3
Camere da letto
2
Cucina
A vista
Bagni
1
Piano
4 °
Totale piani
8

CARATTERISTICHE

Ascensore

COSTI

Prezzo
€ 390.000,00
Spese condominiali
€ 100,00 / mese

EFFICIENZA ENERGETICA

Stato
Ristrutturato
Anno costruzione
1950
Climatizzazione
Si
Classe energetica
G
IPE
175,00 kWh/m²a

A+

A

B

C

D

E

F

175,00 kWh/m²a | Classe energetica G

G

MAPPA

ANNUNCI SIMILI

VENDITA 3
€ 209.000
Appartamento in Vendita a Roma, Zona San Giovanni
  • Trilocale
  • 90 mq
  • 1 bagno
VENDITA 20
€ 560.000
Appartamento in Vendita a Roma, Zona Appio Latino
  • Più di 5 locali
  • 144 mq
  • 2 bagni
VENDITA 20
€ 750.000
Appartamento in Vendita a Roma, Zona Appio Latino
  • Più di 5 locali
  • 215 mq
  • 2 bagni
VENDITA 14
€ 420.000
Appartamento in Vendita a Roma, Zona San Giovanni
  • Quadrilocale
  • 117 mq
  • 1 bagno
VENDITA 20
€ 890.000
Appartamento in Vendita a Roma, Zona San Giovanni
  • Più di 5 locali
  • 206 mq
  • 3 bagni
VENDITA 20
€ 555.000
Appartamento in Vendita a Roma, Zona Appio Latino
  • Trilocale
  • 110 mq
  • 1 bagno
VENDITA 14
€ 290.000
Appartamento in Vendita a Roma, Zona Re di Roma
  • Trilocale
  • 85 mq
  • 2 bagni
VENDITA 4
€ 920.000
Appartamento in Vendita a Roma, Zona Appio Latino
  • Più di 5 locali
  • 180 mq
  • 3 bagni
VENDITA 4
€ 450.000
Appartamento in Vendita a Roma, Zona Appio Latino
  • Trilocale
  • 88 mq
  • 2 bagni