ACILIA - VIA TANCREDI PARMEGGIANI VENDITA

Via Tancredi Parmeggiani - Roma, Zona Acilia
€ 179.000
  • Quadrilocale
  • 120 mq
  • 2 bagni

Appartamento in Vendita a Roma

ACILIA - VIA TANCREDI PARMEGGIANI
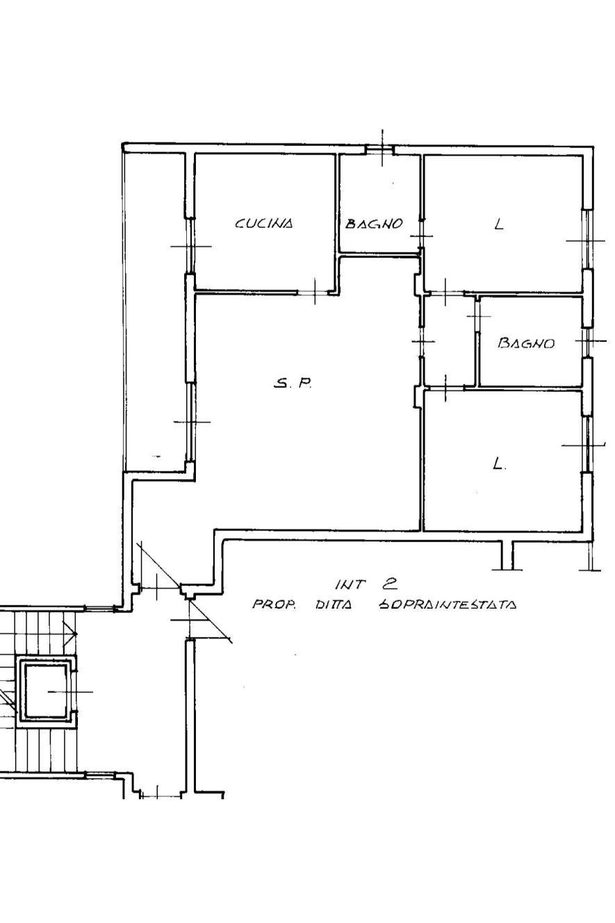
Proponiamo in vendita un quadrilocale di circa 120mq sito al primo piano di una palazzina con ascensore in posizione servita.

L'appartamento è così distribuito su un unico livello:
Salone con balcone, cucina abitabile con accesso diretto al balcone, camera matrimoniale con bagno interno finestrato dotato di vasca idromassaggio, studio, seconda camera da letto e ulteriore bagno finestrato con box doccia.

ACCESSORI E RIVESTIMENTI:
Infissi in vetro singolo, grate, zanzariere, tende da sole, sgabuzzino, condizionatori e riscaldamento autonomo. Posto auto scoperto e cantina di proprietà.

Le spese condominiali ammontano a 660,00 € annui, salvo conguaglio.

L'immobile si vende locato.

Motivi per cui vale la pena acquistare l'immobile:
- AMPIA METRATURA
- ESPOSIZIONE EST OVEST
- POSIZIONE SERVITA
- CANTINA E POSTO AUTO
- OTTIMO INVESTIMENTO

———————————————————————————————————————————————-
Le indicazioni riportate e le immagini devono considerarsi indicative e non hanno alcun vincolo contrattuale. Alcune metrature sono puramente indicative. Alcuni indirizzi di Google Maps potrebbero non corrispondere esattamente all'ubicazione dell'immobile ma indicare la zona, questo al fine di garantire la privacy dei proprietari. L’Agenzia Immobiliare Nuova Axa Palocco S. r. L. con sede in Via Eschilo 186C, declina ogni responsabilità per eventuali ed involontarie incongruenze tra le effettive caratteristiche dell’immobile e la descrizione informativa.

LEGGI TUTTO

CONDIVIDI SUI SOCIAL

DATI PRINCIPALI

Riferimento
629245
Contratto
Vendita
Tipologia
Appartamento
Superficie
120 mq
Locali
4
Camere da letto
2
Cucina
Abitabile
Bagni
2
Piano
1 °
Totale piani
4
Box/Posto auto
Singolo

CARATTERISTICHE

Ascensore

COSTI

Prezzo
€ 179.000,00
Spese condominiali
€ 55,00 / mese

EFFICIENZA ENERGETICA

Stato
Abitabile
Anno costruzione
1986
Riscaldamento
Autonomo
Climatizzazione
Si
Classe energetica
E
IPE
175,00 kWh/m²a

A+

A

B

C

D

175,00 kWh/m²a | Classe energetica E

E

F

G

MAPPA

ANNUNCI SIMILI

VENDITA
€ 260.000
Appartamento in Vendita a Roma (Roma)
  • Quadrilocale
  • 80 mq
  • 2 bagni
VENDITA 20
€ 199.000
Appartamento in Vendita a Roma, Frazione Dragona
  • Quadrilocale
  • 90 mq
  • 1 bagno
VENDITA 20
€ 289.000
Appartamento in Vendita a Roma, Zona Acilia
  • Più di 5 locali
  • 125 mq
  • 2 bagni
VENDITA 20
€ 319.000
Appartamento in Vendita a Roma, Zona Acilia
  • Quadrilocale
  • 130 mq
  • 2 bagni
VENDITA 11
€ 135.000
Appartamento in Vendita a Roma, Zona Acilia
  • Più di 5 locali
  • 117 mq
  • 2 bagni