Acilia, Madonnetta, bilivelli di recente costruzione VENDITA

Via Padre Giuseppe di Marco - Roma, Zona Acilia
€ 239.000
  • Quadrilocale
  • 71 mq
  • 2 bagni

Appartamento in Vendita a Roma

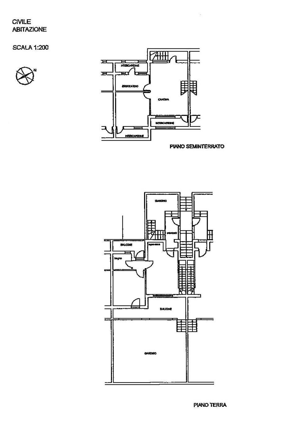
Acilia, Madonnetta - Via Padre Giuseppe di Marco, proponiamo la vendita di un appartamento duplex inferiore su due livelli, composto al piano terra da soggiorno con angolo cottura, una camera attualmente adibita a studio ed un bagno con vasca idromassaggio, mentre al piano seminterrato troviamo due ampi locali, comodi per diversi usi, con accesso indipendente anche dall'esterno. La casa dispone inoltre di balconi, un giardinetto privato di circa 40 mq ed un posto auto scoperto di 12 mq circa. L'immobile si presenta in buono stato, accessoriato con infissi in legno con doppio vetro, grate e zanzariere in tutte le camere, climatizzatori inverter ed un impianto di pannelli fotovoltaici per l'uso elettrico condominiale. Spese condominiali € 40 mensili circa.

In prossimità del centro sportivo Kristall e il grande magazzino Orizzonte, oltre a supermercati, farmacie e servizi di ogni genere, a pochi passi.

*Il contenuto dell’annuncio pubblicitario (informazioni e planimetrie) ha valore puramente indicativo e non costituisce elemento contrattuale.

LEGGI TUTTO

CONDIVIDI SUI SOCIAL

DATI PRINCIPALI

Riferimento
634483
Contratto
Vendita
Tipologia
Appartamento
Superficie
71 mq
Locali
4
Camere da letto
1
Cucina
Angolo cottura
Bagni
2
Piano
Piano terra
Totale piani
3
Box/Posto auto
Singolo

CARATTERISTICHE

Ascensore

COSTI

Prezzo
€ 239.000,00
Spese condominiali
€ 40,00 / mese

EFFICIENZA ENERGETICA

Stato
Abitabile
Anno costruzione
2011
Riscaldamento
Autonomo
Climatizzazione
Si
Classe energetica
B
IPE
175,00 kWh/m²a

A+

A

175,00 kWh/m²a | Classe energetica B

B

C

D

E

F

G

MAPPA

ANNUNCI SIMILI

VENDITA 20
€ 299.000
Appartamento in Vendita a Roma, Zona Acilia
  • Quadrilocale
  • 102 mq
  • 2 bagni
VENDITA 20
€ 319.000
Appartamento in Vendita a Roma, Zona Acilia
  • Quadrilocale
  • 130 mq
  • 2 bagni
VENDITA 11
€ 135.000
Appartamento in Vendita a Roma, Zona Acilia
  • Più di 5 locali
  • 117 mq
  • 2 bagni
VENDITA 20
€ 249.000
Appartamento in Vendita a Roma, Zona Acilia
  • Quadrilocale
  • 115 mq
  • 2 bagni
VENDITA 20
€ 179.000
Appartamento in Vendita a Roma, Zona Acilia
  • Quadrilocale
  • 120 mq
  • 2 bagni