Accedi
Registrati
Palazzi/Stabili in vendita a Marano Equo
Home
Provincia di Roma, in vendita
Marano Equo
Palazzi/Stabili
1
annuncio
Ordina per
Più rilevante
Più recente
Meno recente
Più costoso
Meno costoso
Piace di più
Piace di meno
RAFFINA LA RICERCA
PUBBLICA ANNUNCIO GRATIS
VENDITA
20
€ 85.000
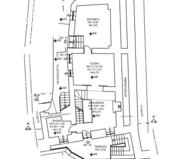
Palazzo - Edificio in Vendita
Palazzo/Stabile in Vendita
a Marano Equo (Roma)
Nella verdeggiante Valle dell'Aniene, in prossimità della cittadina di Subiaco, in affascinante borg ...
Più di 5 locali
190 mq
4 bagni
RAFFINA LA RICERCA
Affitto
Vendita
20
40
60
80
100
150
200
300
500
750
1000
1500
2000
5000
10000
20
40
60
80
100
150
200
300
500
750
1000
1500
2000
5000
10000
1
2
3
4
5
1
2
3
4
5
1
2
3
4
5
6
7
8
9
10
1
2
3
4
5
6
7
8
9
10
Tutti i tipi stanza
Doppia
Posto letto
Singola
Tripla
CERCA
RICERCHE CORRELATE
Palazzi/Stabili
in Vendita a Marano Equo (1)
×