Accedi
Registrati
Immobili commerciali in vendita a Fiano Romano
Home
Provincia di Roma, in vendita
Fiano Romano
Immobili commerciali
8
annunci
Ordina per
Più rilevante
Più recente
Meno recente
Più costoso
Meno costoso
Piace di più
Piace di meno
RAFFINA LA RICERCA
PUBBLICA ANNUNCIO GRATIS
VENDITA
10
€ 115.000
Locale commericiale e posto auto
Negozio in Vendita
a Fiano Romano (Roma)
Rivolta Immobiliare è lieta di proporre in vendita un locale commerciale di 84 m2, in via Tiberina ( ...
1 locale
87 mq
1 bagno
VENDITA
15
€ 200.000
VENDITA LOCALE FIANO ROMANO.
Negozio in Vendita
a Fiano Romano (Roma)
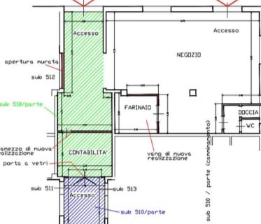
fiano romano, precisamente in via tiberina, proponiamo in vendita un locale c/1 di circa 400mq, in z ...
1 locale
400 mq
2 bagni
VENDITA
15
€ 50.000
Vendita mura e attività Bar al centro del paese
Negozio in Vendita
a Fiano Romano (Roma)
Se stai cercando un'ottima opportunità di investimento, non perdere l'occasione di diventare proprie ...
1 locale
35 mq
1 bagno
VENDITA
13
€ 350.000
Attività commerciale in vendita a Fiano Romano
Negozio in Vendita
a Fiano Romano (Roma)
VENDESI LICENZA TABACCHI E CARTOLIBRERIA – CENTRO COMMERCIALE CRISTALLO FIANO ROMANO All'interno de ...
1 locale
15 mq
VENDITA
15
€ 40.000
Attività commerciale via Pier Paolo Pasolini
Negozio in Vendita
a Fiano Romano (Roma)
Fiano Romano in zona in espansione a 50m dalla via Tiberina, nei pressi di altre attività commercial ...
2 locali
179 mq
1 bagno
VENDITA
20
€ 22.000
Cantina piano strada
Magazzino in Vendita
a Fiano Romano (Roma)
Cantina piano strada, ristrutturata uso monolocale con bagno finestrato e porta finestra di accesso ...
1 locale
20 mq
1 bagno
VENDITA
20
€ 65.593
NEGOZIO VIA PIETRO NENNI 2, FIANO ROMANO, RM
Negozio in Vendita
a Fiano Romano (Roma)
Immobile commerciale ubicato nei pressi di Fiano Romano, Via Pietro Nenni 2 DATA ASTA 22/04/2024 ...
Più di 5 locali
135 mq
1 bagno
VENDITA
10
€ 85.000
Vendesi ufficio in via Venezia n°31, Fiano Romano
Ufficio in Vendita
a Fiano Romano (Roma)
Vendesi ufficio da trasformare in appartamento ad uso ufficio in via Venezia n°31, comune di Fiano R ...
1 locale
48 mq
1 bagno
RAFFINA LA RICERCA
Affitto
Vendita
20
40
60
80
100
150
200
300
500
750
1000
1500
2000
5000
10000
20
40
60
80
100
150
200
300
500
750
1000
1500
2000
5000
10000
1
2
3
4
5
1
2
3
4
5
1
2
3
4
5
6
7
8
9
10
1
2
3
4
5
6
7
8
9
10
Tutti i tipi stanza
Doppia
Posto letto
Singola
Tripla
CERCA
RICERCHE CORRELATE
Immobili commerciali in
Affitto
a Fiano Romano (5)
Negozi-Showroom
in Vendita a Fiano Romano (6)
Magazzini-Depositi
in Vendita a Fiano Romano (1)
Uffici
in Vendita a Fiano Romano (1)
×