VILLINO INDIPENDENTE RECENTEMENTE RISTRUTTURATO VENDITA

Viale Luigi Einaudi - Zagarolo (Roma)
€ 235.000
  • Quadrilocale
  • 90 mq
  • 1 bagno

Villa in Vendita a Zagarolo

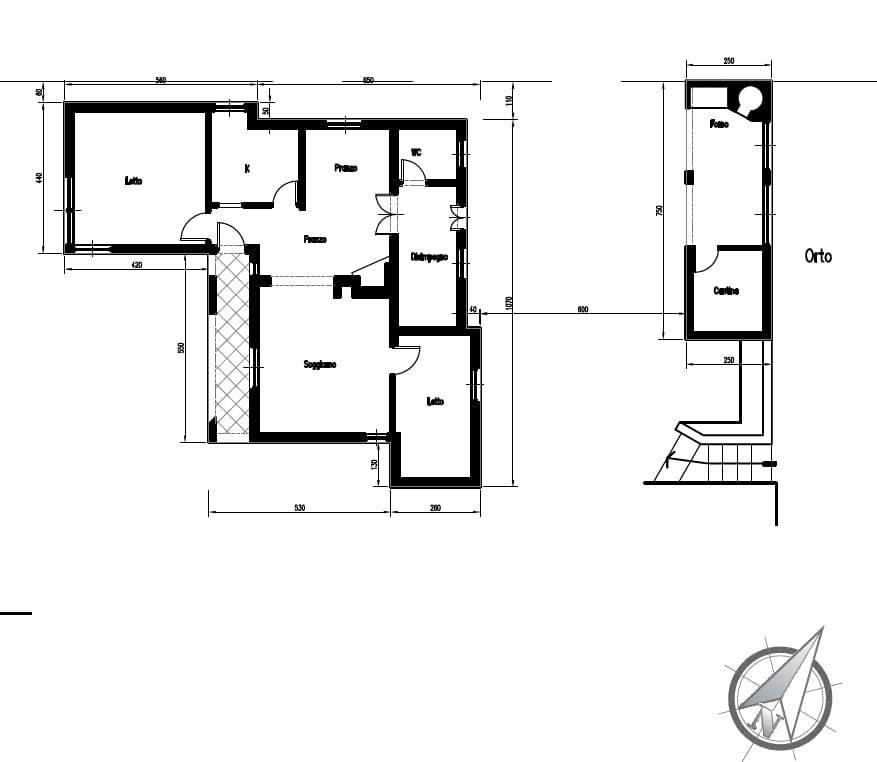
ThinkHome propone in vnedita,In zona Valle Martella, un delizioso villino indipendente, recentemente ristrutturato grazie al superbonus 110. Questa proprietà si sviluppa su un unico piano, garantendo un'ottima privacy, grazie al cancello e al muro perimetrale che la circondano. L'immobile è circondato da un ampio giardino di proprietà, completo di piscina, ideale per trascorrere momenti di relax all'aperto.

All'interno, l'abitazione presenta un ingresso che conduce a un luminoso salone con cucina a vista, tre camere da letto e un servizio, con la possibilità di realizzare un secondo bagno. I pavimenti in cotto, i soffitti con travi in legno e gli infissi in PVC con doppi vetri conferiscono un tocco di eleganza e comfort. Inoltre, sono presenti pannelli solari, che permettono di ridurre i costi energetici.

Esternamente, la proprietà è dotata di una spaziosa cantina e di un patio attrezzato con forno perfettamente funzionante, perfetto per cene all'aperto e momenti conviviali. È importante sottolineare che c'è anche la possibilità di acquistare due lotti di 1000 mq ciascuno, che includono un rustico, offrendo l'opportunità di creare un'altra abitazione.

Sono disponibili diversi posti auto all'esterno. Questa è un'ottima opportunità per chi cerca una casa indipendente in una zona tranquilla, ma ben collegata, ideale per famiglie o per chi desidera investire in un immobile con potenziale di sviluppo.
Dettaglio incarico - 9MYPDKML-Tutti i nostri immobili sono visibili sul nostro sito www.thinkhome.it e sul sito www.thinkhomemls.it

LEGGI TUTTO

CONDIVIDI SUI SOCIAL

DATI PRINCIPALI

Riferimento
638084
Contratto
Vendita
Tipologia
Villa
Superficie
90 mq
Locali
4
Camere da letto
3
Cucina
Angolo cottura
Bagni
1
Piano
Piano terra
Totale piani
1
Box/Posto auto
Doppio

CARATTERISTICHE

Ascensore

COSTI

Prezzo
€ 235.000,00

EFFICIENZA ENERGETICA

Stato
Ristrutturato
Anno costruzione
2000
Riscaldamento
Autonomo
Classe energetica
A3
IPE
351,00 kWh/m²a

A4

351,00 kWh/m²a | Classe energetica A3

A3

A2

A1

B

C

D

E

F

G

MAPPA

ANNUNCI SIMILI

VENDITA 20
€ 359.000
Villa in Vendita a Zagarolo (Roma)
  • Più di 5 locali
  • 250 mq
  • 2 bagni
VENDITA 20
€ 115.000
Villa in Vendita a Zagarolo (Roma)
  • Quadrilocale
  • 150 mq
  • 3 bagni
VENDITA 14
€ 229.000
Villa in Vendita a Zagarolo (Roma)
  • Più di 5 locali
  • 160 mq
  • 2 bagni