Villino con giardino e alta efficienza energetica VENDITA

Via Antonio Discovolo - Roma, Frazione Casal Palocco
€ 219.000
  • Bilocale
  • 90 mq
  • 2 bagni

Villetta a schiera in Vendita a Roma

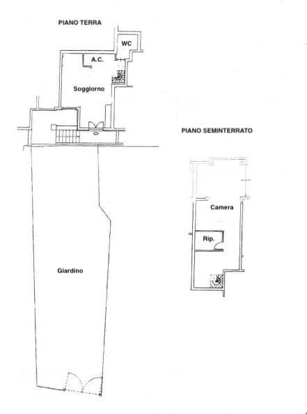
In contesto tranquillo e riservato, proponiamo in vendita un elegante villino a schiera di circa 90 mq, sviluppato su due livelli, con giardino privato di 130 mq e posto auto interno.
L’immobile fa parte di una villa degli anni '80, completamente ristrutturata e frazionata nel 2022: oggi si presenta in condizioni pari al nuovo, con finiture moderne e impianti efficienti.
Un investimento intelligente: efficienza energetica e costi di gestione minimi. Questa proprietà rappresenta una rara opportunità sul mercato grazie a dotazioni di ultima generazione che abbattono i costi di gestione. La presenza di un cappotto termico, di un impianto fotovoltaico per la produzione di energia elettrica e di un impianto solare termico per l'acqua calda sanitaria garantisce un'altissima efficienza energetica. Questi interventi si traducono in un vantaggio economico concreto e immediato, con un risparmio drastico sulle bollette e un comfort abitativo superiore in ogni stagione.
Distribuzione degli spazi:
• Piano rialzato: ampio soggiorno con cucina a vista e bagno. In origine era presente una camera da letto, eliminata per ampliare la zona giorno, ma facilmente ripristinabile secondo necessità.
• Piano seminterrato: camera matrimoniale con salotto privato, secondo bagno adibito a spogliatoio e lavanderia separata.
Esterni e dotazioni complete:
• Giardino privato di 130 mq con spazio verde e posto auto interno
• Accesso carrabile con cancello elettrico
• Impianto fotovoltaico
• Impianto solare termico
• Cappotto termico per un isolamento ottimale
• Infissi in PVC con doppio vetro
• Aria condizionata
• Riscaldamento autonomo
• Esposizione Sud/Est: garantisce ambienti luminosi e ben arieggiati
• Presente anche un giardino condominiale
Perfetto per chi cerca una soluzione indipendente, moderna, con spese di gestione quasi nulle e pronta da vivere. Ideale per una coppia, un professionista o una piccola famiglia attenta alla sostenibilità e al risparmio.

LEGGI TUTTO

CONDIVIDI SUI SOCIAL

DATI PRINCIPALI

Riferimento
640249
Contratto
Vendita
Tipologia
Villetta a schiera
Superficie
90 mq
Locali
2
Camere da letto
1
Cucina
Angolo cottura
Bagni
2
Piano
Piano terra
Totale piani
2
Box/Posto auto
Singolo

CARATTERISTICHE

Ascensore

COSTI

Prezzo
€ 219.000,00
Spese condominiali
€ 30,00 / mese

EFFICIENZA ENERGETICA

Stato
Ristrutturato
Anno costruzione
1980
Riscaldamento
Autonomo
Climatizzazione
Si
Classe energetica
A1
IPE
58,90 kWh/m²a

A4

A3

A2

58,90 kWh/m²a | Classe energetica A1

A1

B

C

D

E

F

G

MAPPA

ANNUNCI SIMILI

VENDITA 17
€ 290.000
Villetta a schiera in Vendita a Roma (Roma)
  • Più di 5 locali
  • 188 mq
  • 3 bagni
VENDITA 20
€ 199.000
Villetta a schiera in Vendita a Roma, Frazione Dragona
  • Quadrilocale
  • 70 mq
  • 2 bagni