VILLINO A SCHIERA RISTRUTTURATO SETTECAMINI – CARLO CASSOLA VENDITA

Via Carlo Cassola - Roma, Zona Settecamini
€ 215.000
  • Quadrilocale
  • 96 mq
  • 3 bagni

Villetta a schiera in Vendita a Roma

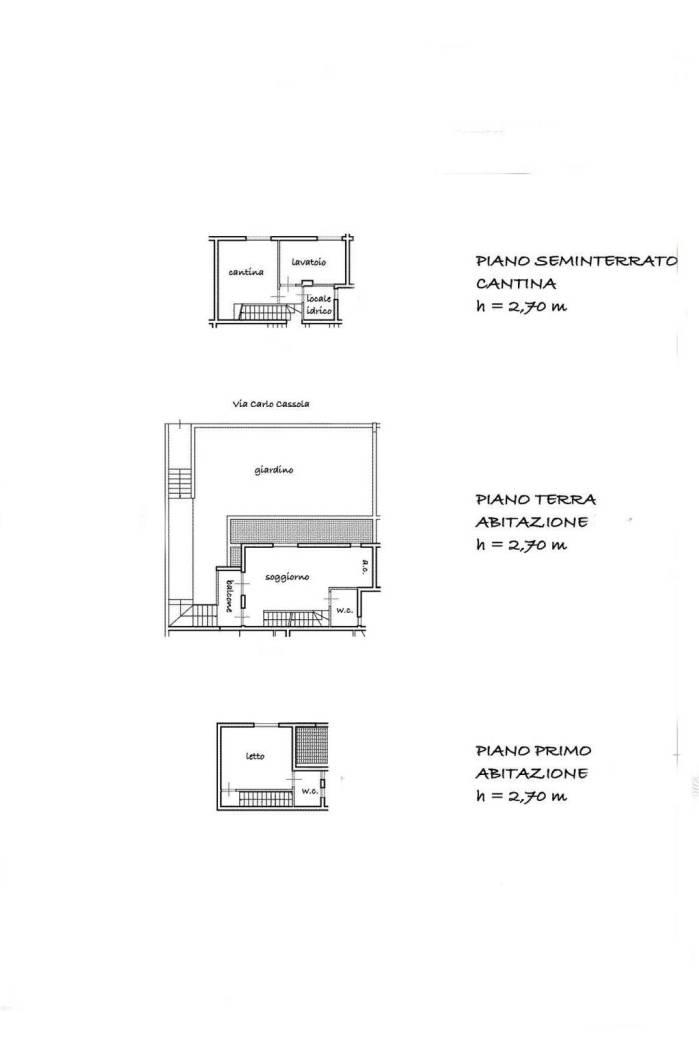
SETTECAMINI - Nelle immediate vicinanze di Via Casal Bianco, precisamente in Via Carlo Cassola, proponiamo in vendita un villino a schiera angolare situato in un complesso residenziale edificato nel 2010.
L'immobile, che si sviluppa su due piani fuori terra, è dotato di ingresso indipendente e presenta una superficie di 95 mq, insieme a un giardino privato di 60.
Internamente è stato completamente ristrutturato ed è cosi composto:
piano terra, soggiorno con angolo cottura e bagno di servizio. Salendo con una comoda scala si raggiunge il primo piano dove troviamo un’ampia camera matrimoniale con bagno padronale. Al piano seminterrato un ulteriore camera matrimoniale, una cameretta e un secondo bagno con accesso diretto tramite un portoncino blindato al box auto doppio di 25 mq.
Caratteristiche interne dell’immobile:
porta blindata, pavimenti in laminato, infissi con doppi vetri, grate protettive, riscaldamento autonomo, impianto di allarme.

Spese condominiali: 70 €/mese

Cl. En G

Euro 215.000

Per informazioni e visite: Tel. 333 182 3239

Hai bisogno di vendere la tua casa? Abbiamo delle agevolazioni per te!

LEGGI TUTTO

CONDIVIDI SUI SOCIAL

DATI PRINCIPALI

Riferimento
640156
Contratto
Vendita
Tipologia
Villetta a schiera
Superficie
96 mq
Locali
4
Camere da letto
3
Cucina
Angolo cottura
Bagni
3
Piano
1 °
Totale piani
2
Box/Posto auto
Doppio

CARATTERISTICHE

Ascensore

COSTI

Prezzo
€ 215.000,00
Spese condominiali
€ 70,00 / mese

EFFICIENZA ENERGETICA

Stato
Ristrutturato
Anno costruzione
1980
Riscaldamento
Autonomo
Classe energetica
G
IPE
175,00 kWh/m²a

A+

A

B

C

D

E

F

175,00 kWh/m²a | Classe energetica G

G

MAPPA

ANNUNCI SIMILI

VENDITA 20
€ 209.000
Villetta a schiera in Vendita a Roma (Roma)
  • Quadrilocale
  • 144 mq
  • 3 bagni
VENDITA 20
€ 199.000
Villetta a schiera in Vendita a Roma, Zona San Basilio
  • Quadrilocale
  • 110 mq
  • 2 bagni
VENDITA 20
€ 249.000
Villetta a schiera in Vendita a Roma, Zona Castelverde
  • Quadrilocale
  • 150 mq
  • 3 bagni
VENDITA 20
€ 299.000
Villetta a schiera in Vendita a Roma, Zona Castelverde
  • Più di 5 locali
  • 180 mq
  • 3 bagni
VENDITA 20
€ 309.000
Villetta a schiera in Vendita a Roma, Zona Ponte Di Nona
  • Più di 5 locali
  • 245 mq
  • 4 bagni
VENDITA 20
€ 349.000
Villetta a schiera in Vendita a Roma, Zona Bufalotta
  • Quadrilocale
  • 123 mq
  • 2 bagni