Villino a schiera con giardino di proprietà VENDITA

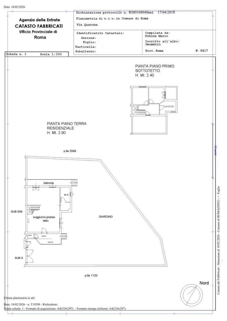
Via Quarona - Roma, Zona Valle Santa
€ 290.000
  • Trilocale
  • 90 mq
  • 2 bagni

Villetta a schiera in Vendita a Roma

Boccea/Valle Santa Elegante villino a schiera con ampio giardino
In contesto tranquillo e residenziale, proponiamo in vendita splendida porzione di villino a schiera di recente costruzione, in ottime condizioni, ideale per famiglie o per chi desidera spazi esterni vivibili e comfort moderni.
L’immobile, di circa 90 mq distribuiti su due livelli, si presenta così:
Piano terra:
Ampio e luminoso salone con angolo cottura (ambiente unico)
Bagno finestrato
Accogliente portico
Accesso diretto a giardino privato di circa 250 mq, perfetto per momenti di relax, pranzi all’aperto o per chi ha animali
Due balconi
Piano superiore:
Una camera matrimoniale e una cameretta
Bagno
Terrazzo vivibile
Balcone
Costruzione recente, Ottimo stato manutentivo, Ambienti luminosi e ben distribuiti, Spazi esterni ampi e sfruttabili, Contesto silenzioso e riservato
Prezzo di vendita: €290.000
Una soluzione ideale per chi cerca indipendenza, comfort e qualità della vita a pochi minuti dalla città.
Contattaci per maggiori informazioni o per prenotare una visita!
Ufficio 0661905631 Whatsapp 3914692584

LEGGI TUTTO

CONDIVIDI SUI SOCIAL

DATI PRINCIPALI

Riferimento
641633
Contratto
Vendita
Tipologia
Villetta a schiera
Superficie
90 mq
Locali
3
Camere da letto
2
Cucina
Angolo cottura
Bagni
2
Piano
Piano terra
Totale piani
2
Box/Posto auto
Singolo

CARATTERISTICHE

Ascensore

COSTI

Prezzo
€ 290.000,00

EFFICIENZA ENERGETICA

Stato
Ristrutturato
Riscaldamento
Autonomo
Climatizzazione
Si
Classe energetica
D
IPE
175,00 kWh/m²a

A+

A

B

C

175,00 kWh/m²a | Classe energetica D

D

E

F

G

MAPPA

ANNUNCI SIMILI

VENDITA 20
€ 239.000
Villetta a schiera in Vendita a Roma, Zona Valle Santa
  • Più di 5 locali
  • 115 mq
  • 3 bagni
VENDITA 20
€ 139.000
Villetta a schiera in Vendita a Roma, Zona Casalotti
  • Più di 5 locali
  • 150 mq
  • 2 bagni
VENDITA 20
€ 395.000
Villetta a schiera in Vendita a Roma, Zona Casalotti
  • Quadrilocale
  • 160 mq
  • 2 bagni
VENDITA 20
€ 550.000
Villetta a schiera in Vendita a Roma (Roma)
  • Più di 5 locali
  • 210 mq
  • 3 bagni
VENDITA 20
€ 249.000
Villetta a schiera in Vendita a Roma (Roma)
  • Più di 5 locali
  • 120 mq
  • 3 bagni
VENDITA 20
€ 519.000
Villetta a schiera in Vendita a Roma, Zona Casalotti
  • Più di 5 locali
  • 300 mq
  • 2 bagni
VENDITA 20
€ 379.000
Villetta a schiera in Vendita a Roma (Roma)
  • Quadrilocale
  • 200 mq
  • 3 bagni
VENDITA 20
€ 385.000
Villetta a schiera in Vendita a Roma (Roma)
  • Quadrilocale
  • 100 mq
  • 3 bagni