Villino a schiera con doppio giardino privato VENDITA

Via Lazio 11 - Campagnano di Roma (Roma)
€ 185.000
  • Bilocale
  • 125 mq
  • 2 bagni

Villetta a schiera in Vendita a Campagnano di Roma

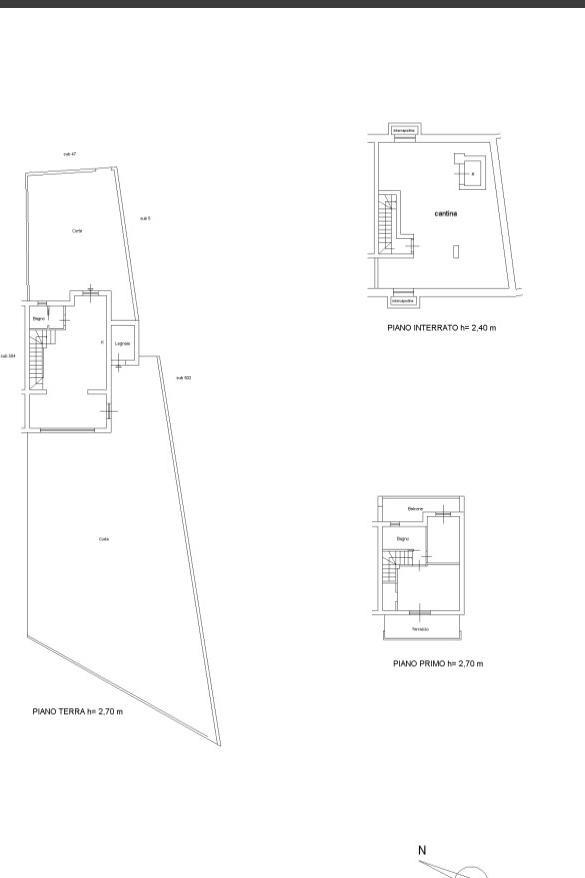
Nel cuore di Campagnano di Roma, in contesto tranquillo e residenziale, proponiamo in vendita un grazioso villino a schiera di circa 125 mq, disposto su tre livelli e dotato di doppio giardino privato, ideale per chi desidera spazi esterni e comfort abitativo.

Composizione dell’immobile:

Piano terra (h 2,70 m)

Ingresso

Luminoso soggiorno

Cucina

Bagno

Accesso diretto al giardino privato, perfetto per pranzi all’aperto, relax o area giochi.

Piano primo (h 2,70 m)

Zona notte con camere da letto

Bagno

Disimpegno

Balcone

Piano interrato (h 2,40 m)

Ampia cantina/taverna, versatile e utilizzabile come sala hobby, studio o spazio deposito

Collegamento interno tramite scala

La proprietà è completata da due aree verdi private, una frontale e una sul retro, che garantiscono privacy e vivibilità degli spazi esterni.

Caratteristiche principali:

Superficie: circa 125 mq

Disposto su 3 livelli

Doppio giardino privato

Ambienti luminosi

Ottima soluzione per famiglie

Contesto residenziale tranquillo

Posizione strategica a pochi minuti dal centro di Campagnano di Roma, vicino a servizi, scuole e collegamenti con Roma.

Soluzione ideale per chi cerca indipendenza, spazio esterno e tranquillità senza rinunciare alla comodità dei servizi.

LEGGI TUTTO

CONDIVIDI SUI SOCIAL

DATI PRINCIPALI

Riferimento
632510
Contratto
Vendita
Tipologia
Villetta a schiera
Superficie
125 mq
Locali
2
Camere da letto
2
Cucina
Abitabile
Bagni
2
Piano
Piano terra
Totale piani
2
Box/Posto auto
Singolo

CARATTERISTICHE

Ascensore

COSTI

Prezzo
€ 185.000,00

EFFICIENZA ENERGETICA

Stato
Da ristrutturare
Anno costruzione
2000
Riscaldamento
Autonomo
Classe energetica
E
IPE
175,00 kWh/m²a

A+

A

B

C

D

175,00 kWh/m²a | Classe energetica E

E

F

G

MAPPA

ANNUNCI SIMILI

VENDITA 20
€ 215.000
Villetta a schiera in Vendita a Campagnano di Roma (Roma)
  • Trilocale
  • 125 mq
  • 2 bagni
VENDITA 20
€ 299.000
Villetta a schiera in Vendita a Formello (Roma)
  • Quadrilocale
  • 150 mq
  • 3 bagni
VENDITA 20
€ 179.000
Villetta a schiera in Vendita a Roma, Frazione Cesano
  • Trilocale
  • 75 mq
  • 3 bagni
VENDITA 18
€ 560.000
Villetta a schiera in Vendita a Formello (Roma)
  • Più di 5 locali
  • 234 mq
  • 4 bagni
VENDITA 18
€ 290.000
Villetta a schiera in Vendita a Sacrofano (Roma)
  • Più di 5 locali
  • 200 mq
  • 3 bagni
VENDITA 20
€ 335.000
Villetta a schiera in Vendita a Trevignano Romano (Roma)
  • Più di 5 locali
  • 248 mq
  • 2 bagni
VENDITA 20
€ 250.000
Villetta a schiera in Vendita a Roma, Frazione Cesano
  • Più di 5 locali
  • 155 mq
VENDITA 11
€ 120.000
Villetta a schiera in Vendita a Roma, Frazione Cesano
  • Più di 5 locali
  • 153 mq
  • 3 bagni