VILLINI BIFAMILIARE - PROSSIMA COSTRUZIONE VENDITA

Via Federico Marinetti - Grottaferrata (Roma)
€ 450.000
  • Quadrilocale
  • 150 mq
  • 3 bagni

Villa in Vendita a Grottaferrata

Iniziamo la prenotazione di porzioni di villini in bifamiliare, che saranno realizzate in un contesto residenziale non lontano dai principali servizi della cittadina.
In posizione panoramica e dominante, godranno di un'ottima esposizione solare e di un ampio giardino.

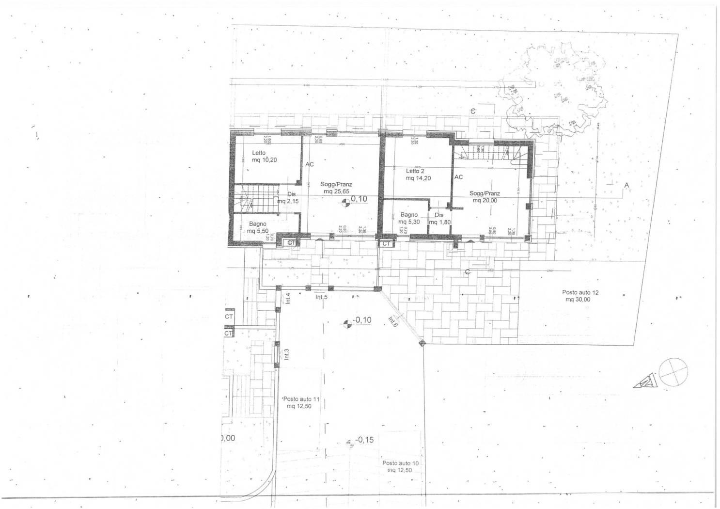
DISPOSTE SU DUE LIVELLI RESIDENZIALI - NO MANSARDA NO SEMINTERRATO
Internamente, ogni porzione sarà così distribuita:
piano terra: ampio soggiorno con angolo cottura, disimpegno, camera da letto, servizio finestrato
piano primo: due camere da letto, disimpegno, doppi servizi

CLASSE A
I villini saranno realizzati rispettando i più alti standard in materia di risparmio energetico

A PARTIRE DA € 450.000,00

Per una visione più chiara degli immobili, invitiamo a consultare le planimetrie e ed i render allegati al presente annuncio, precisando che hanno scopo puramente illustrativo e non costituiscono elemento contrattuale.

PER INFORMAZIONI PIU' DETTAGLIATE ORAZIO SCUDERI 3281410080

LEGGI TUTTO

CONDIVIDI SUI SOCIAL

DATI PRINCIPALI

Riferimento
642979
Contratto
Vendita
Tipologia
Villa
Superficie
150 mq
Locali
4
Camere da letto
3
Cucina
Angolo cottura
Bagni
3
Piano
Piano terra
Totale piani
2
Box/Posto auto
Singolo

CARATTERISTICHE

Ascensore

COSTI

Prezzo
€ 450.000,00

EFFICIENZA ENERGETICA

Stato
Nuovo/In costruzione
Anno costruzione
2026
Riscaldamento
Autonomo
Climatizzazione
Predisposizione
Classe energetica
A1
IPE
351,00 kWh/m²a

A4

A3

A2

351,00 kWh/m²a | Classe energetica A1

A1

B

C

D

E

F

G

MAPPA

ANNUNCI SIMILI

VENDITA 20
€ 499.000
Villa in Vendita a Grottaferrata (Roma)
  • Quadrilocale
  • 115 mq
  • 2 bagni
VENDITA 20
€ 609.000
Villa in Vendita a Grottaferrata (Roma)
  • Più di 5 locali
  • 200 mq
  • 3 bagni
VENDITA 20
€ 459.000
Villa in Vendita a Grottaferrata (Roma)
  • Più di 5 locali
  • 225 mq
  • 4 bagni
VENDITA 20
€ 420.000
Villa in Vendita a Grottaferrata (Roma)
  • Più di 5 locali
  • 130 mq
  • 3 bagni