Villette Bifamiliari di Prestigio – Zona Casal Lumbroso VENDITA

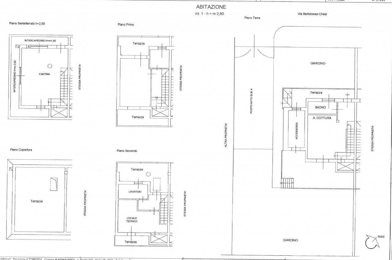
Via Bartolomeo Chesi - Roma, Zona Casal Lumbroso
€ 300.000
  • Più di 5 locali
  • 120 mq
  • 3 bagni

Villa in Vendita a Roma

La Domus Group Immobiliare, affiliata Frimm, in collaborazione con Remax Abacus, presenta in esclusiva due eleganti villette bifamiliari di nuova costruzione situate nel cuore del Consorzio Villa Paradiso, in zona Casal Lumbroso.
Un contesto residenziale immerso nel verde e nella tranquillità, ideale per chi desidera vivere in un ambiente moderno, riservato e di qualità.

Caratteristiche principali

Superficie totale:120 mq
Distribuzione su quattro livelli studiata per garantire comfort e funzionalità
Ampio giardino privato di 300 mq
Predisposizione per ascensore interno
Posto auto esterno
Struttura antisismica di ultima generazione

Piano Terra – La zona giorno

Un ingresso accogliente introduce alla luminosa zona living open space, con cucina a vista e soggiorno armoniosamente integrati.
Il piano è completato da un bagno finestrato con doccia, rifinito con materiali di qualità.

Gli infissi in PVC a risparmio energetico, le tapparelle elettriche e le serrande antiscasso garantiscono comfort, sicurezza e isolamento acustico.
Dal soggiorno si accede al terrazzo abitabile, con locale tecnico, e all’ampio giardino privato, perfetto per godersi il relax e momenti di convivialità all’aria aperta.

Primo Piano – La zona notte

Un elegante disimpegno conduce alla camera matrimoniale, impreziosita da una doppia uscita su due balconi privati.
Completa il livello un bagno finestrato con doccia, progettato per unire stile e praticità.

Secondo Piano – Spazi versatili e moderni

Il piano superiore include un locale tecnico articolato in due ambienti, oltre a un vano con predisposizione per bagno e lavanderia.
Da qui si accede a un ampio terrazzo panoramico, collegato al lastrico solare.

Seminterrato – Lo spazio che valorizza l’intera casa

Una sala hobby con camino crea un ambiente perfetto come sala relax, area ricreativa, studio o spazio multifunzionale, aggiungendo comfort e potenzialità all’immobile.

Una posizione privilegiata

Le villette si trovano in un’area residenziale tranquilla e verdeggiante, a breve distanza da scuole, servizi, supermercati e trasporti pubblici.
Gli ottimi collegamenti stradali consentono di raggiungere facilmente il centro città, mantenendo però la serenità e la privacy di un contesto esclusivo.

✨ Eleganza, comfort e modernità

Queste abitazioni rappresentano la soluzione ideale per chi cerca una casa nuova, funzionale e immersa nel verde, senza rinunciare a stile, qualità costruttiva e tecnologie moderne.

Informazioni e appuntamenti

Domus Group Immobiliare
06 61561238
327 0840957 (anche WhatsApp)

Scopri altre proposte su:
[www.domusgrouproma.com](http://www.domusgrouproma.com)
[www.frimm.com/sito/44146/](http://www.frimm.com/sito/44146/)

LEGGI TUTTO

CONDIVIDI SUI SOCIAL

DATI PRINCIPALI

Riferimento
643840
Contratto
Vendita
Tipologia
Villa
Superficie
120 mq
Locali
5
Camere da letto
3
Cucina
Angolo cottura
Bagni
3
Piano
1 °
Totale piani
4
Box/Posto auto
Singolo

CARATTERISTICHE

Ascensore

COSTI

Prezzo
€ 300.000,00

EFFICIENZA ENERGETICA

Stato
Nuovo/In costruzione
Anno costruzione
2025
Riscaldamento
Autonomo
Climatizzazione
Si
Classe energetica
A+
IPE
175,00 kWh/m²a
175,00 kWh/m²a | Classe energetica A+

A+

A

B

C

D

E

F

G

MAPPA

ANNUNCI SIMILI

VENDITA 20
€ 750.000
Villa in Vendita a Roma, Zona Casal Lumbroso
  • Più di 5 locali
  • 310 mq
  • 3 bagni
VENDITA 20
€ 725.000
Villa in Vendita a Roma, Zona Casal Lumbroso
  • Più di 5 locali
  • 310 mq
  • 3 bagni
VENDITA 20
€ 750.000
Villa in Vendita a Roma, Zona Casal Lumbroso
  • Più di 5 locali
  • 310 mq
  • 3 bagni
VENDITA 20
€ 775.000
Villa in Vendita a Roma, Zona Massimina
  • Più di 5 locali
  • 300 mq
  • 4 bagni
VENDITA 20
€ 745.000
Villa in Vendita a Roma, Zona Casal Lumbroso
  • Più di 5 locali
  • 300 mq
  • 4 bagni