VILLE UNIFAMILIARI VENDITA

Via Livio Gratton - Frascati (Roma)
€ 580.000
  • Quadrilocale
  • 180 mq
  • 2 bagni

Villa in Vendita a Frascati

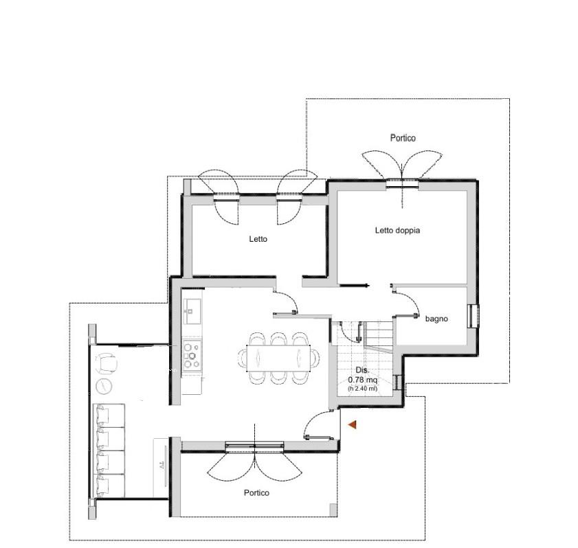
Adiacente Via Livio Gratton Proponiamo in vendita VILLE UNIFAMILIARI in classe energetica A superiore, in complesso residenziale esclusivo e riservato, completamente privato, pensato per garantire tranquillità, sicurezza e privacy e comunque nelle vicinanze dalla stazione del treno (Tor Vergata) e dalle arterie stradali più importanti, a soli 5 minuti dal centro di Frascati. Il residence progettato con uno stile architettonico moderno e sostenibile. Il tutto per avere il massimo comfort. Le abitazioni sono infatti completamente gas free e alimentate da tecnologie d’avanguardia per il risparmio energetico: tetto ventilato in legno con travi a vista, impianto fotovoltaico di circa 6 Kw predisposto per l'accumulo, impianto in pompa di calore "Daikin", pannello solare termico, riscaldamento a pavimento e sistema di raffrescamento ventilato, impianto in domotica marcata "Bticino". Le ville, realizzate si sviluppano su due livelli fuori terra. Le soluzioni sono molto simili tra loro, seppur con alcune differenze che potrai scoprire direttamente sul posto. La suddivisone delle ville è cosi composta: Al piano terra troviamo, un ampio salone con cucina a vista una suggestiva serra solare a completamento della zona living, due comode camere da letto, un bagno un ripostiglio/lavanderia e due ampi portici. Il piano superiore accessibile con una comoda scala interna ospita due camere da letto, oltre a un secondo bagno. Esternamente, ogni villa è circondata da un ampio giardino privato da 400 a 900 mq, offrendo uno spazio riservato e ideale per vivere momenti all’aria aperta in totale privacy. Una proposta perfetta per chi desidera abitare in un contesto nuovo, elegante e tecnologicamente avanzato, ideale per famiglie, giovani coppie o per chi sogna una casa pronta per il futuro, in una zona residenziale tranquilla e ben servita. Ogni villa ha un doppio posto auto all'interno della propria corte. CONSEGNA PREVISTA DICEMBRE 2026. L'Immobilservice ha come missione l'intento di seguire ed accompagnare il cliente fino alla conclusione della trattativa in una delle scelte più importanti della vita in modo completo e professionale. Per curare al meglio tutti i dettagli si avvale di professionisti del settore con l'expertise necessario per arrivare con successo all'obiettivo. Sarete accompagnati nel percorso della vendita o dell'acquisto di un immobile sintonizzandoci sulle esigenze del cliente. Classificazione e certificazione della classe energetica (audit energetico), opportunità di valutazione ed erogazione mutui con istituti bancari convenzionati con le nostre strutture. Particolarmente specializzati nella vendita di immobili zona Castelli Romani.

LEGGI TUTTO

CONDIVIDI SUI SOCIAL

DATI PRINCIPALI

Riferimento
631928
Contratto
Vendita
Tipologia
Villa
Superficie
180 mq
Locali
4
Camere da letto
3
Cucina
Angolo cottura
Bagni
2
Piano
1 °
Totale piani
2
Box/Posto auto
Doppio

CARATTERISTICHE

Ascensore

COSTI

Prezzo
€ 580.000,00
Spese condominiali
€ 40,00 / mese

EFFICIENZA ENERGETICA

Stato
Nuovo/In costruzione
Anno costruzione
2026
Riscaldamento
Autonomo
Climatizzazione
Si
Classe energetica
A
IPE
175,00 kWh/m²a

A+

175,00 kWh/m²a | Classe energetica A

A

B

C

D

E

F

G

MAPPA

ANNUNCI SIMILI

VENDITA 20
€ 549.000
Villa in Vendita a Frascati (Roma)
  • Quadrilocale
  • 163 mq
  • 2 bagni
VENDITA 20
€ 1.049.000
Villa in Vendita a Frascati (Roma)
  • Più di 5 locali
  • 250 mq
  • 3 bagni
VENDITA 20
Trattativa Riservata
Villa in Vendita a Frascati (Roma)
  • Più di 5 locali
  • 500 mq
  • 4 bagni
VENDITA 20
€ 430.000
Villa in Vendita a Frascati (Roma)
  • Più di 5 locali
  • 287 mq
  • 3 bagni
VENDITA 20
€ 430.000
Villa in Vendita a Frascati (Roma)
  • Più di 5 locali
  • 287 mq
  • 3 bagni
VENDITA 10
€ 395.000
Villa in Vendita a Frascati (Roma)
  • Quadrilocale
  • 125 mq
  • 2 bagni
VENDITA 10
€ 395.000
Villa in Vendita a Frascati (Roma)
  • Quadrilocale
  • 125 mq
  • 2 bagni
VENDITA 20
€ 379.000
Villa in Vendita a Frascati (Roma)
  • Più di 5 locali
  • 183 mq
  • 2 bagni