€ 595.000
  • Più di 5 locali
  • 130 mq
  • 2 bagni

Villa in Vendita a Rocca di Papa

A partire da € 575.000 - disponibili 8 ville

Nel Residence Baglioni, elegante e riservato, situato in una posizione esclusiva, nasce questa villa unifamiliare di nuova costruzione, pensata per chi desidera vivere in un ambiente moderno, confortevole e attento alla sostenibilità.

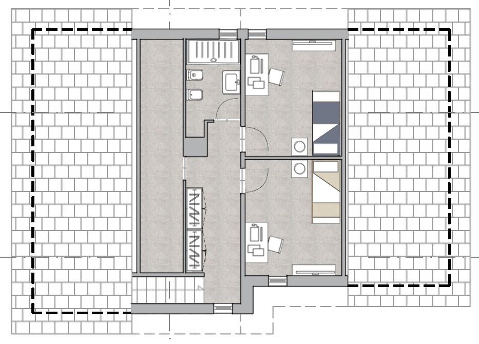
La villa si sviluppa interamente fuori terra per un totale di 130 mq, senza piano seminterrato, con spazi ben distribuiti e progettati per garantire funzionalità e luminosità in ogni ambiente.
Al piano terra, di circa 90 mq, troviamo un ampio salone ideale per la vita quotidiana e per accogliere ospiti, una cucina spaziosa, due camere da letto, un bagno e una comoda lavanderia. Completa il piano un portico di 19 mq, perfetto per momenti di relax all’aperto o per pranzi e cene in compagnia.
Il piano superiore, di 40 mq, ospita due ulteriori camere e un lavatoio, con un’altezza al colmo di 2,40 m che assicura un’ottima vivibilità degli spazi.

La villa sarà realizzata con tecnologie costruttive di ultima generazione e soluzioni green ad alta efficienza energetica, studiate per ridurre al minimo i consumi e sfruttare fonti rinnovabili, nel pieno rispetto delle normative ambientali vigenti. Ogni dettaglio è pensato per garantire benessere abitativo, risparmio energetico e sostenibilità nel tempo.

Design e comfort sono i veri protagonisti di questa costruzione, ideale per chi cerca una casa moderna, elegante e inserita in un contesto residenziale esclusivo, dove qualità della vita e attenzione all’ambiente si incontrano.

LEGGI TUTTO

CONDIVIDI SUI SOCIAL

DATI PRINCIPALI

Riferimento
632482
Contratto
Vendita
Tipologia
Villa
Superficie
130 mq
Locali
5
Camere da letto
4
Cucina
Abitabile
Bagni
2
Piano
1 °
Totale piani
2
Box/Posto auto
Doppio

CARATTERISTICHE

Ascensore

COSTI

Prezzo
€ 595.000,00

EFFICIENZA ENERGETICA

Stato
Nuovo/In costruzione
Anno costruzione
2025
Riscaldamento
Autonomo
Climatizzazione
Predisposizione
Classe energetica
A4
IPE
351,00 kWh/m²a
351,00 kWh/m²a | Classe energetica A4

A4

A3

A2

A1

B

C

D

E

F

G

MAPPA

ANNUNCI SIMILI

VENDITA 15
€ 580.000
Villa in Vendita a Rocca di Papa (Roma)
  • Più di 5 locali
  • 130 mq
  • 2 bagni
VENDITA 15
€ 598.000
Villa in Vendita a Rocca di Papa (Roma)
  • Più di 5 locali
  • 130 mq
  • 2 bagni
VENDITA 15
€ 585.000
Villa in Vendita a Rocca di Papa (Roma)
  • Più di 5 locali
  • 130 mq
  • 2 bagni
VENDITA 15
€ 575.000
Villa in Vendita a Rocca di Papa (Roma)
  • Più di 5 locali
  • 130 mq
  • 2 bagni