VILLA UNIFAMILIARE, LOCALITA' MONTE PORZIO CATONE, FRASCATI VENDITA

Via dell'Osservatorio 11 - Monte Porzio Catone (Roma)
€ 800.000
  • Più di 5 locali
  • 440 mq
  • 4 bagni

Villa in Vendita a Monte Porzio Catone

Abitat Group è lieta di presentare una prestigiosa villa di 440 metri quadri e attualmente situata all'interno di un complesso immerso nel verde, con giardino privato molto piacevole.

La villa molto ben arredata si presenta in un contesto riservato ed esclusivo.

Un piacevole viale costeggiato da due siepi conduce all'interno della proprietà, dove è possibile accedere ad una zona parcheggio.

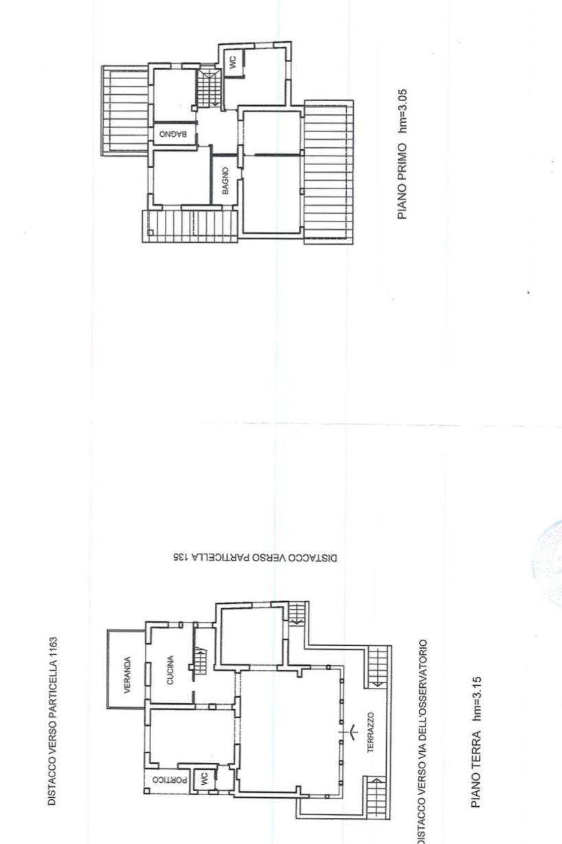
La villa è così composta: ingresso di rappresentanza, salone triplo con camino e ampie finestre che garantiscano luminosità, accesso a cantina tramite botola in stile pagliolato nautico, sala tv, sala da pranzo, cucina abitabile con office, veranda e bagno ospiti il tutto circondato da un piacevolissimo terrazzo con vista e doppio accesso tramite scale.

Nella zona notte troviamo un ulteriore salottino privato o studio, quattro camere da letto matrimoniali e tre bagni.

Un’agevole scala dalla suite matrimoniale conduce ad un soppalco arredato da armadiatura a muro molto ampia, grande bagno e piacevole vetrata con vista su tutta la proprietà con Roma come sfondo.

Rifiniture di gran pregio, pavimenti in cotto e falegnameria di prestigio.

L'intera proprietà è circondata da un giardino di circa 4000 mq molto ben tenuto che gode di una privacy eccezionale con piante da frutto ulivi/cachi/castagni e alberi ad alto fusto.

L'esclusività della villa non la preclude la vicinanza a tutti i servizi, infatti solo 1 km la separa da Monte Porzio Catone 1 km e 3 km da Frascati.

La proposta immobiliare risulta particolarmente interessante per una clientela alla ricerca di un'abitazione elegante, molto ben tenuta, in un contesto riservato e molto piacevole da vivere.

Per informazioni contattare il numero 06 808133

Le presenti informazioni sono indicative e non costituiscono elementi contrattuali.

LEGGI TUTTO

CONDIVIDI SUI SOCIAL

DATI PRINCIPALI

Riferimento
634561
Contratto
Vendita
Tipologia
Villa
Superficie
440 mq
Locali
Più di 5
Camere da letto
4
Cucina
Abitabile
Bagni
4
Piano
1 °
Totale piani
2
Box/Posto auto
Doppio

CARATTERISTICHE

Ascensore

COSTI

Prezzo
€ 800.000,00

EFFICIENZA ENERGETICA

Stato
Abitabile
Anno costruzione
1980
Riscaldamento
Autonomo
Climatizzazione
Si
Classe energetica
G
IPE
175,00 kWh/m²a

A+

A

B

C

D

E

F

175,00 kWh/m²a | Classe energetica G

G

MAPPA

ANNUNCI SIMILI

VENDITA 20
€ 790.000
Villa in Vendita a Monte Porzio Catone (Roma)
  • Più di 5 locali
  • 980 mq
  • 4 bagni
VENDITA 20
€ 750.000
Villa in Vendita a Monte Porzio Catone (Roma)
  • Più di 5 locali
  • 400 mq
  • 4 bagni
VENDITA 20
€ 650.000
Villa in Vendita a Monte Porzio Catone (Roma)
  • Più di 5 locali
  • 565 mq
  • 4 bagni