VILLA UNIFAMILIARE DIVISA IN DUE UNITA' ABITATIVE VENDITA

Via Colle delle Ginestre - Grottaferrata (Roma)
€ 595.000
  • Più di 5 locali
  • 351 mq
  • 4 bagni

Villa in Vendita a Grottaferrata

GROTTAFERRATA. VIA COLLE DELLE GINESTRE. In uno dei luoghi più esclusivi e prestigiosi della cittadina, proponiamo in vendita una villa unifamiliare divisa, anche a livello urbanistico, in due unità abitative, distribuite su altrettanti piani. Entrambe le porzioni hanno ingresso indipendente, il giardino e l'entrata principale sono invece comuni.

PANORAMICA
Posizionata in uno dei punti più alti del colle, ha una veduta davvero suggestiva!
Il giardino rappresenta un vero e proprio belvedere, da cui godere di uno dei panorami più belli: si potranno ammirare la città di Roma ed in lontananza, il mare!

AMPIA METRATURA SU UN UNICO LIVELLO
Le porzioni che compongono la villa, sono perfettamente divise tra loro; una delle due ha ingresso al piano terra, lungo il quale si sviluppa interamente. L'altra, si raggiunge per mezzo di una scala esterna ed è totalmente distribuita al piano primo.
Ogni abitazione ha impianti autonomi.

PORZIONE PIANO TERRA, 144 m² circa: veranda chiusa con vetrate, corridoio, ampio salone con camino, cucina abitabile, tre camere da letto, doppi servizi entrambi finestrati; giardino accessibile da ogni ambiente, servizi esclusi.

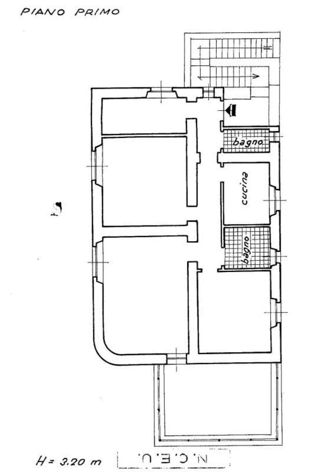
PORZIONE PIANO PRIMO, 130 m² circa: corridoio, salone con camino ed ampio terrazzo, cucina abitabile, tre camere da letto, doppi servizi finestrati.

Il giardino, di circa 700 m², circonda i quattro lati liberi della casa; è arricchito da un bellissimo forno a legna in muratura a forma di casetta posizionato in prossimità della parte terrazzata, predisposta per gazebo ed arredi da giardino.
Si potrà mangiare nel verde di Grottaferrata...ma con vista mare!

In giardino è presente anche un garage di circa 14 m².

VERSATILITA'
L'immobile rappresenta la perfetta soluzione per due famiglie che desiderano vicinanza, pur mantenendo ciascuna i propri spazi e la propria indipendenza.
Tuttavia, è salva la possibilità di unire le due unità e realizzare un unico ambiente disposto su due livelli.

L'immobile, che necessita di rinnovamento, ha un potenziale altissimo e ne consigliamo una visita al cliente alla ricerca di una casa in luogo suggestivo e ricercato, dove poter realizzare un ambiente perfettamente su misura.

Per una chiara visione della sua suddivisione si invita a consultare le planimetrie allegate al presente annuncio, precisando che, tutto il materiale allegato ha scopo puramente illustrativo e non costituisce elemento contrattuale.
Per informazioni 3281410080 Orazio Scuderi

LEGGI TUTTO

CONDIVIDI SUI SOCIAL

DATI PRINCIPALI

Riferimento
642983
Contratto
Vendita
Tipologia
Villa
Superficie
351 mq
Locali
Più di 5
Camere da letto
Più di 5
Cucina
Abitabile
Bagni
4
Piano
1 °
Totale piani
2
Box/Posto auto
Singolo

CARATTERISTICHE

Ascensore

COSTI

Prezzo
€ 595.000,00

EFFICIENZA ENERGETICA

Stato
Abitabile
Anno costruzione
1950
Riscaldamento
Autonomo
Classe energetica
G
IPE
175,00 kWh/m²a

A+

A

B

C

D

E

F

175,00 kWh/m²a | Classe energetica G

G

MAPPA

ANNUNCI SIMILI