Villa trifamiliare Fregene Via Portovenere VENDITA

Via Portovenere - Fiumicino, Frazione Fregene
€ 595.000
  • Quadrilocale
  • 137 mq
  • 2 bagni

Villa in Vendita a Fiumicino

Villa trifamiliare Fregene Via Portovenere

Immersa nella splendida e rinomata pineta di Fregene, proponiamo la vendita di una porzione di villa trifamiliare con ampi spazi esterni e finiture di pregio.
La proprietà si distingue per la sua posizione privilegiata, la cura dei dettagli e la possibilità di essere abitata tutto l'anno.

La villa viene venduta completamente arredata con mobili realizzati su misura, perfettamente integrati negli ambienti e pensati per valorizzare al massimo gli spazi.

Esterni e spazi vivibili:
Un curato giardino privato accoglie la proprietà, dotato di irrigazione automatica con pozzo, posto auto coperto da tettoia e un'ampia veranda di circa 80 mq con vetri impilabili, perfetta come salone anche d'inverno. Completano la parte esterna un ripostiglio, una zona lavanderia e tutti i comfort per vivere appieno gli spazi verdi.

Interni:
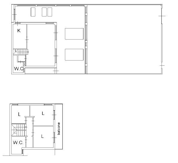
Al piano terra troviamo un ampio salone, un antibagno con bagno completo di doccia, e una cucina abitabile con dispensa.
Al primo piano si sviluppa la zona notte con due camere matrimoniali, una cameretta e un bagno completo. Le camere principali si affacciano su un balcone comune, regalando luminosità e affaccio sul verde.

Finiture e dotazioni:

Pavimenti in cotto e pareti in carta da parati
Infissi in PVC doppio vetro con imbotti in peperino
Persiane di sicurezza, zanzariere e davanzali in travertino
Porte in legno massello e mobili fissi laccati bianchi
Riscaldamento autonomo
Climatizzatori e pale in ogni ambiente
Impianto d'allarme volumetrico con predisposizione perimetrale
Illuminazione a LED
Scala per disabili già predisposta

Un'abitazione ideale per chi desidera vivere il mare senza rinunciare al comfort di una casa di città, perfetta sia come residenza principale sia come abitazione estiva di rappresentanza.

LEGGI TUTTO

CONDIVIDI SUI SOCIAL

DATI PRINCIPALI

Riferimento
638988
Contratto
Vendita
Tipologia
Villa
Superficie
137 mq
Locali
4
Camere da letto
3
Cucina
Abitabile
Bagni
2
Piano
1 °
Totale piani
1
Box/Posto auto
Singolo

CARATTERISTICHE

Ascensore

COSTI

Prezzo
€ 595.000,00

EFFICIENZA ENERGETICA

Stato
Abitabile
Anno costruzione
1990
Riscaldamento
Autonomo
Climatizzazione
Si
Classe energetica
G
IPE
180,00 kWh/m²a

A+

A

B

C

D

E

F

180,00 kWh/m²a | Classe energetica G

G

MAPPA

ANNUNCI SIMILI

VENDITA 20
€ 720.000
  • Più di 5 locali
  • 180 mq
  • 3 bagni