VILLA PLURIFAMILIARE MQ 200 VIA DELLE BAROZZE VENDITA

Strada Provinciale Barozze delle - Rocca di Papa (Roma)
€ 340.000
  • Più di 5 locali
  • 225 mq
  • 3 bagni

Villa in Vendita a Rocca di Papa

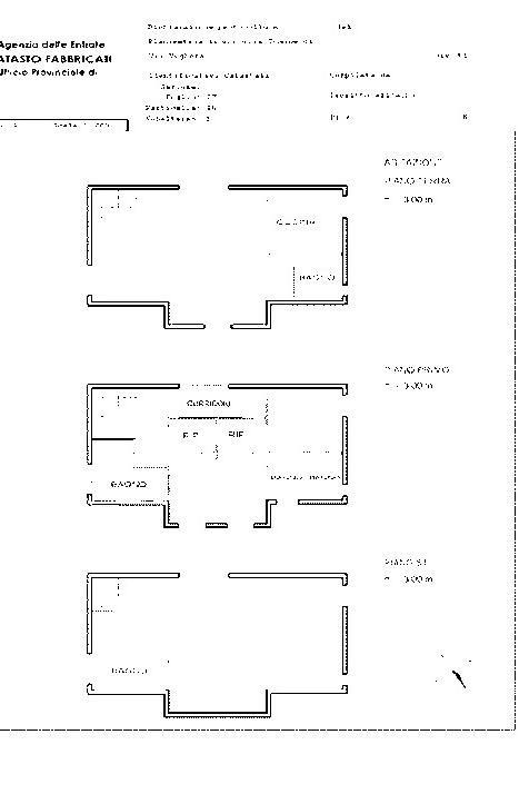
Rif:0178 - A due passi da Grottaferrata, in un contesto residenziale e comunque nelle vicinanze dei principali servizi, la Immobiliare Simonetti propone in vendita una splendida villa plurifamiliare di nuova costruzione. La soluzione molto luminosa è disposta su tre livelli per un totale di mq 200 piu' portico e giardino di mq 250 e gode di uno splendido affaccio su Roma. La suddivisione interna è stata effettuata ottimizzando al massimo gli spazi. Al piano terra troviamo un ampio salone con duplice finestra una delle quali consente l'uscita nel giardino, una cucina abitabile anch'essa con uscita all'esterno sul patio, una camera con ulteriore portafinestra ed un bagno finestrato con vasca. Al piano primo mansardato troviamo una luminosa camera da letto con velux ed un secondo bagno. Al piano semi interrato reso luminoso grazie ad uno sbancamento al momento troviamo una grande sala hobby, una cucina, una camera da letto ed un bagno. Onde ottenere una quarta camera, la sala hobby ha una parete predisposta per gli impianti al fine di ricavarne un angolo cottura a vista, in tal modo dalla cucina si potrebbe ricavare un ulteriore camera. La struttura presenta infissi in legno doppio vetro ed inferriate in tutte le finestre e portafinestre, portoncino blindato, videocitofono, predisposizione impianto di raffreddamento e di allarme e per finire riscaldamento autonomo suddiviso per piano. Malgrado la possibilità di parcheggiare nella zona antistante la villa, all'interno del giardino vi è la possibilità di alloggiare piu' automobili. La villa costruita nel 2012 permette di essere acquistata senza l'aggravio IVA solitamente applicato alle abitazioni di nuova costruzione. Possibilità subentro mutuo del costruttore -
Rif:0178 - Immobiliare Simonetti

LEGGI TUTTO

CONDIVIDI SUI SOCIAL

DATI PRINCIPALI

Riferimento
642150
Contratto
Vendita
Tipologia
Villa
Superficie
225 mq
Locali
5
Camere da letto
3
Cucina
Abitabile
Bagni
3
Piano
1 °
Totale piani
3
Box/Posto auto
Doppio

CARATTERISTICHE

Ascensore

COSTI

Prezzo
€ 340.000,00

EFFICIENZA ENERGETICA

Stato
Nuovo/In costruzione
Anno costruzione
2012
Riscaldamento
Autonomo
Climatizzazione
Predisposizione
Classe energetica
C
IPE
175,00 kWh/m²a

A+

A

B

175,00 kWh/m²a | Classe energetica C

C

D

E

F

G

MAPPA

ANNUNCI SIMILI

VENDITA 18
€ 339.000
Villa in Vendita a Rocca di Papa (Roma)
  • Più di 5 locali
  • 130 mq
  • 2 bagni
VENDITA 17
€ 795.000
Villa in Vendita a Rocca di Papa (Roma)
  • Più di 5 locali
  • 720 mq
  • 4 bagni