Villa con giardino box e posto auto VENDITA

Via Icaro 32 - Ciampino (Roma)
€ 430.000
  • Quadrilocale
  • 146 mq
  • 3 bagni

Villetta a schiera in Vendita a Ciampino

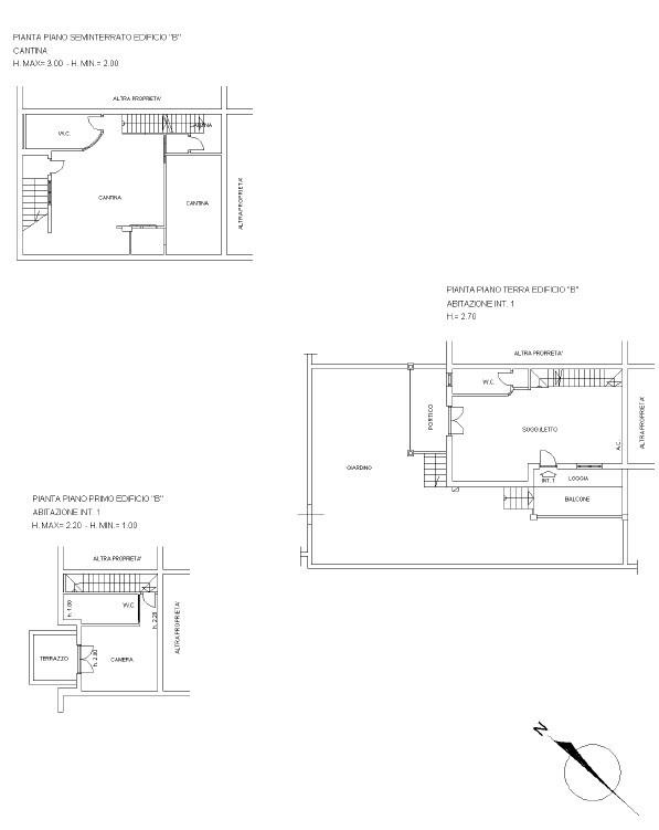
La De Pietro Immobiliare è lieta di proporvi, in contesto privato e tranquillo ma vicino a tutti i punti di interesse, un villino posto su tre piani con giardino.
L'immobile è cosi composto:
al piano terra troviamo un luminosissimo salone con cucina e bagno, al primo piano troviamo una comoda camera con bagno finestrato, invece al piano seminterrato, troviamo uno spazio polifunzionale con camino, camera e bagno con vasca idromassaggio.
Piano primo camera con bagno in camera con doccia idromassaggio e terrazzo.
L'immobile si vende completamente arredato con mobili di pregio e due cucine full optional e due letti matrimoniali a scomparsa.
La villa è fornita di pannelli fotovoltaici, solari termici, addolcitore di acqua.
Ha inferriate e grate a ogni infisso e porte blindate.
L'immobile è completamente ristrutturato con Materiali di Pregio. Gli infissi sono in doppi vetro con grate in ferro. Il riscaldamento è autonomo e l'immobile è dotato di split caldo freddo. Le informazioni contenute nel presente annuncio, le planimetrie e le foto pubblicate sono inserite a scopo illustrativo non costituiscono elemento contrattuale

De Pietro Immobiliare is pleased to offer you a three-story villa with a garden, located in a private and quiet setting yet close to all attractions.
The property comprises:
On the ground floor is a bright living room with kitchen and bathroom; on the first floor is a comfortable bedroom with a bathroom with window; and in the basement is a multipurpose space with a fireplace, bedroom, and bathroom.
The property has been completely renovated with high-quality materials. The windows are double-glazed with iron grates. The heating is independent and the property is equipped with a split system for heating and cooling. The information contained in this listing, the floor plans, and the photos published are for illustrative purposes only and do not constitute a contractual element.

LEGGI TUTTO

CONDIVIDI SUI SOCIAL

DATI PRINCIPALI

Riferimento
626818
Contratto
Vendita
Tipologia
Villetta a schiera
Superficie
146 mq
Locali
4
Camere da letto
2
Cucina
Angolo cottura
Bagni
3
Piano
Piano rialzato
Totale piani
3
Box/Posto auto
Singolo

CARATTERISTICHE

Ascensore

COSTI

Prezzo
€ 430.000,00

EFFICIENZA ENERGETICA

Stato
Ristrutturato
Anno costruzione
2007
Riscaldamento
Autonomo
Climatizzazione
Si
Classe energetica
G
IPE
175,00 kWh/m²a

A+

A

B

C

D

E

F

175,00 kWh/m²a | Classe energetica G

G

MAPPA

ANNUNCI SIMILI

VENDITA 11
€ 489.000
Villetta a schiera in Vendita a Ciampino (Roma)
  • Quadrilocale
  • 120 mq
  • 2 bagni
VENDITA 20
Trattativa Riservata
Villetta a schiera in Vendita a Ciampino (Roma)
  • Più di 5 locali
  • 220 mq
  • 4 bagni
VENDITA 20
€ 389.000
Villetta a schiera in Vendita a Ciampino (Roma)
  • Più di 5 locali
  • 115 mq
  • 3 bagni
VENDITA 20
€ 339.000
Villetta a schiera in Vendita a Ciampino (Roma)
  • Più di 5 locali
  • 150 mq
  • 3 bagni
VENDITA 20
€ 339.000
Villetta a schiera in Vendita a Ciampino (Roma)
  • Più di 5 locali
  • 179 mq
  • 3 bagni
VENDITA 20
€ 349.000
Villetta a schiera in Vendita a Ciampino (Roma)
  • Più di 5 locali
  • 240 mq
  • 2 bagni
VENDITA 20
€ 356.000
Villetta a schiera in Vendita a Ciampino (Roma)
  • Più di 5 locali
  • 132 mq
  • 2 bagni
VENDITA 20
€ 358.000
Villetta a schiera in Vendita a Ciampino (Roma)
  • Quadrilocale
  • 180 mq
  • 3 bagni
VENDITA 20
€ 310.000
Villetta a schiera in Vendita a Ciampino (Roma)
  • Più di 5 locali
  • 180 mq
  • 3 bagni
VENDITA 20
€ 460.000
Villetta a schiera in Vendita a Ciampino (Roma)
  • Più di 5 locali
  • 230 mq
  • 3 bagni
VENDITA 20
€ 389.000
Villetta a schiera in Vendita a Roma, Frazione Morena
  • Più di 5 locali
  • 162 mq
  • 3 bagni