Villa bifamiliare VENDITA

Via Michele Rosi - Fiumicino (Roma)
€ 320.000
  • Quadrilocale
  • 100 mq
  • 2 bagni

Villa in Vendita a Fiumicino

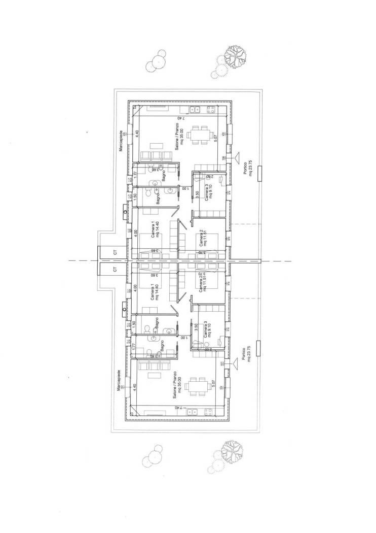
Aranova nelle immediate vicinanze dei principali servizi, a pochi km da Roma e dal mare proponiamo la vendita di ville bifamiliari di nuova costruzione in un complesso residenziale chiamato "I parchi di Aranova". CONTATTACI PER VISITARE L'IMMOBILE. La villa si sviluppa su un unico livello e dispone di ingresso con soggiorno angolo cottura e porta finestra con uscita sul giardino, corridoio che collega due ampie camere da letto, una di essa con porta finestra, una cameretta e due servizi finestrati con doccia. Infine portico di circa 25mq e giardino che può variare da circa 140mq ad un massimo di circa 400mq. Completa la proprietà un posto auto. L'immobile dispone di porta blindata all'ingresso, riscaldamento a pavimento, predisposizione per aria condizionata, tutti gli infissi in pvc doppio vetro, pannello solare termico e pannello solare fotovoltaico installati al piano di copertura 1,5 KW di moduli fotovoltaici. CONTATTACI PER VISITARE L'IMMOBILE.

LEGGI TUTTO

CONDIVIDI SUI SOCIAL

DATI PRINCIPALI

Riferimento
644088
Contratto
Vendita
Tipologia
Villa
Superficie
100 mq
Locali
4
Camere da letto
3
Cucina
Angolo cottura
Bagni
2
Piano
Piano terra
Totale piani
1
Box/Posto auto
Singolo

CARATTERISTICHE

Ascensore

COSTI

Prezzo
€ 320.000,00

EFFICIENZA ENERGETICA

Stato
Nuovo/In costruzione
Anno costruzione
2026
Riscaldamento
Autonomo
Climatizzazione
Predisposizione
Classe energetica
A4
IPE
40,00 kWh/m²a
40,00 kWh/m²a | Classe energetica A4

A4

A3

A2

A1

B

C

D

E

F

G

MAPPA