€ 575.000
  • Più di 5 locali
  • 150 mq
  • 3 bagni

Villa in Vendita a Fiumicino

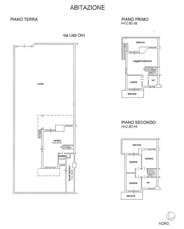
Fregene nelle immediate vicinanze di Fiumicino e Maccarese proponiamo in vendita una villa bifamiliare in buone condizioni che si sviluppa su 3 livelli fuori terra. CONTATTACI PER VISITARE L'IMMOBILE. La villa è composta al piano terra da ampio salone con ampia vetrata che esce sul giardino in prato, cucina a vista, 1 camera e un bagno. Sia da una scala in marmo interna che da una scala esterna si accede al primo piano dove troviamo un soggiorno con camino e uscita su un terrazzo 1 cameretta con balcone e 1 bagno. Salendo al secondo piano troviamo altre 3 camere, 1 bagno, 1 balcone e 1 terrazzino. Completano la proprietà un ampio giardino di circa 400mq con zona lavatoio e cantina. La villa si presenta in buone condizioni ed è facilmente divisibile in due unità abitative avendo già un doppio accesso separato tra piano terra e primo piano e considerando anche il fatto che nella cameretta del primo piano si possa facilmente ricavare una cucina che è già predisposta. CONTATTACI PER VISITARE L'IMMOBILE

LEGGI TUTTO

CONDIVIDI SUI SOCIAL

DATI PRINCIPALI

Riferimento
644076
Contratto
Vendita
Tipologia
Villa
Superficie
150 mq
Locali
Più di 5
Camere da letto
5
Cucina
A vista
Bagni
3
Piano
Piano terra
Totale piani
3
Box/Posto auto
Doppio

CARATTERISTICHE

Ascensore

COSTI

Prezzo
€ 575.000,00

EFFICIENZA ENERGETICA

Stato
Ristrutturato
Anno costruzione
1980
Riscaldamento
Autonomo
Climatizzazione
Si
Classe energetica
G
IPE
96,00 kWh/m²a

A+

A

B

C

D

E

F

96,00 kWh/m²a | Classe energetica G

G

MAPPA

ANNUNCI SIMILI

VENDITA 20
€ 650.000
  • Più di 5 locali
  • 210 mq
  • 3 bagni
VENDITA 20
€ 1.040.000
  • Più di 5 locali
  • 200 mq
  • 3 bagni
VENDITA 20
€ 780.000
  • Più di 5 locali
  • 400 mq
  • 3 bagni