• Più di 5 locali
  • 360 mq
  • 3 bagni

Villa in Vendita a Genzano di Roma

GENZANO DI ROMA:
All’interno dell’esclusivo Consorzio “Le Ville di Nemi”, in posizione centrale e privilegiata che garantisce silenzio, sicurezza e riservatezza, proponiamo la vendita di una prestigiosa Villa con giardino privato e ampio terrazzo panoramico vista mare.

L’immobile, edificato su un lotto di circa 1.000 mq, sviluppa una superficie commerciale di circa 384 mq e si distingue per eleganza, solidità costruttiva e numerose dotazioni di pregio che ne accrescono comfort e qualità abitativa.

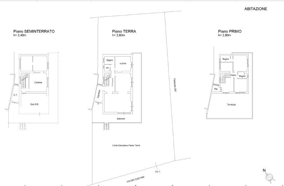
La villa si articola su tre livelli:

• Piano terra/seminterrato: vano tecnico, garage (35m²) e una zona accatastata come cantina (77m²), composta da tre stanze finestrate con affaccio sul giardino, circondate da corridoio perimetrale con funzione di intercapedine. Questo piano è già predisposto per una suddivisione autonoma.
• Piano rialzato (100m²): ampio e luminoso salone con pavimenti in marmo e tre grandi portefinestre che accedono al balcone perimetrale, elegante scala in legno, cucina abitabile con isola e uscita diretta sul balcone, bagno e servizio. Il balcone a forma di “L” si affaccia sul fronte e sul giardino, affiancato da alberi da frutto.
• Primo piano(87m²): zona notte con quattro camere e due bagni, di cui una suite padronale e una camera dotata di sauna finlandese. Completa il piano un ampio terrazzo panoramico di circa 100 mq con vista mare mozzafiato.

Questa proprietà rappresenta un’opportunità unica per molteplici motivi:
• Posizione sopraelevata e privilegiata: al centro geografico del consorzio, lontana dalle vie di circolazione, con massima silenziosità, riservatezza e sicurezza.
• Consorzio dotato di vigilanza privata h24
• Efficienza energetica: possibilità di raggiungere la classe D con la sola sostituzione della caldaia a metano con generatore a biomassa o pompa di calore.
• Muratura doppia con camera d’aria, che consente un agevole ed economico efficientamento tramite insufflaggio per raggiungere le classi energetiche apicali.
• Formalmente bifamiliare, con soli pochi metri di parete condivisa in locali secondari (disimpegno e sauna).
• Ottima esposizione solare che garantisce ambienti luminosi durante tutto il giorno.
• Ampio terrazzo panoramico di 100 mq con vista mare.
• Predisposta ad eventuali suddivisioni con interventi minimi.
• Recenti lavori di ristrutturazione (conclusi nel 2025) tra cui: revisione impianti, sostituzione infissi con moderni serramenti a doppio vetro, sostituzione caldaia, nuova cucina con isola, sauna finlandese.
• Dettagli raffinati: pavimenti in marmo e scale in legno massello.
• Ampio giardino privato con alberi da frutto.
• Fibra ottica FTTH in fase di installazione nel quartiere.
• Regolarità urbanistica, nessuna successione o donazione, possibilità di acquisto anche tramite mutuo.

Un’abitazione ideale per chi cerca silenziosità, sicurezza, eleganza, privacy e un solido investimento immobiliare.
RIF 643V € 450.000,00

CHI SIAMO Immobiliare Savini è un'agenzia immobiliare con sede in Genzano di Roma, che opera nel settore immobiliare da quasi 30 anni.
I NOSTRI SERVIZI: Valutazione gratuita La valutazione di un immobile viene rilasciata in forma scritta e include un preventivo comprensivo delle spese fiscali connesse all'operazione. Servizio finanziario Vantaggi per chi vende: Garanzia che l'importo del mutuo venga messo a disposizione nel più breve tempo possibile. Vantaggi per chi compra: Rapidità nella delibera. Competitività dei prodotti, abbattimento delle spese. Soluzioni personalizzate. Semplificazione della documentazione. Banca dati.
Vantaggi per chi vende: Velocizzazione dei tempi di vendita grazie ad un archivio di potenziali clienti. Indicazioni su quanto gli acquirenti sono disposti a spendere per una certa tipologia d'immobile.
Vantaggi per chi compra: La tranquillità che la propria richiesta venga seguita con attenzione, in modo che si moltiplichino le possibilità di contatti utili e veloci. Giornale per la promozione degli immobili Vantaggi per chi vende: Servizio pubblicitario gratuito su riviste specializzate del settore al livello locale e nazionale. Vantaggi per chi compra: Immobili spesso illustrati da fotografie o planimetrie. Ampia panoramica degli annunci immobiliari. Aggiornamento Periodico sugli sviluppi riguardanti la gestione dell'incarico conferito mediante contatto telefonico e relazioni scritte in cui vengono analizzati i contatti e le eventuali offerte.
* Le informazioni e le planimetrie riportate sono meramente indicative e non costituiscono elementi contrattuali.

LEGGI TUTTO

CONDIVIDI SUI SOCIAL

DATI PRINCIPALI

Riferimento
641136
Contratto
Vendita
Tipologia
Villa
Superficie
360 mq
Locali
Più di 5
Camere da letto
Più di 5
Cucina
Abitabile
Bagni
3
Piano
Piano terra
Totale piani
3
Box/Posto auto
Doppio

CARATTERISTICHE

Ascensore

COSTI

Prezzo
€ 450.000,00

EFFICIENZA ENERGETICA

Stato
Ristrutturato
Anno costruzione
1980
Riscaldamento
Autonomo
Classe energetica
F
IPE
177,87 kWh/m²a

A+

A

B

C

D

E

177,87 kWh/m²a | Classe energetica F

F

G

MAPPA

ANNUNCI SIMILI

VENDITA 20
€ 279.000
Villa in Vendita a Genzano di Roma (Roma)
  • Più di 5 locali
  • 230 mq
  • 3 bagni
VENDITA 20
€ 399.000
Villa in Vendita a Genzano di Roma (Roma)
  • Più di 5 locali
  • 278 mq
  • 4 bagni
VENDITA 20
€ 648.000
Villa in Vendita a Genzano di Roma (Roma)
  • Più di 5 locali
  • 295 mq
  • 4 bagni
VENDITA 20
€ 330.000
Villa in Vendita a Genzano di Roma (Roma)
  • Più di 5 locali
  • 270 mq
  • 3 bagni
VENDITA 20
€ 590.000
Villa in Vendita a Genzano di Roma (Roma)
  • Più di 5 locali
  • 237 mq
  • 4 bagni