€ 445.000
  • Più di 5 locali
  • 140 mq
  • 4 bagni

Villa in Vendita a Fiumicino

Proponiamo in vendita una splendida villa bifamiliare situata a Fregene, in Via Marotta, in un contesto tranquillo e riservato, ideale per chi desidera vivere a pochi passi dal mare senza rinunciare al comfort e agli spazi generosi.

La proprietà è composta da un curato giardino privato e dispone di un comodo accesso carrabile con posto auto interno. All’esterno troviamo un accogliente patio attrezzato, perfetto per momenti di relax e convivialità all’aperto.

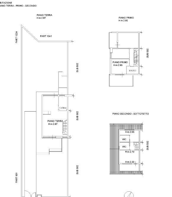
Al piano terra la villa si apre su un ampio e luminoso salone doppio impreziosito da grandi vetrate che garantiscono un’ottima esposizione alla luce naturale, oltre a un elegante camino. Completa il livello una cucina funzionale e ben organizzata.

Salendo al primo piano troviamo la zona notte composta da tre camere da letto, due bagni e due terrazzi, ideali per godere di spazi esterni privati.

Il secondo piano ospita una camera matrimoniale con terrazzo, bagno con doccia, oltre a un ulteriore bagno, e un pratico locale/cameretta.

Soluzione perfetta per famiglie o come residenza estiva, grazie alla distribuzione intelligente degli spazi e alla posizione privilegiata.

Da oltre 30 anni noi dell'Agenzia Immobiliare "Fregene" di Claudio Mattiuzzo operiamo nel campo dell'intermediazione e consulenza immobiliare a Fregene. Siamo una realtà che vuole superare la tradizionale figura del mediatore per configurarsi come struttura di servizi in grado di fornire un supporto completo di consulenza immobiliare in tutti i suoi aspetti.

LEGGI TUTTO

CONDIVIDI SUI SOCIAL

DATI PRINCIPALI

Riferimento
637505
Contratto
Vendita
Tipologia
Villa
Superficie
140 mq
Locali
5
Camere da letto
4
Cucina
Cucinotto
Bagni
4
Piano
2 °
Totale piani
3
Box/Posto auto
Doppio

CARATTERISTICHE

Ascensore

COSTI

Prezzo
€ 445.000,00

EFFICIENZA ENERGETICA

Stato
Abitabile
Anno costruzione
1980
Riscaldamento
Autonomo
Classe energetica
E
IPE
124,25 kWh/m²a

A+

A

B

C

D

124,25 kWh/m²a | Classe energetica E

E

F

G

MAPPA

ANNUNCI SIMILI

VENDITA 20
€ 650.000
  • Più di 5 locali
  • 210 mq
  • 3 bagni
VENDITA 20
€ 1.040.000
  • Più di 5 locali
  • 200 mq
  • 3 bagni