€ 399.000
  • Più di 5 locali
  • 200 mq
  • 2 bagni

Villa in Vendita a Roma

Infernetto – Via Villabassa

Proponiamo in vendita, in una zona residenziale e tranquilla vicino ai maggiori servizi e ai principali mezzi di trasporto,a 5 minuti dal mare e a due passi dalla Cristoforo Colombo, una villa bifamiliare su due livelli così composta:

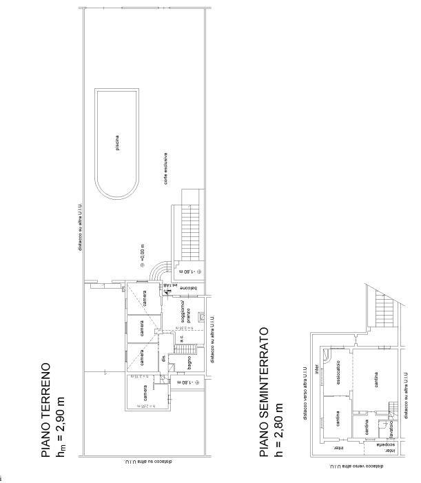
Al piano rialzato troviamo un accogliente soggiorno luminoso con camino e 4 camere matrimoniali grandi di cui una presenta le predisposizioni per un eventuale cucina, bagno grande e finestrato, a completare il piano un terrazzo coperto in prossimità dell'ingresso;

Al piano seminterrato sbancato troviamo un ingresso, soggiorno triplo, un grande camino, antibagno e bagno di generose dimensioni finestrato, cucina abitabile che conduce ad una dispensa comunicante con un intercapedine.

Completa la proprietà un giardino di circa 500 mq, e una piscina lunga 13 m e larga 4,5 con doccia esterna, ideale per momenti di relax e convivialità.
Valore aggiunto all' immovile è il passo carrabile con posti auto pavimentati.

I MOTIVI PER CUI ACQUISTARE QUESTO IMMOBILE:
-OTTIMA ESPOSIZIONE

- ZONA NOTTE SU UN PIANO FUORI TERRA
-AMPIO GIARDINO
-OTTIMA POSIZIONE
Le presenti informazioni sono meramente indicative e non costituiscono un elemento contrattuale.

LEGGI TUTTO

CONDIVIDI SUI SOCIAL

DATI PRINCIPALI

Riferimento
629755
Contratto
Vendita
Tipologia
Villa
Superficie
200 mq
Locali
Più di 5
Camere da letto
4
Cucina
Abitabile
Bagni
2
Piano
Piano terra
Totale piani
2
Box/Posto auto
Singolo

CARATTERISTICHE

Ascensore

COSTI

Prezzo
€ 399.000,00

EFFICIENZA ENERGETICA

Stato
Abitabile
Anno costruzione
2010
Riscaldamento
Autonomo
Climatizzazione
Si
Classe energetica
G
IPE
351,00 kWh/m²a

A+

A

B

C

D

E

F

351,00 kWh/m²a | Classe energetica G

G

MAPPA

ANNUNCI SIMILI

VENDITA 20
€ 289.000
Villa in Vendita a Roma, Zona Infernetto
  • Più di 5 locali
  • 150 mq
  • 3 bagni
VENDITA 20
€ 490.000
Villa in Vendita a Roma, Zona Infernetto
  • Più di 5 locali
  • 200 mq
  • 2 bagni