€ 2.500 mensili
  • Più di 5 locali
  • 224 mq
  • 3 bagni

Villa in Affitto a Roma

In Via Alberico Crescitelli, l'agenzia immobiliare Antonella Real Estate propone la locazione, con formula rent to buy, di una villa moderna situata all'interno del Residence "I Cubi".
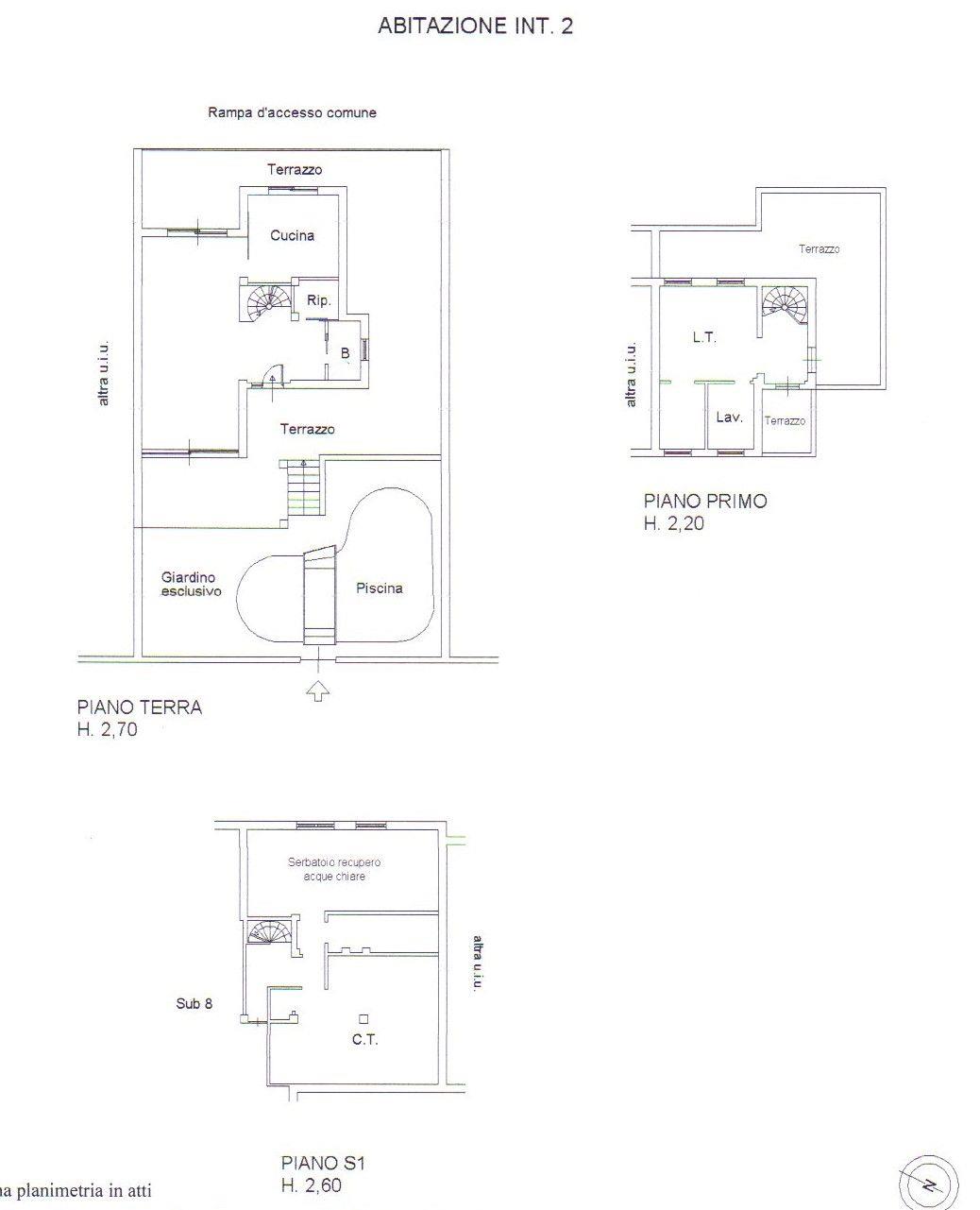
La villa è disposta su tre livelli per un totale di circa 225 mq, così suddivisi:
Al piano terra rialzato: salone doppio con grandi vetrate, cucina, bagno, zona lavanderia, terrazzo perimetrale e patio che si affaccia sulla piscina situata all'entrata della villa, dove è stato installato un ponte in acciaio inox e legno per favorire il passaggio all’interno della casa.
La piscina costruita artigianalmente in cemento armato con materiali di prima scelta e rivestita internamente con pvc, presenta una zona idromassaggio con seduta circolare e cascata d'acqua, illuminata con fari al Led in più colori e telecomando.
Al piano primo: camera da letto matrimoniale con cabina armadio, bagno, un terrazzo grande e balcone.
Al piano seminterrato in parte sbancato: due camere da letto matrimoniali, bagno e una zona SPA di circa 25 mq. con doccia emozionale, sauna finlandese e idromassaggio. I materiali utilizzati per la costruzione della SPA sono anch’essi di ottima scelta come il pavimento in travertino romano e pareti in mosaico di travertino romano, illuminazione totalmente al Led, piscina idromassaggio costruita artigianalmente. Sempre al piano seminterrato box doppio dotato di apertura elettrica con telecomando.
La villa ha un impianto di domotica avanzato "Vimar" con una centralina per la gestione dell'illuminazione, apertura e chiusura tapparelle e impianto in filodiffusione, questi comandi si possono utilizzare anche manualmente per ogni singolo piano. La villa dotata di condizionatori Daikin, inferriate di design, zanzariere, vetri antiscasso ed impianto di allarme.
Recentemente sono stati effettuati i seguenti lavori: cappotto termico su tutti i tre livelli con relativa tinteggiatura; installazione di pannelli solari; sostituzione della caldaia con installazione di due contatori per l’energia elettrica; sostituzione finestre; sostituzione porta blindata; sostituzione delle soglie; installazione della colonna di ricarica auto elettrica nel box, attualmente a seguito dei lavori sopra elencati la classe energetica è la “B”.
Per ulteriori chiarimenti ed appuntamenti contattare i numeri 348-5831445 e 349-6480197.
Le presenti informazioni sono meramente indicative e non costituiscono elementi contrattuali.

LEGGI TUTTO

CONDIVIDI SUI SOCIAL

DATI PRINCIPALI

Riferimento
628947
Contratto
Affitto
Tipologia
Villa
Superficie
224 mq
Locali
5
Camere da letto
3
Cucina
Abitabile
Bagni
3
Piano
1 °
Totale piani
3
Box/Posto auto
Doppio

CARATTERISTICHE

Ascensore

COSTI

Canone
Affitto € 2.500,00 al mese
Tipo locazione
Transitorio

EFFICIENZA ENERGETICA

Stato
Ristrutturato
Anno costruzione
2010
Riscaldamento
Autonomo
Climatizzazione
Si
Classe energetica
B
IPE
44,02 kWh/m²a

A+

A

44,02 kWh/m²a | Classe energetica B

B

C

D

E

F

G

MAPPA

ANNUNCI SIMILI

AFFITTO 20
€ 500 mensili
Villa in Affitto a Roma (Roma)
  • Più di 5 locali
  • 250 mq
  • 4 bagni