Villa a schiera via Vincenzo Arangio Ruiz VENDITA

Via Vincenzo Arangio Ruiz - Roma (Roma)
€ 499.000
  • Più di 5 locali
  • 220 mq
  • 4 bagni

Villetta a schiera in Vendita a Roma

Situata nel cuore del quadrante Ovest di Roma, in una zona residenziale strategica tra l’Aurelia e Val Cannuta, Via Vincenzo Arangio Ruiz si distingue come una strada silenziosa e riservata. Caratterizzata da un'atmosfera tranquilla , la via è immersa nel verde e frequentata prevalentemente dai residenti, garantendo privacy e sicurezza.
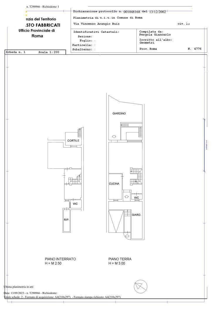
In questo contesto si propone in vendita una villa a schiera di 220 mq complessivi distribuiti su quattro livelli, una proprietà da ristrutturare che rappresenta la soluzione ideale per chi desidera personalizzare ampi spazi in un contesto indipendente.
​L’abitazione si apre al piano terra su un importante salone doppio di rappresentanza, la cui luminosità è valorizzata da una bellissima e ampia finestra e una porta finestra che conduce direttamente al giardino privato; il piano è completato da una cucina abitabile e un bagno. Lo spazio esterno complessivo è di circa 40 mq, suddiviso tra il giardino del piano terra e un cortile situato al livello seminterrato, entrambi collegati tra loro da una funzionale scala esterna.
La zona notte, situata al primo piano, si compone di tre camere da letto e due bagni, serviti da un comodo spazio esterno.
​Il secondo piano ospita una camera con bagno privato e si pregia di un terrazzo comodo e vivibile, un elemento di grande valore che rende questo livello estremamente piacevole e funzionale per momenti di relax all'aperto.
Il piano seminterrato aggiunge ulteriore versatilità, offrendo una camera con accesso diretto al cortile, un bagno e un pratico ripostiglio.
Completa la proprietà un box auto di circa 17 mq.
Con una dotazione totale di 5 camere e 5 bagni, oltre ai molteplici sfoghi esterni su ogni livello, questa villa è un'opportunità rara per ampiezza e potenzialità in una delle vie più ricercate della zona.
Il prezzo richiesto e' di €499.000

Si informa che le presenti informazioni e immagini non costituiscono elemento contrattuale ma hanno esclusivo carattere illustrativo

LEGGI TUTTO

CONDIVIDI SUI SOCIAL

DATI PRINCIPALI

Riferimento
641580
Contratto
Vendita
Tipologia
Villetta a schiera
Superficie
220 mq
Locali
Più di 5
Camere da letto
5
Cucina
Abitabile
Bagni
4
Piano
Piano terra
Totale piani
2
Box/Posto auto
Singolo

CARATTERISTICHE

Ascensore

COSTI

Prezzo
€ 499.000,00

EFFICIENZA ENERGETICA

Stato
Da ristrutturare
Riscaldamento
Autonomo
Classe energetica
G
IPE
175,00 kWh/m²a

A+

A

B

C

D

E

F

175,00 kWh/m²a | Classe energetica G

G

MAPPA

ANNUNCI SIMILI

VENDITA 20
€ 605.000
Villetta a schiera in Vendita a Roma (Roma)
  • Più di 5 locali
  • 250 mq
  • 3 bagni
VENDITA 15
€ 760.000
Villetta a schiera in Vendita a Roma (Roma)
  • Più di 5 locali
  • 320 mq
  • 4 bagni
VENDITA 20
€ 480.000
Villetta a schiera in Vendita a Roma (Roma)
  • Più di 5 locali
  • 201 mq
  • 3 bagni
VENDITA 20
€ 375.000
Villetta a schiera in Vendita a Roma (Roma)
  • Più di 5 locali
  • 130 mq
  • 4 bagni
VENDITA 20
€ 380.000
Villetta a schiera in Vendita a Roma (Roma)
  • Più di 5 locali
  • 212 mq
  • 3 bagni
VENDITA 17
€ 339.000
Villetta a schiera in Vendita a Roma, Zona Torrevecchia
  • Più di 5 locali
  • 100 mq
  • 4 bagni
VENDITA 20
€ 630.000
Villetta a schiera in Vendita a Roma (Roma)
  • Più di 5 locali
  • 171 mq
  • 2 bagni