VILLA A SCHIERA TOTALMENTE RISTRUTTURATA VENDITA

Via Paolo Vitale - Ciampino (Roma)
€ 460.000
  • Più di 5 locali
  • 230 mq
  • 3 bagni

Villetta a schiera in Vendita a Ciampino

ThinkHome propone in vendita una villa in vendita a Ciampino, situata in una zona tranquilla e residenziale, pronta per essere abitata.
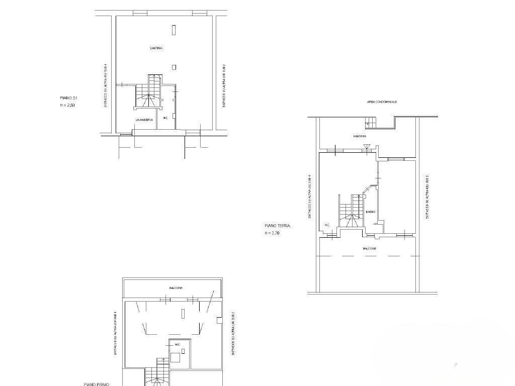
La villa si sviluppa su 3 livelli, offrendo ampi spazi e un'ottima distribuzione degli ambienti garantendo una buona separazione tra la zona giorno e la zona notte.
Recentemente integralmente ristrutturata e si presenta in ottime condizioni, grazie anche ai materiali di alta qualità utilizzati durante costruzione e ristrutturazione.
La villa è composta al piano rialzato da un patio che assolve la funzione di ingresso, un salone doppio con una bellissima cucina a vista, un bagno ed uno spazio esterno posteriore quasi totalmente verandato servito da tutti i comfort, dal barbecue all' idromassaggio; al primo piano troviamo 2 camere da letto mansardate spaziose, un bagno e un ampio terrazzo con accesso dalle 2 stanze; al piano della sala hobby troviamo un grande salone doppio con camino, sala tv, un ampio spazio dedicato al biliardo, un angolo bar, un bagno, ed una camera attualmente utilizzata come stireria, stanza armadi e ripostiglio.
Le spese condominiali ammontano a 70 euro al mese.
La soluzione a richiesta, può essere venduta arredata, è inoltre dotata di un garage privato di quasi 50 mq, dove è possibile parcheggiare comodamente due auto.
Dettaglio incarico - 9YNBCYSD - Tutti i nostri immobili sono visibili sul nostro sito www.thinkhome.it e sul sito www.thinkhomemls.it

LEGGI TUTTO

CONDIVIDI SUI SOCIAL

DATI PRINCIPALI

Riferimento
638048
Contratto
Vendita
Tipologia
Villetta a schiera
Superficie
230 mq
Locali
Più di 5
Camere da letto
3
Cucina
A vista
Bagni
3
Piano
Piano terra
Totale piani
2
Box/Posto auto
Doppio

CARATTERISTICHE

Ascensore

COSTI

Prezzo
€ 460.000,00

EFFICIENZA ENERGETICA

Stato
Ristrutturato
Anno costruzione
2012
Riscaldamento
Autonomo
Climatizzazione
Si
Classe energetica
F
IPE
175,00 kWh/m²a

A+

A

B

C

D

E

175,00 kWh/m²a | Classe energetica F

F

G

MAPPA

ANNUNCI SIMILI

VENDITA 20
€ 310.000
Villetta a schiera in Vendita a Ciampino (Roma)
  • Più di 5 locali
  • 180 mq
  • 3 bagni
VENDITA 20
€ 349.000
Villetta a schiera in Vendita a Ciampino (Roma)
  • Più di 5 locali
  • 240 mq
  • 2 bagni
VENDITA 20
€ 356.000
Villetta a schiera in Vendita a Ciampino (Roma)
  • Più di 5 locali
  • 132 mq
  • 2 bagni
VENDITA 20
Trattativa Riservata
Villetta a schiera in Vendita a Ciampino (Roma)
  • Più di 5 locali
  • 220 mq
  • 4 bagni
VENDITA 20
€ 389.000
Villetta a schiera in Vendita a Roma, Frazione Morena
  • Più di 5 locali
  • 162 mq
  • 3 bagni
VENDITA 20
€ 290.000
Villetta a schiera in Vendita a Roma, Frazione Morena
  • Più di 5 locali
  • 137 mq
  • 2 bagni
VENDITA 20
€ 399.000
Villetta a schiera in Vendita a Roma, Frazione Morena
  • Più di 5 locali
  • 187 mq
  • 4 bagni
VENDITA 20
€ 480.000
Villetta a schiera in Vendita a Roma, Frazione Morena
  • Più di 5 locali
  • 220 mq
  • 4 bagni
VENDITA 20
€ 680.000
Villetta a schiera in Vendita a Frascati (Roma)
  • Più di 5 locali
  • 230 mq
  • 4 bagni
VENDITA 20
€ 399.000
Villetta a schiera in Vendita a Roma, Frazione Tor Vergata
  • Più di 5 locali
  • 143 mq
  • 3 bagni