Villa a schiera in vendita ad Albano laziale VENDITA

Via Quarto Grotte - Albano Laziale (Roma)
€ 325.000
  • Quadrilocale
  • 203 mq
  • 2 bagni

Villetta a schiera in Vendita a Albano Laziale

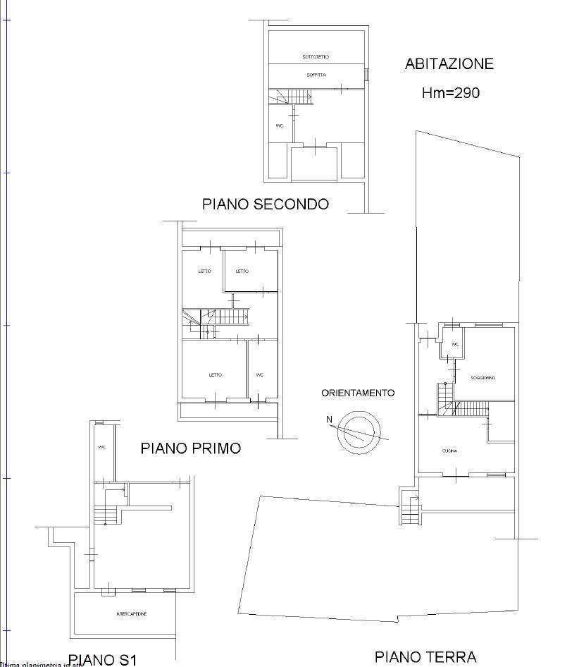
Nuova Crg Immobiliare propone in vendita nel quartiere ''Musicisti'' di Albano Laziale e precisamente in via Quarto Grotte, deliziosa villa a schiera. La proprietà si sviluppa su più livelli, offrendo ambienti comodi e ben distribuiti. Al piano terra troviamo ampio salone, cucina abitabile, bagno finestrato e accesso diretto al giardino di 150 mq ca, ideale per trascorrere momenti di relax all’aperto. Il primo piano è composto da tre camere, due balconi e un secondo bagno. Al secondo piano è presente un ambiente mansardato con balcone. Il seminterrato ospita una sala hobby e box auto. L’immobile si presenta in buono stato manutentivo, ma necessita di lavori di ristrutturazione, offrendo la possibilità di personalizzare gli ambienti secondo le proprie esigenze. Per maggiori informazioni non esitare a contattarci allo 0693011093/0694522653 segreteria@crgimmobiliare.com ti aspettiamo in via G. Rossini 8/A Albano Laziale (RM) dal LUN/VEN 9-13/15.30-19.30 SABATO 9-13.

LEGGI TUTTO

CONDIVIDI SUI SOCIAL

DATI PRINCIPALI

Riferimento
641814
Contratto
Vendita
Tipologia
Villetta a schiera
Superficie
203 mq
Locali
4
Camere da letto
3
Cucina
Abitabile
Bagni
2
Piano
Piano terra
Totale piani
3
Box/Posto auto
Singolo

CARATTERISTICHE

Ascensore

COSTI

Prezzo
€ 325.000,00

EFFICIENZA ENERGETICA

Stato
Da ristrutturare
Anno costruzione
1982
Riscaldamento
Autonomo
Climatizzazione
Si
Classe energetica
G
IPE
175,00 kWh/m²a

A+

A

B

C

D

E

F

175,00 kWh/m²a | Classe energetica G

G

MAPPA

ANNUNCI SIMILI

VENDITA 20
€ 500.000
Villetta a schiera in Vendita a Albano Laziale (Roma)
  • Quadrilocale
  • 180 mq
  • 3 bagni
VENDITA 20
€ 520.000
Villetta a schiera in Vendita a Albano Laziale (Roma)
  • Quadrilocale
  • 180 mq
  • 3 bagni
VENDITA 20
€ 520.000
Villetta a schiera in Vendita a Albano Laziale (Roma)
  • Quadrilocale
  • 180 mq
  • 3 bagni
VENDITA 20
€ 470.000
Villetta a schiera in Vendita a Albano Laziale (Roma)
  • Quadrilocale
  • 180 mq
  • 3 bagni
VENDITA 20
€ 279.000
Villetta a schiera in Vendita a Albano Laziale (Roma)
  • Più di 5 locali
  • 190 mq
  • 4 bagni
VENDITA 20
€ 329.000
Villetta a schiera in Vendita a Albano Laziale (Roma)
  • Più di 5 locali
  • 203 mq
  • 3 bagni
VENDITA 20
€ 350.000
Villetta a schiera in Vendita a Albano Laziale (Roma)
  • Quadrilocale
  • 160 mq
  • 3 bagni