Villa a Cerenova - Via Pietro Alfani, 11. VENDITA

Via Pietro Alfani 11 - Cerveteri (Roma)
€ 245.000
  • Trilocale
  • 110 mq
  • 3 bagni

Villa in Vendita a Cerveteri

Magda Immobiliare propone in Vendita Esclusiva una Villa a Cerenova in Via Pietro Alfani, 11.
110 mq su tre livelli – 80 mq di Giardino – Due Accessi Indipendenti – Possibilità di dividere la villa in due unità abitative – Centralissima in Zona Residenziale – Ottima Esposizione - No Condominio

Composta da:
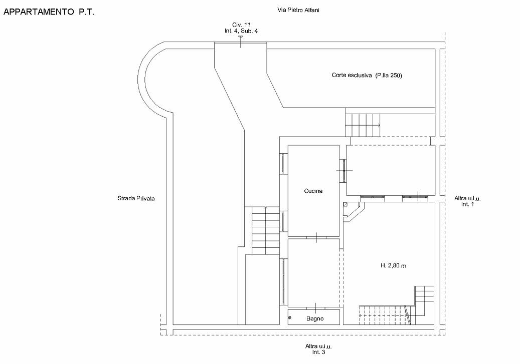
Piano Terra – Soggiorno con Camino, Bagno di Servizio, Cucina Semi Abitabile, Portico e Giardino.
Piano Primo – Due Camere Matrimoniali, Bagno con Finestra, Balcone.
Piano Seminterrato – Locale Cantina con Bagno, Accesso indipendente anche dal Giardino.
Riscaldamento Autonomo.

La Villa si trova in una delle migliori zone di Cerenova, a due passi a piedi dal Centro Commerciale “I Portici” e dalla Stazione Ferroviaria Marina di Cerveteri.

E’ distribuita su tre livelli, collegati tra loro da scala interna, con la particolarità di un secondo accesso totalmente indipendente dalla Sala Hobby al Giardino.

La Sala Hobby infatti presenta tutte le caratteriste di un appartamento, dotata di Soggiorno, Camera e Bagno con ampie finestre.

Questo consente di dividere perfettamente la villa in due unità abitative indipendenti.

Il Piano Terra ha un meraviglioso Portico all’ingresso, che accede sia alla Cucina che al Soggiorno, comodo e perfetto per vivere lo spazio esterno oltre al Giardino angolare di 80 mq abbondanti.

L’Esposizione Solare è Ottima, l’affaccio è aperto e luminoso.

Le Camere al Piano Primo sono entrambe matrimoniali e hanno un Balcone di ampia lunghezza e profondità.
cell. 348/5936862.

LEGGI TUTTO

CONDIVIDI SUI SOCIAL

DATI PRINCIPALI

Riferimento
631060
Contratto
Vendita
Tipologia
Villa
Superficie
110 mq
Locali
3
Camere da letto
2
Cucina
Abitabile
Bagni
3
Piano
1 °
Totale piani
3

CARATTERISTICHE

Ascensore

COSTI

Prezzo
€ 245.000,00

EFFICIENZA ENERGETICA

Stato
Abitabile
Riscaldamento
Autonomo
Classe energetica
G
IPE
351,00 kWh/m²a

A+

A

B

C

D

E

F

351,00 kWh/m²a | Classe energetica G

G

MAPPA