VIA S. SPALLETTI - Villa su due livelli con ampio giardino VENDITA

Via Stellato Spalletti - Fiumicino, Frazione Isola Sacra
€ 365.000
  • Quadrilocale
  • 115 mq
  • 2 bagni

Villa in Vendita a Fiumicino

Nuovissima costruzione
proponiamo in vendita villa trifamiliare con giardino - Via S. Spalletti (parallela di Via trincea delle Frasche)
Situate in una zona tranquilla di Fiumicino, lontana dal traffico ma allo stesso tempo ad un passo dal centro di Fiumicino.
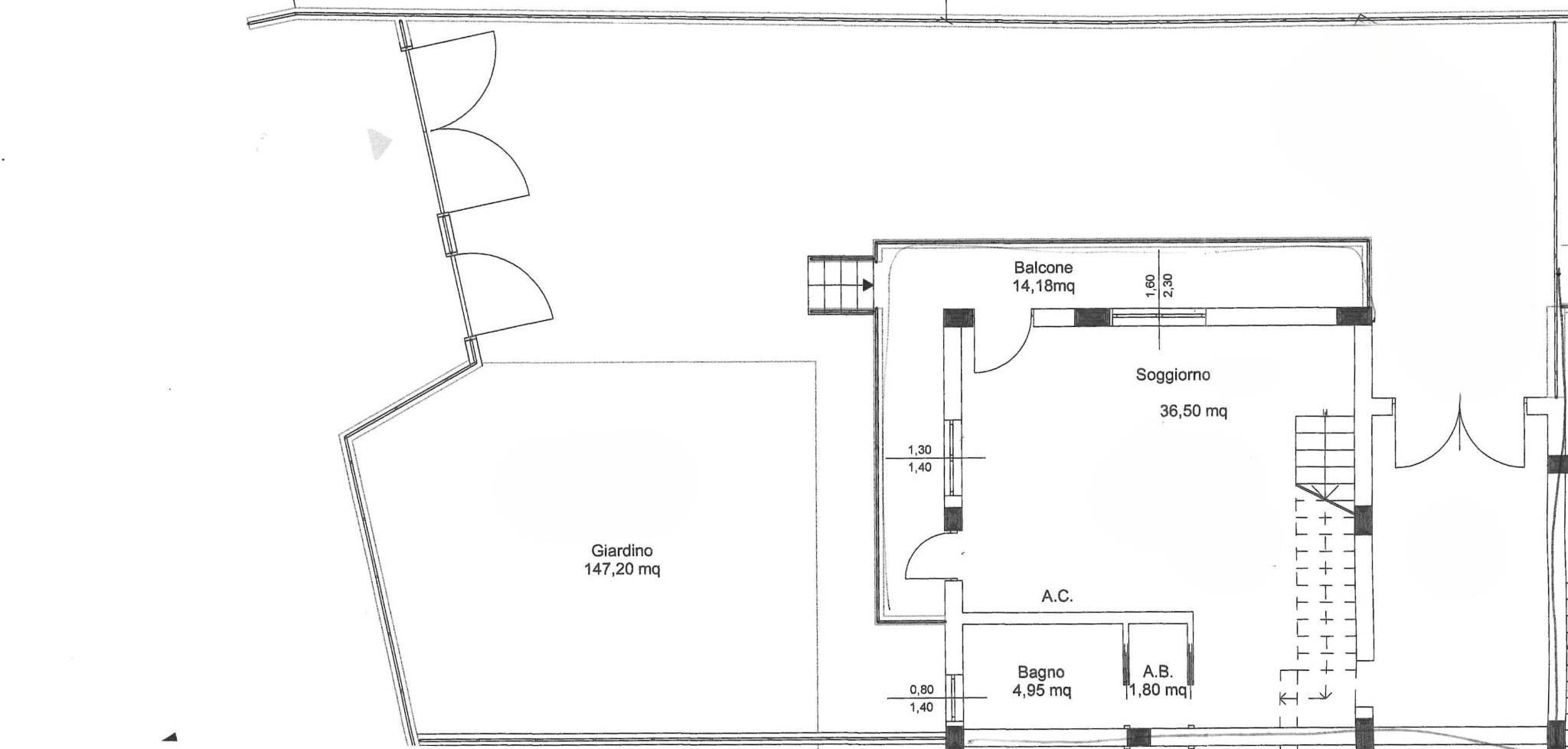
La villa, sviluppata su due livelli è cosi suddivisa:
Al piano terra rialzato è presente un ampio salone con possibilità di angolo cottura, un bagno grande, un altro vano da cui è possibile realizzare una comoda cucina separata abitabile, oppure una camera da letto.
Al piano superiore troviamo due camere di cui una con balcone, ed un secondo bagno. Completa la villa un patio e un ampio giardino angolare.
Ottime le rifiniture, dettagli in pietra lavica, impianto di riscaldamento a pompa di calore, classe energetica prevista "A" o superiore.
Consegna prevista anno 2026.

LEGGI TUTTO

CONDIVIDI SUI SOCIAL

DATI PRINCIPALI

Riferimento
636906
Contratto
Vendita
Tipologia
Villa
Superficie
115 mq
Locali
4
Camere da letto
3
Cucina
Angolo cottura
Bagni
2
Piano
Piano rialzato
Totale piani
2
Box/Posto auto
Singolo

CARATTERISTICHE

Ascensore

COSTI

Prezzo
€ 365.000,00

EFFICIENZA ENERGETICA

Stato
Nuovo/In costruzione
Anno costruzione
2025
Riscaldamento
Autonomo
Climatizzazione
Si
Classe energetica
A
IPE
175,00 kWh/m²a

A+

175,00 kWh/m²a | Classe energetica A

A

B

C

D

E

F

G

MAPPA

ANNUNCI SIMILI

VENDITA 20
€ 260.000
Villa in Vendita a Fiumicino (Roma)
  • Quadrilocale
  • 100 mq
  • 2 bagni
VENDITA 20
€ 349.000
Villa in Vendita a Fiumicino (Roma)
  • Più di 5 locali
  • 234 mq
  • 2 bagni