Via Erode Attico Villino in vendita VENDITA

Via Erode Attico 50 - Roma, Zona Quarto Miglio
€ 950.000
  • Più di 5 locali
  • 295 mq
  • 4 bagni

Villetta a schiera in Vendita a Roma

Il villino oggetto di vendita è inserito in un raffinato complesso residenziale quadrifamiliare, nel quartiere Appio Pignatelli, tipico dell’edilizia residenziale di qualità della zona di Via Erode Attico, a ridosso del Parco dell’Appia Antica. L’architettura si ispira ai canoni classici dei villini romani: volumi equilibrati, facciate intonacate dai toni caldi, coperture a falde con manto in coppi e balconature con balaustre in muratura, elementi che conferiscono all’insieme un carattere armonioso ed equilibrato. L’edificio si sviluppa su 3 livelli fuori terra, con una distribuzione articolata e funzionale che valorizza la relazione tra spazi interni ed esterni. Sviluppa una superficie complessiva di circa 294 mq, oltre a circa 70 mq di giardino privato e 18 mq di terrazze, spazi che amplificano la vivibilità della casa e ne sottolineano il carattere residenziale di alto profilo. Riscaldamento Autonomo.

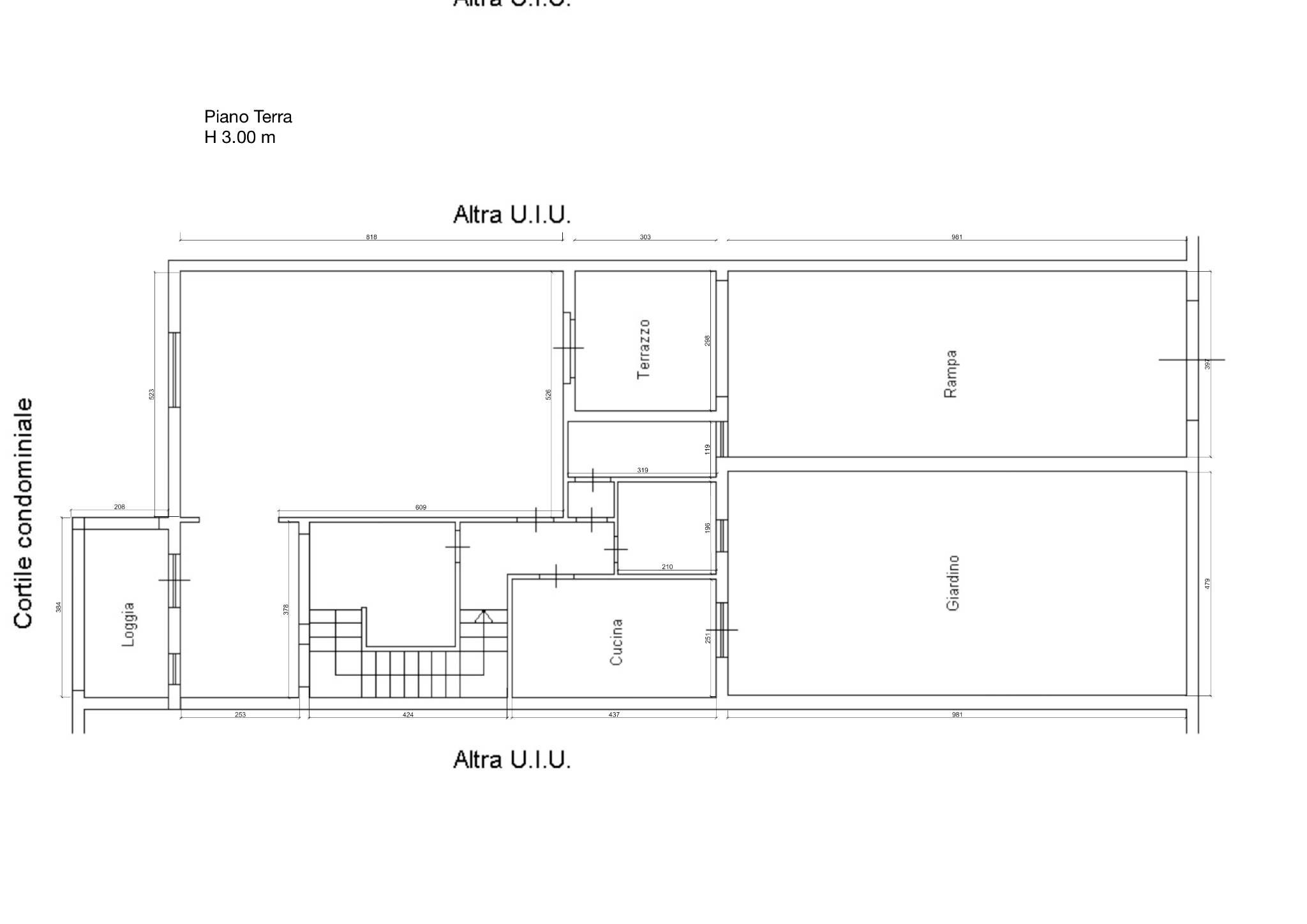
Il piano terra rialzato, accessibile attraverso un elegante loggia è direttamente connesso a due aree di giardino, che garantiscono privacy, luce naturale e continuità visiva con il verde circostante. In questo piano troviamo una grande zona salone doppio, la cucina abitabile , ed un servizio. I pavimenti in cotto della zona giorno, ripresi anche nelle pavimentazioni esterne terrazzate, rafforzano il dialogo tra interno ed esterno e conferiscono agli ambienti un’atmosfera calda e autentica.

Il piano primo ospita la zona notte principale, con 3 camere e doppi servizi, con pavimentazioni in parquet, ed un doppio terrazzino con affacci gradevoli e riservati. Il secondo piano mansardato , con due camere da letto e terrazza a tasca, uno spazio intimo e riservato, ideale come area relax o studio all’aperto.

Il Secondo piano mansarda ospita 1 camera con servizio e terrazzino panoramico.

Al piano interrato, collegato internamente, si trovano ambienti di servizio e un garage privato, comodamente accessibile tramite una rampa carrabile situata sul retro del villino.

Stato di Manutenzione
Dal punto di vista manutentivo, l’immobile si presenta in ottime condizioni generali, tale da poter essere abitato immediatamente, senza necessità di interventi di ristrutturazione. L’esposizione tripla verso Sud, Sud-Est e Sud-Ovest assicura una eccellente luminosità naturale in tutti gli ambienti durante l’arco della giornata.

Descrizione del contesto
Il villino è inserito in un complesso residenziale di pregio, caratterizzato da aree verdi comuni perfettamente curate, accessi riservati e un’atmosfera di tranquillità e sicurezza. Il contesto è prevalentemente residenziale, silenzioso e immerso nel verde, con una bassa densità edilizia che garantisce privacy e qualità della vita.

La vicinanza immediata al Parco dell’Appia Antica rappresenta uno dei maggiori valori aggiunti della proprietà: un contesto paesaggistico e storico di straordinaria importanza, ideale per chi desidera vivere a contatto con la natura senza rinunciare alla prossimità del centro città. La zona offre un equilibrio raro tra ambiente salubre, spazi aperti e collegamenti rapidi con il cuore di Roma.

Modifiche Progettuali

Disponibili progetti di diversa distribuzione e miglioramento di alcune funzionalità del primo piano per una maggiore fruibilità delle terrazze e progetto di arredo design personalizzato.

Urbanistica
superficie catastale 295 mq , escluse aree scoperte 285 mq
Categoria A\7 – classe 9 – consistenza 11,5 vani – Rendita : Euro 4.246,5
Costo condominio : 250 mese circa incluso consumo acqua e manutenzione parti comuni.
Maggiori informazioni visitando la pagina https://www.studiofori.com/immobiliare/roma-via-erode-attico-villino-in-vendita/

LEGGI TUTTO

CONDIVIDI SUI SOCIAL

DATI PRINCIPALI

Riferimento
635778
Contratto
Vendita
Tipologia
Villetta a schiera
Superficie
295 mq
Locali
Più di 5
Camere da letto
4
Cucina
Abitabile
Bagni
4
Piano
Piano terra
Totale piani
3
Box/Posto auto
Doppio

CARATTERISTICHE

Ascensore

COSTI

Prezzo
€ 950.000,00
Spese condominiali
€ 250,00 / mese

EFFICIENZA ENERGETICA

Stato
Ristrutturato
Anno costruzione
1980
Riscaldamento
Autonomo
Classe energetica
G
IPE
175,00 kWh/m²a

A+

A

B

C

D

E

F

175,00 kWh/m²a | Classe energetica G

G

MAPPA

ANNUNCI SIMILI

VENDITA 20
€ 1.050.000
Villetta a schiera in Vendita a Roma (Roma)
  • Più di 5 locali
  • 336 mq
  • 4 bagni
VENDITA 20
Trattativa Riservata
Villetta a schiera in Vendita a Roma (Roma)
  • Più di 5 locali
  • 314 mq
  • 4 bagni
VENDITA 20
€ 399.000
Villetta a schiera in Vendita a Roma, Frazione Morena
  • Più di 5 locali
  • 187 mq
  • 4 bagni
VENDITA 20
€ 290.000
Villetta a schiera in Vendita a Roma, Frazione Morena
  • Più di 5 locali
  • 137 mq
  • 2 bagni
VENDITA 20
€ 389.000
Villetta a schiera in Vendita a Roma, Frazione Morena
  • Più di 5 locali
  • 162 mq
  • 3 bagni
VENDITA 20
€ 630.000
Villetta a schiera in Vendita a Roma (Roma)
  • Più di 5 locali
  • 171 mq
  • 2 bagni
VENDITA 20
€ 499.000
Villetta a schiera in Vendita a Roma (Roma)
  • Più di 5 locali
  • 152 mq
  • 2 bagni
VENDITA 20
€ 399.000
Villetta a schiera in Vendita a Roma, Frazione Tor Vergata
  • Più di 5 locali
  • 143 mq
  • 3 bagni
VENDITA 20
€ 480.000
Villetta a schiera in Vendita a Roma, Frazione Morena
  • Più di 5 locali
  • 220 mq
  • 4 bagni