Via delle Capannelle, Villa Bifamiliare con ampio giardino VENDITA

Via delle Capannelle 136 - Roma (Roma)
€ 649.000
  • Più di 5 locali
  • 280 mq
  • 4 bagni

Villa in Vendita a Roma

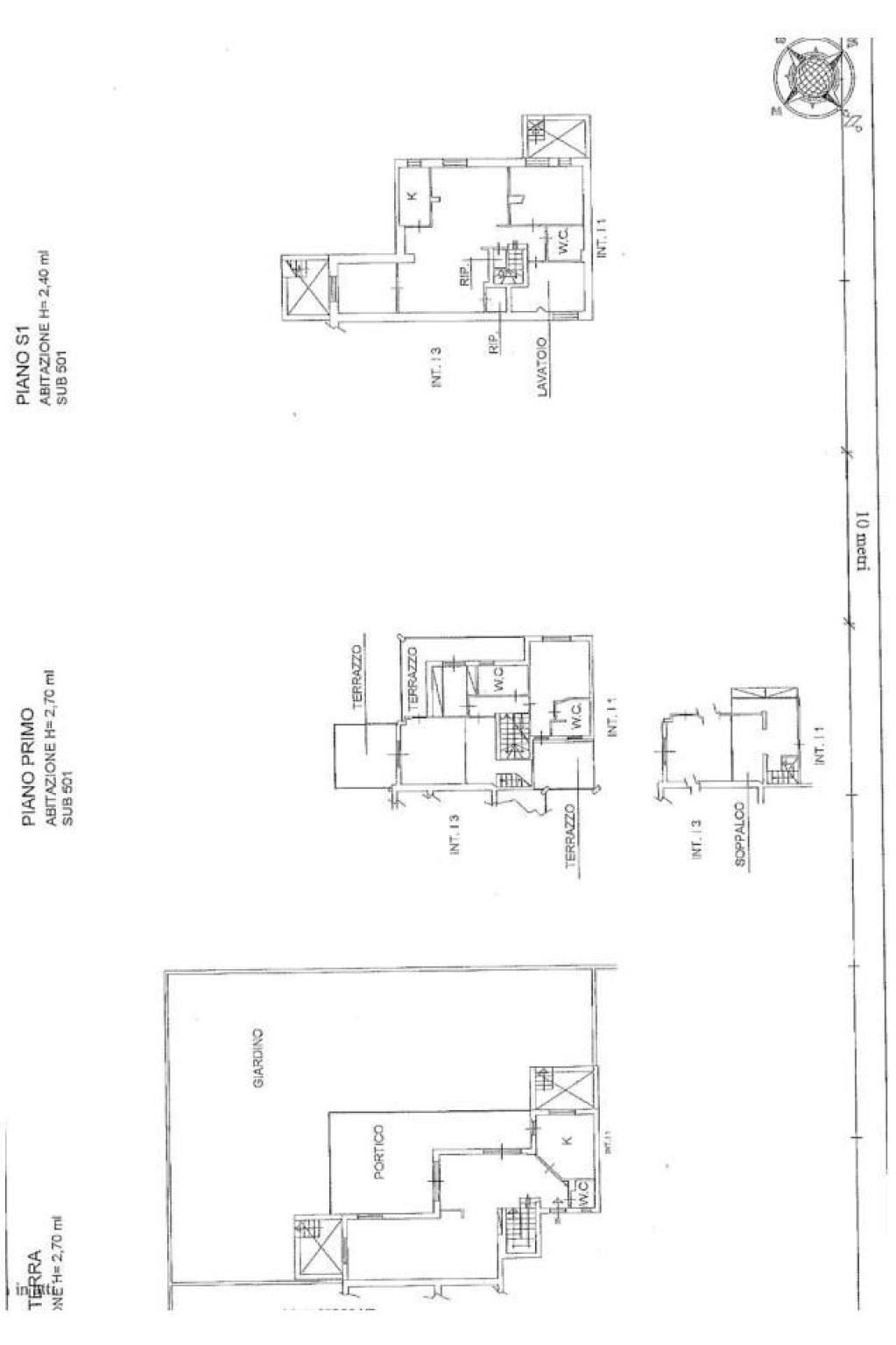
La New G&CO immobiliare propone in vendita una porzione di villa bifamiliare posta all'interno del complesso residenziale signorile denominato "Ascott Village", in zona di grande rilievo dal punto di vista archeologico, nelle immediate vicinanze della via Appia e di via Tuscolana. L'immobile si sviluppa su tre livelli per un totale di 280 mq ca. e 400 mq ca. di giardino esclusivo. Al piano terra veniamo accolti da un ampio ingresso, un salone triplo, una cucina abitabile e bagno di cortesia. Esternamente oltre al giardino di interessante rilievo è anche il comodo patio che permette di vivere lo spazio esterno tutto l'anno. Il piano primo è composto da una camera da letto matrimoniale con accesso al bagno privato, una suite con angolo studio, una cameretta spogliatoio, un secondo bagno e tre terrazzi che servono tutto il piano. Al piano seminterrato troviamo una grande sala hobby con camino, un cucinotto, una camera, una ampia lavanderia/stireria, un bagno e due ripostigli.
Completano la proprietà 3 posti auto coperti.
Per informazioni ed appuntamenti potete contattarci anche a mezzo mail: progettoimmobiliare3@hotmail.it, chat di immobiliare.it e telefono 06/7186436.

LEGGI TUTTO

CONDIVIDI SUI SOCIAL

DATI PRINCIPALI

Riferimento
636047
Contratto
Vendita
Tipologia
Villa
Superficie
280 mq
Locali
Più di 5
Camere da letto
4
Cucina
Abitabile
Bagni
4
Piano
Piano terra
Totale piani
3
Box/Posto auto
Doppio

CARATTERISTICHE

Ascensore

COSTI

Prezzo
€ 649.000,00
Spese condominiali
€ 60,00 / mese

EFFICIENZA ENERGETICA

Stato
Abitabile
Anno costruzione
1990
Riscaldamento
Autonomo
Climatizzazione
Si
Classe energetica
G
IPE
175,00 kWh/m²a

A+

A

B

C

D

E

F

175,00 kWh/m²a | Classe energetica G

G

MAPPA

ANNUNCI SIMILI

VENDITA 20
€ 458.000
Villa in Vendita a Roma (Roma)
  • Più di 5 locali
  • 292 mq
  • 3 bagni
VENDITA 20
€ 720.000
Villa in Vendita a Roma, Zona Quarto Miglio
  • Più di 5 locali
  • 300 mq
  • 4 bagni
VENDITA 20
€ 790.000
Villa in Vendita a Roma, Zona Quarto Miglio
  • Più di 5 locali
  • 280 mq
  • 4 bagni
VENDITA 20
€ 3.900.000
Villa in Vendita a Roma (Roma)
  • Più di 5 locali
  • 670 mq
  • 4 bagni